
NEUWOG Immobilientreuhand und Liegenschaftserrichtungs GmbH
Herrn Georg Altmüller
004 ···
Nr. anzeigenPreise & Kosten
Provision für Käufer
3% des Kaufpreises zzgl. 20% USt.
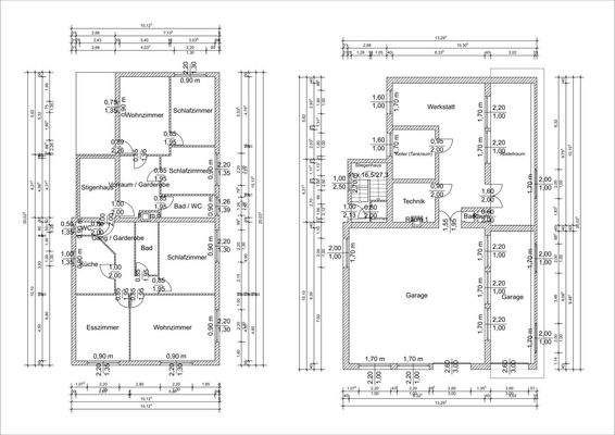
Das Haus
Kategorie
Mehrfamilienhaus
Baujahr
1966
Bezug
ab sofort
Energie & Heizung
Warum sehe ich diese Anzeige? – Du siehst diese Anzeige basierend auf Ihrer Navigation auf unserer Website und den Suchkriterien, die du verwendet hast.
Heizwärmebedarf (HWB)
286,00 kWh/(m²·a)
Gesamtenergieeffizienz (fGEE)
3,05
Weitere Energiedaten
Haustyp
Massivhaus
Energieträger
Gas
Heizungsart
Zentralheizung
Details
Objektbeschreibung
Willkommen in Ihrem neuen Zuhause - einem charmanten Zweifamilienhaus in der idyllischen Gemeinde Pfarrkirchen bei Bad Hall, Oberösterreich. Diese attraktive Immobilie bietet Ihnen nicht nur ein Zuhause, sondern auch die Möglichkeit, ein zweites Wohneinheit zu vermieten oder Platz für Ihre Familie zu schaffen.
Mit...
Preisinformation
2 Garagenstellplätze
Weitere Informationen
Sonstiges
1979: Objektkauf
1988: Kunststofffenster, System Kömmerling AIII, Isolierglas Thermoplus 1.3
1988: Sonett-Thermoglasfenster-Jalousien
1988:Fasadendämmung, Eterchrom Strukturdeckung, Fasadendämmplatten FDPL 5
1988: Garagentore Normstahl - Decken-Sektionaltore 9002 isoliert
1999...
Anbieter der Immobilie
NEUWOG Immobilientreuhand und Liegenschaftserrichtungs GmbH
Kirchengasse 4, 4501 NEUHOFEN AN DER KREMS
Online-ID: 2m3lz5l
Referenznummer: OBGC20251206145626975920cd902c8
Finde Angebote wie dieses
Günstige Immobilienfinanzierung einfach online berechnen
Persönliches Angebot berechnenWarum sehe ich diese Werbung? – Du siehst diese Werbung basierend auf Deiner Navigation auf unserer Website und der von Dir verwendeten Suchkriterien.
Diese Werbung wird bezahlt von durchblicker
Werbung melden
Hier geht es zu unserem Impressum, den Allgemeinen Geschäftsbedingungen, den Hinweisen zum Datenschutz und nutzungsbasierter Online-Werbung.