

Costa Blanca Immobilien
Frau Katja Priemer
+49 ···
Nr. anzeigenPreise & Kosten
Provision für Käufer
provisionsfrei
Das Haus
Kategorie
Villa
Details
Objektbeschreibung
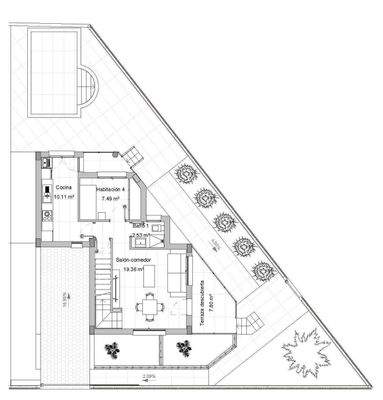
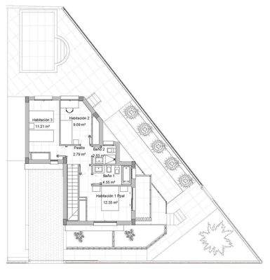
Moderne Villa in Strand- und Stadtnähe
Diese wunderschöne Neubau-Villa in Los Alcázares bietet 4 Schlafzimmer und 3 Bäder auf 112 m² Wohnfläche. Das offene Wohn- und Essbereichskonzept mit moderner Küche schafft ein helles, einladendes Ambiente. Einbauschränke, ein privater Garten mit Swimmingpool sowie ein Keller mit...
Weitere Informationen
Unsere Homepage
Schauen Sie doch bitte auch auf unserer Homepage:
www.neubaucostablanca.de
Hier finden Sie eine große Auswahl toller Objekte.
Durch unsere Kooperation mit allen Bauträgern an der Costa Blanca können Sie mit uns jederzeit jedes Neubauobjekt besichtigen. Ein deutschsprachiger Immobilienmakler wird...
Anbieter der Immobilie

Online-ID: 2mf445j
Referenznummer: CBI-G-8182
Finde Angebote wie dieses
Hier geht es zu unserem Impressum, den Allgemeinen Geschäftsbedingungen, den Hinweisen zum Datenschutz und nutzungsbasierter Online-Werbung.