
NEUWOG Immobilientreuhand und Liegenschaftserrichtungs GmbH
Herrn Georg Altmüller
004 ···
Nr. anzeigenPreise & Kosten
Provision für Käufer
3% des Kaufpreises zzgl. 20% USt.
Lage
Dieses charmante Einfamilienhaus in Ulrichskirchen besticht durch seine ruhige und dennoch zentrale Lage. Die Schleinbacherstraße bietet Ihnen die perfekte Kombination aus Idylle und urbanen Annehmlichkeiten. In unmittelbarer Nähe finden Sie einen Kindergarten, ideal für Familien mit kleinen Kindern. Zudem sind Bank...
Das Haus
Kategorie
Einfamilienhaus
Baujahr
1984
Energie & Heizung
Warum sehe ich diese Anzeige? – Du siehst diese Anzeige basierend auf Ihrer Navigation auf unserer Website und den Suchkriterien, die du verwendet hast.
Weitere Energiedaten
Haustyp
Massivhaus
Energieträger
Gas
Heizungsart
offener Kamin, Zentralheizung
Details
Objektbeschreibung
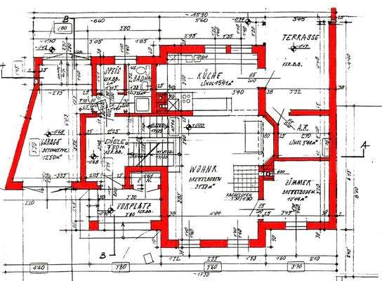
Willkommen in Ihrem neuen Zuhause in der malerischen Ortschaft Ulrichskirchen, Niederösterreich! Dieses traumhafte Einfamilienhaus bietet Ihnen alles, was das Herz begehrt, und vereint Wohnkomfort mit einer idyllischen Lage.
Mit einer großzügigen Wohnfläche von 172,89 m² und vier hellen, einladenden Zimmern ist dieses...
Preisinformation
1 Garagenstellplatz
Weitere Informationen
Stichworte
Anzahl der Badezimmer: 2, Anzahl der separaten WCs: 2, Anzahl Terrassen: 1, Kellerfläche: 64,18 m², Bundesland: Niederösterreich, 2 Etagen, modernisiert: 1995
Anbieter der Immobilie
NEUWOG Immobilientreuhand und Liegenschaftserrichtungs GmbH
Kirchengasse 4, 4501 NEUHOFEN AN DER KREMS
Online-ID: 2mglz5l
Referenznummer: OBGC20251206145114312d6767c7ca8
Finde Angebote wie dieses
Günstige Immobilienfinanzierung einfach online berechnen
Persönliches Angebot berechnenWarum sehe ich diese Werbung? – Du siehst diese Werbung basierend auf Deiner Navigation auf unserer Website und der von Dir verwendeten Suchkriterien.
Diese Werbung wird bezahlt von durchblicker
Werbung melden
Hier geht es zu unserem Impressum, den Allgemeinen Geschäftsbedingungen, den Hinweisen zum Datenschutz und nutzungsbasierter Online-Werbung.