
Crozilla.com
Hana Nekretnine
+38 ···
Nr. anzeigenPreise & Kosten
Provision für Käufer
Bitte beachte, das Angebot kann bei Vertragsabschluss die Zahlung einer Provision beinhalten. Weitere Informationen erhältst Du vom Anbieter.
Die Wohnung
Wohnungslage
2. Geschoss
Details
Objektbeschreibung
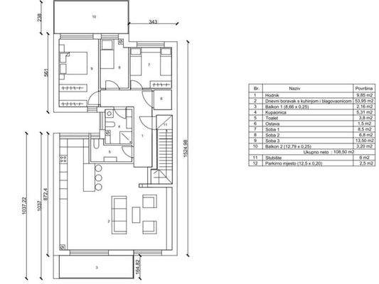
U ponudi je stan na 2.katu u novoj stambenoj vili u izgradnji na odlicnoj lokaciji u sirem centru grada.
Stan ukupne stambene povrsine 124,66 m2 koji se sastoji od hodnika, 3 spavace sobe, kupaonice, toaleta, ostave, dnevne sobe s blagovaonicom i kuhinjom i 2 balkona od kojih je jedan s dvorisne, a drugi s ulicne...
Weitere Informationen
Stichworte
Anzahl der Schlafzimmer: 3, Anzahl der Badezimmer: 3, 1 Etagen
Anbieter der Immobilie
Crozilla.com
Nova cesta 60, 10000 ZAGREB
Online-ID: 2mtgg52
Referenznummer: 17175157_2
Finde Angebote wie dieses
Hier geht es zu unserem Impressum, den Allgemeinen Geschäftsbedingungen, den Hinweisen zum Datenschutz und nutzungsbasierter Online-Werbung.