Version: 8.22.6Navigation ĂĽberspringen
VR Immobilien GmbH
401.813 €
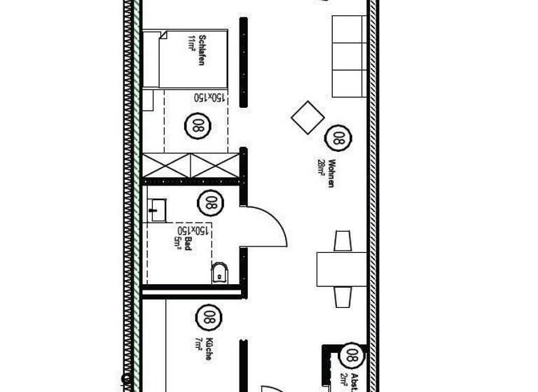
1,5 Zimmer  â€˘  59,2 m²

Wohnung zum Kauf • provisionsfrei
401813.47 €
6.791 €/m²
1,5 Zimmer  â€˘  59,2 m²

Seniorenquartier Altenmarkt

Es entsteht inmitten des Ortes Altenmarkt ein moderner Neubau mit schöner Grünanlage :

- 20 x EZ (ca. 21 m²) davon 4 x rollstuhlgerecht ausgestattet
- 2 x DZ (ca. 26 m²) rollstuhlgerecht ausgestattet
- 38 x 1,5- Zi. Appartements (zwischen 43 m² und 59 m²)
- 4 x 2 Zi- Appartements (zwischen 62 m² und 93 m²)
- 2 Gewerbeeinheiten (Tagespflegeeinrichtung und Tagescafé )

An einem Ort werden die verschiedensten Betreuungsformen miteinander vereint: Ambulant betreute Wohnungen, Tagespflege sowie ambulant betreute Wohngruppen.

Die Tagespflege ist auf 20 Gäste ausgelegt und besitzt eine Gesamtfläche von 245 m². Hierzu gehört ein großer Aufenthaltsbereich mit Tagesküche, Ruheräume, ein Pflegebad, Personal- und Büroräume, sowie WC- und Lagerflächen.

Merkmale

  • Bezug: 2. Quartal 2026

Grundrisse

Grundrisse
1 / 1

Realisiere Dein Projekt

Bausubstanz und Energie

Energieausweis

Ein Energieausweis ist für diesen Gebäudetyp nicht notwendig.

Preisdetails

Kaufpreis
401813.47 €
6.790,83 €/m²
Provision für Käufer
provisionsfrei
Geschätzte Gesamtkosten
423.912 €1
Kaufpreis
401.813 €
Notarkosten (1,5%)
6.027 €
Grunderwerbsteuer (3,5%)
14.063 €
Grundbucheintrag (0,5%)
2.009 €
1Der angezeigte Wert ist eine automatisch berechnete Schätzung von immowelt.
2Bei den Angaben handelt es sich um ortsübliche Werte. Individuelle Kosten können abweichen.

Lage

address-icon
Altenmarkt, Altenmarkt an der Alz (83352)
Der Anbieter hat die genaue Adresse nicht freigegeben
In unmittelbarer Zentrumslage entsteht das neue Seniorenquartier in bevorzugter Lage. In unmittelbarer, fußläufiger Umgebung um das Grundstück befinden sich alle Einrichtungen des täglichen Lebens (Einkaufsmöglichkeiten, Cafés, Ärzte, Apotheken, Kirche, Gemeindeverwaltung, Naherholungsmöglichkeiten, etc.), was eine aktive Teilnahme am Gemeindegeschehen auch im hohen Alter und bei körperlichen Einschränkungen weiterhin ermöglicht. Ein ausschlaggebender Punkt des Konzeptes des Seniorenquartiers ist es, dass sich die Anlage und die sie bewohnenden Menschen in die Gemeinde einfügen und als integraler Teil dieser verstanden werden. Eine Ghettoisierung der "Pflegeeinrichtung" innerhalb der Ortschaft soll verhindert werden. Auch dies wird durch die gute, zentrale Lage ermöglicht und vereinfacht.

Weitere Informationen

Stichworte vermietbare Fläche: 59,17 m²

Weitere Services

Lust auf eine Besichtigung?
Eine Frage zur Immobilie?
Nachricht hinzufĂĽgen
Mit der Nutzung der oben angegebenen Telefonnummer oder durch Klicken auf „Kontaktieren“ akzeptierst Du die Allgemeinen Nutzungsbedingungen, denen Du jederzeit widersprechen kannst. Weitere Informationen zum Datenschutz

Ăśber den Anbieter

VR Immobilien GmbH
VR Immobilien GmbHMaklerbĂĽro
Tegernseestr. 20, 83022 Rosenheim
partner badge
10 Jahre Partnerschaft
Frau Barbara Mittermaier
Frau Barbara MittermaierDein Kontakt
Online-ID: 2lm865w
Referenznummer: 8492_08
VR Immobilien GmbH
title
VR Immobilien GmbH
Nachricht hinzufĂĽgen
Mit der Nutzung der oben angegebenen Telefonnummer oder durch Klicken auf „Kontaktieren“ akzeptierst Du die Allgemeinen Nutzungsbedingungen, denen Du jederzeit widersprechen kannst. Weitere Informationen zum Datenschutz
Wie zufrieden bist du mit dieser Seite (nicht mit der Immobilie selbst)?