Version: 8.22.4Navigation überspringen
10,50 €
Immowelt logo

Shared Office zur Miete
10,50 Euro pro Quadratmeter

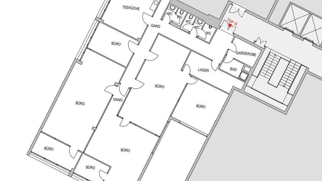
296m² Bürofläche im Concorde Business Park

Sehr geehrte Damen und Herren,

 

im 3.Liftstock eines modernen uns sehr gepflegten Bürogebäudes des Concorde Business Parks gelangt dieses 296m2 Büro zur Vermietung. Durch die Nähe zur Autobahnanschlussstelle S1 und A4 und die Nähe zum Flughafen ist Verkehrsanbindung des Standortes hervorragend.  

Raumaufteilung:

* 7 Einzelbüro bzw Großraumbüroräume
* zusätzlich kleine Lagerfläche, Garderobe
* Teeküche und Aufenthaltsraum
* getrennte Toiletten
* Raumänderungen bautechnisch möglich

Highlights:

* Top Lage und Infrastruktur
* moderne Ausstattung
* Klimaanlage
* flexible Raumkonzepte möglich

Kosteninformationen:
Miete: 10,5 EUR /m2 / Monat netto
Betriebskosten: 3,4 EUR /m2 / Monat netto
 

Die Mietdauer beträgt 10 Jahre mit Kündigungsmöglichkeit nach 5 Jahren. 

 

Garagen- und Freistellplätze ausreichend verfügbar, so dass Sie individuell nach Ihren Bedürfnissen auch größere Stellkontingente anmieten können. 

Zentral im Park gelegen, stellt der Concorde Business Club mit À-la-carte-Restaurant sowie Selbstbedienungsbereich einen idealen Ort für Kundentermine und Geschäftsessen oder die tägliche Mittagspause Ihrer Mitarbeiter dar und bietet überdies einen Cateringservice für Ihre Veranstaltungen oder Seminare.

 

Service

* Concorde Business Club - À-la-carte-Restaurant-und Selbstbedienungsbereich
* Cateringservice
* vielseitig verwendbare Konferenz- und Seminarräume in unterschiedlicher Größe

Gerne informieren wir Sie auch über weitere verfügbare Büro- und Lagerflächen im Concorde Business Park. 

Eine Besichtigung kann jederzeit gerne vereinbart werden.

Wir weisen darauf hin, dass zwischen dem Vermittler und dem zu vermittelnden Dritten ein familiäres oder wirtschaftliches Naheverhältnis besteht.

Der Vermittler ist als Doppelmakler tätig.

Infrastruktur / Entfernungen

Gesundheit
Arzt <1.500m
Apotheke <1.000m
Klinik <1.500m
Krankenhaus <5.500m

Kinder & Schulen
Schule <1.000m
Kindergarten <1.000m
Universität <8.500m
Höhere Schule <9.000m

Nahversorgung
Supermarkt <1.000m
Bäckerei <1.500m
Einkaufszentrum <1.500m

Sonstige
Bank <1.000m
Geldautomat <1.500m
Post <500m
Polizei <1.500m

Verkehr
Bus <500m
U-Bahn <6.500m
Straßenbahn <3.000m
Bahnhof <1.000m
Autobahnanschluss <500m
Flughafen <6.500m

Angaben Entfernung Luftlinie / Quelle: OpenStreetMap

Merkmale

  • Bezug: sofort
  • 3. Geschoss
  • Einbauküche, Teeküche
  • Personenaufzug
  • Kantine
  • Bad mit Dusche
  • voll klimatisiert

Realisiere Dein Projekt

Bausubstanz und Energie

Heizwärmebedarf (HWB)

C

Gesamtenergieeffizienz (fGEE)

C
  • Baujahr2000
  • Zustand der ImmobilieNeubau
  • EnergieträgerFernwärme
Immowelt logo

Mietkosten

Nettokaltmiete
10,50 €/m²
3.108 €
Betriebskosten
1.006,40 €
Provision für Mieter
3 Bruttomonatsmieten zzgl. 20% USt.
Kaution
6 Bruttomonatsmieten
Weitere Preisinformationen
Nettokaltmiete: 3.108,00 EUR

Lage

address-icon
Schwechat (2320)
In nur 5 Minuten zum Flughafen - in nur 3 Flugstunden in ganz Europa! Der Concorde Business Park bietet durch die Nähe zum Flughafen Wien - Schwechat als bedeutende Logistikdrehscheibe einen wichtigen Standortvorteil.

> Direkter Anschluss an S1 und A4-Flughafenautobahn
> Schnellbahn S7
> Busverbindungen nach Wien mit weiterem U-Bahn-Anschluss an U3 - Simmering
> AST-Taxi-Station

Weitere Informationen

Stichworte Stellplatz vorhanden, Garage vorhanden, Nutzfläche: 296,00 m², Bundesland: Niederösterreich

Weitere Services

Lust auf eine Besichtigung?
Eine Frage zur Immobilie?
Nachricht hinzufügen
Mit der Nutzung der oben angegebenen Telefonnummer oder durch Klicken auf „Kontaktieren“ akzeptierst Du die Allgemeinen Nutzungsbedingungen, denen Du jederzeit widersprechen kannst. Weitere Informationen zum Datenschutz

Über den Anbieter

Rotenturmstrasse 17, Top 10-12, 1010 WIEN
partner badge
6 Jahre Partnerschaft
Frau Ana PutricDein Kontakt
Online-ID: 2b76h5p
Referenznummer: OBGC2023091423252099958d1446f6a
Immobiliaris GmbH
Immobiliaris GmbH
Bewertung: 4,2 von 5 Sternen
Nachricht hinzufügen
Mit der Nutzung der oben angegebenen Telefonnummer oder durch Klicken auf „Kontaktieren“ akzeptierst Du die Allgemeinen Nutzungsbedingungen, denen Du jederzeit widersprechen kannst. Weitere Informationen zum Datenschutz
Wie zufrieden bist du mit dieser Seite (nicht mit der Immobilie selbst)?