Version: 8.25.2Navigation überspringen
3SI Makler GmbH
933.000 €
4 Zimmer  •  107,8 m²  •  2. Geschoss

Wohnung zum Kauf - Erstbezug
933000 €
8.654 €/m²
4 Zimmer  •  107,8 m²  •  2. Geschoss

Gemeinsam ankommen & zuhause sein

OBERE DONAUSTRASSE 23 | 1020 WIEN

Hier kaufen Sie nicht nur eine Wohnung, sondern ein Upgrade für Ihr Leben. Jede einzelne Wohnung verfügt über private Freiflächen - großzügige Balkone, geschützte Loggien oder weitläufige Terrassen erweitern Ihren Wohnraum ins Freie. Bodentiefe Fensterflächen lassen viel Licht in die Räume und schaffen eine Atmosphäre von Weite und Eleganz.  
Fertigstellung April 2026

PROVISIONSFREI FÜR DEN KÄUFER!

HIGHLIGHTS & AUSSTATTUNG: DESIGN TRIFFT KOMFORT

* Perfektes Klima: Fußbodenheizung, Fußbodentemperierung im Sommer 
* Nachhaltigkeit: Energieversorgung über Geothermie und Photovoltaik 
* Licht & Luft: Bodentiefe Holz-Alu-Fenster, elektrisch bedienbare Raffstores, im Erdgeschoss Rollläden 
* Sicherheit & Technik: Video-Gegensprechanlage, Sicherheitskamera und eine "Smart-Ready"-System ausgeführt.
* High-Speed Internet: Glasfaserleitungen 
* Family & Kids: autofreie Zone an der Oberfläche, geschützte Kleinkinderspielplätze  

MEHR ALS WOHNEN: DIE COMMUNITY-FEATURES INKLUSIV

* Co-Working Space
* High-End Fitnessstudio mit modernen Geräten und Yoga-Zone
* privat reservierbarer Saunabereich
* Gemeinschaftsterrassen 
* Paketfachanlage 
* Dog & Bike Wash Station - Raum mit Fahrrad- und Hundewaschplatz und Werkbank 
* Quartiers-App 
* Mobility Point - Es gibt ein Sharing-Angebot für Autos und E-Bikes direkt im Quartier 
* Waschküchen 

DAS PROJEKT IN ZAHLEN (OBERE DONAUSTRASSE 23)

* Gebäudestruktur: 2 Stiegen 
* Wohnungsgrößen: von ca. 34 m² bis 108 m²
* Zimmeranzahl: Effiziente 1,5 bis 4 Zimmer
* Raumhöhe: Großzügige ca. 2,60 m 
* Tiefgarage
* Besucherparkplätze in der Tiefgarage
* Energieversorgung: über Geothermie und Photovoltaik 

IHR EXKLUSIVER "SHORT-CUT" IN DEN AUGARTEN UND KONNEKTIVITÄT: IN 5 MINUTEN ÜBERALL

* Das Haus 23 verfügt über einen Durchgang Richtung Augarten
* Öffentliche Anbindung: U4-Station "Roßauer Lände", Straßenbahn 31
* in wenigen Minuten in der City (Schottenring) 

Die Fertigstellung ist für April 2026 geplant.

Individuelle Umbauarbeiten wie das Schließen von Wänden, der Einbau von Türen, Rigipsdekcen oder der Tausch von Badewanne auf Dusche können auf Wunsch separat beauftragt werden. 

Weitere verfügbare Wohnungen können Sie der beigefügten Preisliste entnehmen und uns gerne diesbezüglich kontaktieren. 

Die Vertragserrichtung und Treuhandabwicklung ist gebunden an die Kanzlei Saxinger Rechtsanwalts GmbH, Wächtergasse 1, 1010 Wien. Die Kosten betragen 0,9 % des Kaufpreises zzgl. 20 % USt. die Barauslagen sind in dem Honorar enthalten. Die Beglaubigungskosten belaufen sich auf 400 € bzw. 450 € je inkl. Umsatzsteuer, falls eine Pfandurkunde beglaubigt unterfertig wird.

Renderings: Copyright Squarebytes

 

Sie denken über den Verkauf Ihrer Immobilie nach?
Wir erzielen für Sie den bestmöglichen Preis - professionell, diskret und effizient.
Auf Wunsch kümmern wir uns auch um Finanzierung, Versicherung und alle weiteren Schritte.
Jetzt unverbindlich anfragen!
 

 

 

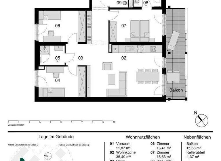
TOP 29 - STIEGE 2

Diese helle 4-Zimmer-Wohnung im 2. Obergeschoss ist ein Ort, an dem Familienleben sich ganz selbstverständlich entfaltet. Dank der Ausrichtung in alle Himmelsrichtungen wird das Zuhause den ganzen Tag von natürlichem Licht begleitet - Sonne und Weite schaffen eine freundliche, lebendige Atmosphäre in jedem Raum.

Der großzügige Wohn- und Essbereich bildet das Herzstück des gemeinsamen Alltags und führt direkt auf den südöstlich ausgerichteten Balkon. Hier beginnen Tage mit Frühstück in der Morgensonne und enden mit entspannten Momenten an der frischen Luft. Drei vielseitig nutzbare Zimmer bieten Raum für Kinder, Rückzug, Homeoffice oder Gäste - flexibel, so wie das Leben selbst.

Zwei hochwertig ausgestattete Badezimmer mit Dusche, eines davon mit WC, sowie ein separates Gäste-WC sorgen für Komfort und einen entspannten Start in den Tag - auch dann, wenn es morgens einmal lebhafter wird. Ein praktischer Abstellraum und ein eigenes Kellerabteil ergänzen das durchdachte Raumkonzept.

Ein Zuhause, das Licht, Großzügigkeit und Geborgenheit verbindet - geschaffen für Familien, die Platz zum Zusammenleben, Ankommen und Wachsen suchen.

Auf Wunsch kann auch ein Garagenstellplatz erworben werden. 
Anlegerpreis: EUR 40.000,00 + 20% Umsatzsteuer / Eigennutzer: EUR 44.000,00

Diese Wohnung eignet sich ideal als ein gemütliches Eigenheim wie auch zur Anlage. 

Kaufpreisübersicht:

* Anlegerpreis: EUR 933.000,00 (netto + 20% USt.)
* Eigennutzerpreis: EUR 1.026.000,00

DIE IMMOBILIE WIRD PROVISIONSFREI VERKAUFT.

Wir weisen darauf hin, dass zwischen dem Vermittler und dem zu vermittelnden Dritten ein familiäres oder wirtschaftliches Naheverhältnis besteht.

Der Vermittler ist als Doppelmakler tätig.

Infrastruktur / Entfernungen

Gesundheit
Arzt <250m
Apotheke <250m
Klinik <300m
Krankenhaus <1.150m

Kinder & Schulen
Schule <275m
Kindergarten <125m
Universität <325m
Höhere Schule <300m

Nahversorgung
Supermarkt <50m
Bäckerei <350m
Einkaufszentrum <1.875m

Sonstige
Geldautomat <50m
Bank <600m
Post <675m
Polizei <575m

Verkehr
Bus <200m
U-Bahn <200m
Straßenbahn <325m
Bahnhof <200m
Autobahnanschluss <2.000m

Angaben Entfernung Luftlinie / Quelle: OpenStreetMap

Merkmale

  • 2. Geschoss
  • offene Küche
  • Personenaufzug
  • Gäste-WC
  • Balkon

Grundrisse

Grundrisse
1 / 1

Bausubstanz und Energie

Heizwärmebedarf (HWB)

A

Gesamtenergieeffizienz (fGEE)

A+
  • Baujahr2025
  • Zustand der ImmobilieNeubau, Erstbezug
  • HeizungsartFußbodenheizung
  • EnergieträgerErdwärme, Luft-/Wasser-Wärmepumpe
MediumRectangleTop

Preisdetails

Kaufpreis
933000 €
8.654,11 €/m²
Provision für Käufer
Bitte beachte, das Angebot kann bei Vertragsabschluss die Zahlung einer Provision beinhalten. Weitere Informationen erhältst Du vom Anbieter.

Lage

address-icon
Obere Donaustraße 23Wien (1020)
Karmeliterviertel, Augarten, Servitenviertel, Roßauer Lände, Donaukanal

Weitere Informationen

Stichworte Tiefgarage vorhanden, Süd-Ost-Balkon/Terrasse, Fahrradraum, Anzahl der Badezimmer: 2, Anzahl der separaten WCs: 2, Anzahl Balkone: 1, Balkon-Terrassen-Fläche: 15,33 m², Bundesland: Wien, 7 Etagen, Wohnungsnr.: 29 Wellness: Wellnessbereich

Weitere Services

Lust auf eine Besichtigung?
Eine Frage zur Immobilie?
Nachricht hinzufügen
Mit der Nutzung der oben angegebenen Telefonnummer oder durch Klicken auf „Kontaktieren“ akzeptierst Du die Allgemeinen Nutzungsbedingungen, denen Du jederzeit widersprechen kannst. Weitere Informationen zum Datenschutz

Über den Anbieter

Tegetthoffstraße 7, 1010 Wien
partner badge
Partnerschaft
Frau Karoline SzczepankiewiczDein Kontakt
Online-ID: 26TV8Y9CNQJA
Referenznummer: OBGC20260304180411668ac8dd5d76f
MediumRectangleTop
Wie zufrieden bist du mit dieser Seite (nicht mit der Immobilie selbst)?