

Einfamilienhaus zum Kauf655000 €6.122 €/m²5 Zimmer • 107 m² • 282 m² Grundstück
655000 €
6.122 €/m²
5 Zimmer • 107 m² • 282 m² Grundstück
Tolles Einfamilienhaus in Hanglage mit Keller und Garage
Merkmale
- Bezug: vmtl. März 2028
- vermietet
- 282 m² Grundstück
- EinbaukĂĽche
- Keller
- 2 Stellplätze: Garage, Außen-Stellplatz
- Garten
- Terrasse
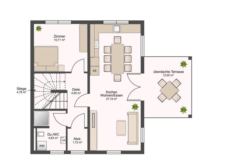
Grundrisse
Grundrisse
1 / 3
Realisiere Dein Projekt
Bausubstanz und Energie
Heizwärmebedarf (HWB)
B
Gesamtenergieeffizienz (fGEE)
A+
- HeizungsartFuĂźbodenheizung
- EnergieträgerLuft-/Wasser-Wärmepumpe
Preisdetails
Kaufpreis
655000 €
6.121,50 €/m²
Provision für Käufer
3,6 % inkl. 20 % USt. inkl. MwSt.
Weitere Preisinformationen
1 Stellplatz
1 Garagenstellplatz
1 Garagenstellplatz
Lage

Mottner Straße 37, Nenzing (6710)
Weitere Informationen
Weitere Services
Lust auf eine Besichtigung?
Eine Frage zur Immobilie?
Ăśber den Anbieter
Florian Mayr Immobilien e.U.MaklerbĂĽro
Reichshofstraße 4, 6841 Mäder
Partnerschaft
Herr Florian MayrDein Kontakt
Online-ID: 2nlrr53
Referenznummer: MAYRIMMO-293

Florian Mayr Immobilien e.U.
Bewertung: 5 von 5 Sternen
Wie zufrieden bist du mit dieser Seite (nicht mit der Immobilie selbst)?

