

Wohnung zum Kauf - Erstbezug295000 €3.414 €/m²3 Zimmer • 67,8 m² • 1. Geschoss
295000 €
3.414 €/m²
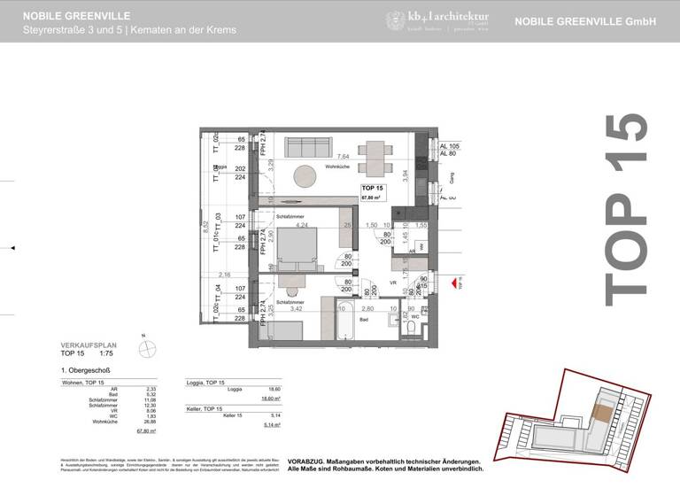
3 Zimmer • 67,8 m² • 1. Geschoss
Nobile Greenville - Exklusives Wohnen mit Weitblick
Merkmale
- 1. Geschoss
- Personenaufzug
- Barrierefrei
- Bodenbelag: Fliesen, Holzdielen
- Loggia
Grundrisse
Grundrisse
1 / 1
Realisiere Dein Projekt
Bausubstanz und Energie
Heizwärmebedarf (HWB)
B
Gesamtenergieeffizienz (fGEE)
A+
- Baujahr2026
- Zustand der ImmobilieNeubau, Erstbezug
- HeizungsartFuĂźbodenheizung
- EnergieträgerFernwärme, Solar
Preisdetails
Kaufpreis
295000 €
3.414,35 €/m²
Provision für Käufer
3% des Kaufpreises zzgl. 20% USt.
Lage

Kematen an der Krems (4531)
Weitere Informationen
Weitere Services
Lust auf eine Besichtigung?
Eine Frage zur Immobilie?
Ăśber den Anbieter
OVB Allfinanzvermittlungs GmbHMaklerbĂĽro
Sirone StraĂźe 4/1/C, 5071 WALS B. SALZBURG
Partnerschaft
Frau Sara HufnaglDein Kontakt
Weitere Unterlagen
Online-ID: 2lxrm5e
Referenznummer: OBGC2025071016583699397a7c00b2c
OVB Allfinanzvermittlungs GmbH
Wie zufrieden bist du mit dieser Seite (nicht mit der Immobilie selbst)?

