

Lindemann Immobilien Hausverwaltung
Herr Martin Cordes
+49 ···
Nr. anzeigenPreise & Kosten
Provision für Käufer
Keine Käuferprovision
Lage
Wohnen in Buxtehude und Arbeiten in Hamburg lässt sich durch die Direktverbindung wunderbar kombinieren - S-Bahn und B73 machen es möglich.
Die Stadt Buxtehude kann mit allem dienen, was Sie in Ihrem Alltag wünschen. Sie finden nicht
nur Einkaufsmöglichkeiten, Ärzte und Schulen aller Jahrgangsstufen, sondern auch...
Das Haus
Kategorie
Mehrfamilienhaus
Baujahr
1994
Bezug
Nach Vereinbarung
Derzeitige Nutzung
vermietet
Energie & Heizung
Warum sehe ich diese Anzeige? – Du siehst diese Anzeige basierend auf Ihrer Navigation auf unserer Website und den Suchkriterien, die du verwendet hast.
Energieausweistyp
Verbrauchsausweis
Gebäudetyp
Wohngebäude
Baujahr laut Energieausweis
1994
Wesentliche Energieträger
GAS
Gültigkeit
bis 08.04.2027
Effizienzklasse
D
Endenergieverbrauch
126,10 kWh/(m²·a)
Details
Objektbeschreibung
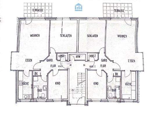
Zum Verkauf stehen zwei gepflegte und modernisierte Mehrfamilienhäuser mit insgesamt 8 Wohnungen in Buxtehude.
Diese beiden baugleichen Mehrfamilienhäuser in Buxtehude bieten Kapitalanlegern eine attraktive Gelegenheit, in eine sichere und werthaltige Wohnimmobilie in gefragter Lage zu investieren.
Die Objekte...
Ausstattung
- Sehr gepflegter Zustand
- Moderne Küchen
- Außenjalousien in den meisten Räumen
- Balkone oder Terrassen
- Abstellräume in den Wohnungen und im Dachgeschoß
- 8 Carport-Stellplätze sowie 3 Außenstellplätze
- Fahrradschuppen für die Mieter
- Hervorragende Lage
Die Häuser sind laufend instand...
Preisinformation
8 Carportplätze
Weitere Informationen
Sonstiges
Es liegt ein Energieverbrauchsausweis vor.
Dieser ist gültig bis 8.4.2027.
Endenergieverbrauch beträgt 126.10 kwh/(m²*a).
Wesentlicher Energieträger der Heizung ist Gas.
Das Baujahr des Objekts lt. Energieausweis ist 1994.
Die Energieeffizienzklasse ist D.
Interessiert? Das vollständige...
Anbieter der Immobilie
Lindemann Immobilien Hausverwaltung
Am Elbdeich 28, 21635 Jork

Online-ID: 2k4r75z
Referenznummer: 25 K 007
Finde Angebote wie dieses
Hier geht es zu unserem Impressum, den Allgemeinen Geschäftsbedingungen, den Hinweisen zum Datenschutz und nutzungsbasierter Online-Werbung.