
FIH Fürst Immobilien Hannover GmbH
Herr George Petrescu
+49 ···
Nr. anzeigenPreise & Kosten
Provision für Mieter
siehe Sonstiges inkl. MwSt.
Warum sehe ich diese Anzeige? – Du siehst diese Anzeige basierend auf Ihrer Navigation auf unserer Website und den Suchkriterien, die du verwendet hast.
Lage
Das Objekt befindet sich im mittleren Teil der Vahrenwalder Strasse, an der Ecke Büttnerstraße. Daraus folgt ein optimaler Anschluss sowohl an das nationale Autobahnnetz, wie auch eine schnelle und einfache Verbindung in das Stadtzentrum von Hannover.
Darüber hinaus ist der internationale Flughafen Hannover-Langenhagen...
Büro-/Praxisfläche
Baujahr
1971
Bezug
sofort
Geschoss
1. Geschoss
Energie & Heizung
Warum sehe ich diese Anzeige? – Du siehst diese Anzeige basierend auf Ihrer Navigation auf unserer Website und den Suchkriterien, die du verwendet hast.
Weitere Energiedaten
Energieträger
Öl
Heizungsart
Zentralheizung
Details
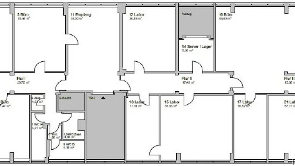
Objektbeschreibung
Das Büroobjekt ist an der Vahrenwalder Straße Ecke Büttnerstraße situiert und verfügt somit über einen überdurchschnittlich gute Erreichbarkeit sowie Sichtbarkeit. Die jeweiligen Etagen sind mit dem Aufzug zu erreichen.
Die zur Anmietung stehende Fläche befindet sich im 1.OG. Auf Grund der flexiblen Struktur der...
Ausstattung
Nach Vereinbarung.
Weitere Informationen
Sonstiges
Baujahr: 1971
Befeuerung/Energieträger: Öl
Heizungsart: Öl-Heizung
Bei einem Vertragsabschluss mit einer festen Laufzeit von bis zu 5 Jahren erlauben wir uns Ihnen eine Mieterprovision in Höhe von 3 Nettomonatsmieten zzgl. gesetzl. MwSt. bzw. 4 Nettomonatsmieten zzgl. gesetzl. MwSt. bei einem...
Anbieter der Immobilie
FIH Fürst Immobilien Hannover GmbH
Luisenstraße 12, 30159 Hannover
Online-ID: 2cf5y54
Referenznummer: 121458
Finde Angebote wie dieses
Hier geht es zu unserem Impressum, den Allgemeinen Geschäftsbedingungen, den Hinweisen zum Datenschutz und nutzungsbasierter Online-Werbung.