Großzügige 4-Zimmer Dachgeschosswohnung in Potsdam West mit Havelblick - hochwertig ausgebaut -
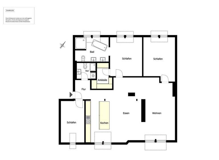
Diese großzügige 4-Zimmer-Dachgeschosswohnung vereint einen repräsentativen Grundriss mit der besonderen Atmosphäre eines sorgfältig erneuerten Altbauensembles. Auf etwa 128 m² Wohnfläche befindet sich ein hochwertig ausgebautes neues Zuhause, das durch Qualität, Licht und intelligente Raumaufteilung überzeugt. Der Aufzug führt Sie komfortabel bis vor die eigene Wohnungstür und unterstreicht den gehobenen Wohnkomfort.
Im Mittelpunkt steht ein weitläufiger Wohn- und Essbereich mit offener Küche und lichtreichem Ambiente. Das Schlafzimmer verfügt über einen Ankleideraum sowie einem direkten Zugang zum stilvollen Hauptbad mit Badewanne und Dusche. Zwei weitere Zimmer bieten flexible Nutzungsmöglichkeiten - ideal als Kinder-, Arbeits- oder Gästezimmer. Ergänzend steht ein separates Gäste-WC zur Verfügung.
Echtholzböden, Feinsteinzeug in moderner Optik und designstarke Sanitärobjekte prägen das harmonische Gesamtbild. Die Verbindung aus historischer Bausubstanz, modernem Ausbau und komfortabler Ausstattung macht diese Wohnung zu einem einzigartigen Objekt.
Die Wohnlage in Potsdam West verbindet Urbanität mit Nähe zur Havel und zum Park Sanssouci. Einkaufsmöglichkeiten, Cafés, Restaurants und Kultureinrichtungen befinden sich in unmittelbarer Nähe. Über den nahegelegenen Bahnhof Charlottenhof gelangen Sie in rund 30 Minuten nach Berlin und in rund 40 Minuten zum Flughafen BER.
Merkmale
Dachgeschoss
Personenaufzug
Kelleranteil
Gäste-WC
. Hochwertiger Dachgeschossausbau . Ca. 128 m² Wohnfläche . Tiefgaragenstellplatz . Großzügiger, offener Wohn-/Essbereich mit Dachflächenfenstern . Beeindruckender Wasserblick auf die Havel . Großzügiges Badezimmer und separates Gäste-Bad mit Dusche . Design-Sanitärobjekte und großformatige Fliesen . Zargelose Türen des italienischen Herstellers Carletti . Hochwertiger Echtholzparkettboden in allen Wohnräumen . Fußbodenheizung in der gesamten Wohnung . Großzügige Raumhöhe durch klassische Dachschrägen mit Lichtdurchflutung . Elektrisch betriebene Dachflächenfenster mit Sonnenschutz möglich . Hochwertige Elektrik- und Lichtinstallationen . Netzwerk- und TV-Anschlüsse in allen Wohn- und Schlafräumen . Vorbereitung für Einbauküche mit sämtlichen Anschlüssen . Zentrale Lage mit fußläufiger Anbindung an Tram, Bus und Bahn . Fahrrad- und Lastenradstellplätze auf dem Grundstück . KfW-energieeffizienter Ausbaustandard . Geschäfte des täglichen Bedarfs im direkten Umfeld . Sehr gute Anbindung an den ÖPNV (Bhf. Charlottenhof in 5 Min. Fußweg erreicht) . Mit dem RE in ca. 30 Minuten zum Kurfürstendamm & Berliner HBF . Flughafen BER in ca. 40 Min.
Grundrisse
Grundrisse
1 / 1
Realisiere Dein Projekt
Bausubstanz und Energie
Der Anbieter hat keine Informationen zum Energieverbrauch bereit gestellt.
Zustand der Immobilieneuwertig
HeizungsartFußbodenheizung
EnergieträgerElektro
Preisdetails
Kaufpreis
745000 €745.000 €
5.806,70 €/m²
Provision für Käufer
3,57 % inkl. MwSt. bezogen auf den beurkundeten Kaufpreis
Geschätzte Gesamtkosten
834.921 €1
Kaufpreis
745.000 €
Kaufnebenkosten
89.921 €
2
Notarkosten (1,5%)
11.175 €
Grunderwerbsteuer (6,5%)
48.425 €
Provision für Käufer (3,57%)
26.596 €
Grundbucheintrag (0,5%)
3.725 €
1Der angezeigte Wert ist eine automatisch berechnete Schätzung von immowelt.
2Bei den Angaben handelt es sich um ortsübliche Werte. Individuelle Kosten können abweichen.
Lage
Potsdam West, Potsdam - West (14471)
Der Anbieter hat die genaue Adresse nicht freigegeben
Potsdam ist inzwischen weit über Brandenburgs und Berlins Grenzen hinweg für seine Anmut und Attraktivität bekannt. Die Kulturlandschaften wurden 1990 von der UNESCO als größtes Ensemble der deutschen Welterbestätten in die Liste des Weltkultur- und Naturerbes der Menschheit aufgenommen. Als ehemalige Residenzstadt der Kaiser und Könige von Preußen, mit einzigartigen Schloss- und Parkanlagen, besticht die Stadt in der Gegenwart zudem mit exklusiver Wohnqualität. Potsdam besteht zu 2/3 aus Grünflächen und den Gewässern der Havel.
Die Lebensbedingungen werden sehr geschätzt. So haben sich die Einwohnerzahlen seit dem Jahr 2000 bis heute von unter 130.000 auf inzwischen 187.000 entwickelt. Das urbane Leben der Metropole Berlin und die Vorzüge Potsdams veranlassen stetig mehr Menschen zur Verlegung ihres Lebensmittelpunkts in die Landeshauptstadt.
Potsdam-West ist ein bunter Stadtteil voller Gegensätze, die sich jedoch wunderbar ergänzen und bereichern. Hier trifft Ost auf West, Alt- auf Plattenbau, Havelufer auf Sanssouci und junge Familien auf rüstige Senioren. So unterschiedlich der Stadtteil rein äußerlich wirkt, so vereint sind die Bewohner im Kiez. Der Stadtteil erstreckt sich von der Innenstadt bis zum Wildpark, dem westlichen Rand Potsdams, sowie vom Park Sansscouci bis zum Havelufer. In diesem Stadtteil gibt es vor allem eines: viel zu entdecken.
Mit der unweit entfernten Bahn, gelangen Sie zum Berliner Innenstadtbahnhof Zoologischer Garten in ca. 27 Minuten Fahrtzeit. Der Hauptbahnhof Potsdam ist in ca. 5 Minuten erreichbar. Einrichtungen des täglichen Bedarfs sind im nahen Umfeld sowie in der etwa 3 km entfernten Innenstadt vorzufinden.
Weitere Informationen
Sonstiges
Ihre Werte sind bei uns in besten Händen
DAHLER ist auf die Vermittlung hochwertiger Wohnimmobilien in bevorzugten Lagen spezialisiert. Seit über 30 Jahren wird unser Unternehmen von Kirsten und Björn Dahler geführt und setzt mit Innovationskraft und Servicequalität Maßstäbe in der Branche. Unsere mehr als 90 Standorte in Deutschland und Spanien unterstützen den Erfolg Ihres Immobilienverkaufs nachhaltig und stehen Ihnen in allen Themen rund um den Immobilienverkauf professionell zur Seite.
Unsere Maxime ist es, Ihre Erwartungen beim Immobilienverkauf zu übertreffen und wir freuen uns, Ihnen mit unseren Fach- und Marktkenntnissen und einer kompetenten Beratung zur Seite zu stehen. Unabhängig davon, ob Sie ein Haus oder eine Wohnung verkaufen möchten. Wir verstehen uns als Servicemakler. Denn wer sein Anliegen rund um das Thema Immobilie in unsere Hände legt, vertraut auf den verantwortungsvollen Umgang mit erheblichen materiellen Werten. Diesem Anspruch begegnen wir in allen Phasen des Verkaufs einer Immobilie mit innovativen Serviceleistungen. Dabei stehen profunde Fach- und Marktkenntnisse und eine kompetente Beratung im Vordergrund. Für Immobilienverkäufer sind unsere Services darüber hinaus komplett kostenfrei.
7 Gründe für einen Immobilienverkauf mit DAHLER
01 SPEZIALISIERUNG
Wir sind "Zuhause in besten Lagen" und konzentrieren uns auf hochwertige Wohnimmobilien in bevorzugten Wohnvierteln.
02 MARKTNÄHE
Der Blick auf kleinste Gebiete ermöglicht unseren Beratern eine profunde Kenntnis ihres Teilmarktes.
03 RESEARCH
Laufende fundierte Marktanalysen bilden die Basis für standortgerechte Werteinschätzungen.
04 FACHEXPERTISE
Umfassende Schulungen aller Mitarbeiter sichern ein gleichbleibend hohes Qualitätsniveau in der Beratung.
05 ERFOLG
Dank eines ausgefeilten Marketingkonzepts erreichen wir eine durchschnittliche Vermarktungsdauer von nur zwei bis drei Monaten.
06 DISKRETION
Auf Wunsch unserer Auftraggeber vermarkten wir jede Immobilie unter Wahrung höchster Diskretion.
07 NETZWERK
Zuhause kann überall sein. Deshalb machen wir Ihr Angebot überregional bekannt und platzieren es in über 90 Standorten.
Stichworte
Anzahl der Schlafzimmer: 3, Anzahl der Badezimmer: 1, Anzahl der separaten WCs: 1, 5 Etagen