


1 / 14



1 / 14
Bürofläche zur Miete • provisionsfrei6.000 €11 Zimmer • 500 m² Bürofläche
6.000 €
11 Zimmer • 500 m² Bürofläche
Eine ganze Büroetage im Stammhaus einer Münchner IT-Ikone!
Im ersten Obergeschoss des firmeneigenen Gebäudes bietet der renommierte Münchner Internet-Full-Service-Provider und IT-Dienstleister SpaceNet AG zentral und ruhig gelegene Büroflächen in unmittelbarer Nähe des Frankfurter Rings an.
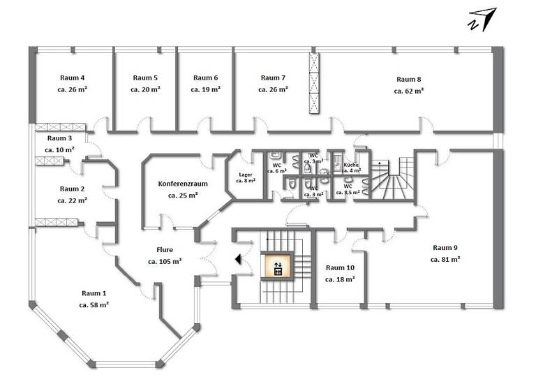
Das Angebot umfasst einen zentralen Bereich mit Konferenzraum, von dem aus zehn Arbeitsräume über Flure erreicht werden. Diese sind mit Einbauschränken ausgestattet und größtenteils klimatisiert. Weiterhin sind eine Küche, ein Lager und vier Sanitäranlagen vorhanden.
Durch verschieden große Räume und eine professionelle Infrastruktur für Telekommunikation und Internetzugang können die Flächen individuell an interne Aufbau- und Ablauforganisationen angepasst werden.
Bei Bedarf können bis zu 10 Gigabit pro Sekunde an Netzwerk-Bandbreite zur Verfügung gestellt werden. Dies ist ideal für Szenarien mit sehr hohem Datenaufkommen.
Erschlossen werden die Flächen über einen großzügigen Lift oder das Treppenhaus des Gebäudes. Über diese Wege erreicht man auch die Tiefgarage.
Der Empfangsbereich im Erdgeschoss ist permanent besetzt. Hier können Nachrichten und Post hinterlassen werden. Besucherparkplätze befinden sich im Hofraum vor dem Gebäude.
Das Objekt wird durch einen externen Sicherheitsdienstleister geschützt.
Auf die Gesamtnettomiete für die Büroetage und die vier Tiefgaragenstellplätze in Höhe von EUR 6.250,00 sowie die Nebenkostenvorauszahlung in Höhe von EUR 1.500,00 fällt die gesetzliche Mehrwertsteuer in Höhe von derzeit 19 % (EUR 1.472,50) an. Die monatlich zu leistende Bruttomietzahlung beträgt insgesamt EUR 9.222,50.
Wir freuen uns auf Ihre E-Mail, mit der Sie uns bitte Ihren Namen samt vollständiger Anschrift, eine Telefonnummer sowie Ihre E-Mail-Adresse übermitteln.
Clavis Immobilien OHG
Merkmale
- frei ab sofort
- 1. Geschoss
- Personenaufzug
- Tiefgarage
- teilweise möbliert
- voll klimatisiert
- Beleuchtung: Deckenbeleuchtung
Grundrisse
Grundrisse
1 / 1
Realisiere Dein Projekt
Bausubstanz und Energie
Möchtest du Details zum Energieverbrauch?

- EnergieträgerGas
Mietkosten
Warmmiete
7.500 €
Nettomiete
6.000 €
Nebenkosten
1.500 €
Heizkosten
in Nebenkosten enthalten
Zusätzliche Kosten
Miete pro Stellplatz
250 €
Provision für Mieter
provisionsfrei
Kaution
9000 €9.000 €
Lage

Joseph-Dollinger-Bogen 14, Schwabing-Freimann, München (80807)
Der Stadtbezirk Schwabing-Freimann liegt im Münchner Norden. Im Süden wird er vom Siegestor begrenzt, im Norden durch die Stadtgrenze Münchens, im Osten durch die Isar, im Westen größtenteils durch die Leopoldstraße und die Ingolstädter Straße.
Der Stadtbezirk ist sowohl durch Wohn- als auch Gewerbebebauung geprägt und sehr gut an die örtliche Verkehrsinfrastruktur sowie über Buslinien, Trambahn und U-Bahn an den ÖPNV angeschlossen. Vom Joseph-Dollinger-Bogen gelangt man in nur drei Minuten auf die Autobahn A9. Das Münchner Zentrum ist in 15 Autominuten erreicht. Zum Hauptbahnhof und zum Münchner Flughafen fährt man jeweils nur ca. 20 Minuten.
Seit dem Jahr 2000 wird das frühere Industriegebiet zwischen Schenkendorfstraße, der A9, der Domagkstraße und der aufgelassenen Güterbahntrasse zu einem neuen Stadtteil umgestaltet, der “Parkstadt Schwabing”. Hier sind ein Büro-, Hotel- und Geschäftszentrum mit rund 12.000 Arbeitsplätzen im Dienstleistungs- und Gewerbesektor sowie einem Wohngebiet mit 1.500 Wohneinheiten entstanden.
Auf dem Areal der ehemaligen Funkkaserne liegt ein städtisches Entwicklungsgebiet, auf dem ebenfalls Wohnraum geschaffen wurde. Es ist zu erwarten, dass langfristig der Wohn- und Wirtschaftszusammenhang der “Parkstadt Schwabing” sich über dieses Entwicklungs-gebiet hinaus bis zum Frankfurter Ring ausdehnen und so das Gewerbegebiet am Joseph-Dollinger-Bogen integrieren wird.
An den ÖPNV ist der Joseph-Dollinger-Bogen sehr gut angebunden. Zu den Haltestellen der Buslinie 177 geht man 3 Minuten zu Fuß. Mit dieser Buslinie erreicht man in wenigen Minuten die U3 bzw. U6 an den Haltestellen Studentenstadt, Frankfurter Ring und Petuelring sowie die Tramlinien 23 und 27 an den Haltestellen Schwabing Nord und Petuelring. Hat man vor oder nach der Arbeit Lust auf einen kleinen Spaziergang, gelangt man zu Fuß in 10 Minuten zur U-Bahn und in 15 Minuten zur Tram.
Für die Mittagspause bieten sich unter anderem die Wirtschaft “Zum Metzger Rudi” in der benachbarten Kleingartensparte oder ein ca. 3 Minuten entferntes Schnellrestaurant an.
Außerdem werden die im Gebäude tätigen Personen auf Bestellung durch einen externen Catering-Service versorgt.
Gäste können im “Rilano 24/7” Hotel in der Domagkstraße 26 oder im fußläufig erreichbaren “B&B Hotel München City-Nord” übernachten.
Weitere Informationen
Sonstiges
Info: Anzahl Etagen: 4
Trotz sorgfältiger Prüfung können wir keine Haftung für die Richtigkeit und die Vollständigkeit der Objektdaten übernehmen. Diese basieren auf uns erteilten Angaben sowie eigenen Recherchen. Die Grundrissdarstellungen sind nicht maßstabsgerecht.
Es gelten unsere Allgemeinen Geschäftsbedingungen.
Wir wurden mit der Vermietung dieser Immobilie im Alleinauftrag betraut. Es ist der ausdrückliche Wunsch der Vermieter, dass sämtliche Gespräche und Besichtigungen über uns abgewickelt werden.
Seit dem 13.06.2014 gilt das “Gesetz zur Umsetzung der EU-Verbraucherrechte-Richtlinie“. Die Neuregelungen im Verbraucherrecht haben unter anderem zur Folge, dass Verbraucher die Möglichkeit haben, Verträge über Dienstleistungen von Immobilienmaklern, welche außerhalb von Geschäftsräumen oder über das Internet sowie per Telefon, E-Mail oder Brief geschlossen wurden, innerhalb von 14 Tagen zu widerrufen.
Die vorgeschriebene Widerrufsbelehrung samt Muster-Widerrufsformular finden Sie als Link bei unseren Anbieterdaten bzw. in der von der Internetimmobilienplattform automatisch generierten Kontaktaufnahmebestätigung.
Zudem erhalten Sie von uns i. d. R. nach Ihrer Kontaktaufnahme die vorgeschriebene Widerrufsbelehrung samt Muster-Widerrufsformular als Bestandteil des Objektexposés per E-Mail.
Auf Anforderung erhalten Sie von uns ein Exposé zu dieser Immobilie, in welchem u. a. unsere Datenschutzerklärung gemäß DSGVO enthalten ist. Mit den Datenschutzhinweisen informieren wir Sie über die Datenverarbeitung in unserem Haus.
Diese Datenschutzerklärung können Sie auch über unsere Internetseite www.clavisimmobilien.de einsehen. Der guten Ordnung halber weisen wir darauf hin, dass wir die uns von Ihnen übermittelten Daten ausschließlich zur Bearbeitung Ihrer Anfrage bzw. des uns erteilten Vermietungsauftrages verwenden. Hieraus ergibt sich, dass Daten von Interessenten unter Umständen an unsere Auftraggeber (Vermieter) bzw. u. U. an deren Rechtsberater weitergegeben werden. Sollten Sie hiermit nicht einverstanden sein, so teilen Sie uns dies bitte ausdrücklich mit.
Wir freuen uns auf Ihre E-Mail, mit der Sie uns bitte Ihren Namen samt vollständiger Anschrift, eine Telefonnummer / Mobilrufnummer sowie Ihre E-Mail-Adresse übermitteln.
Clavis Immobilien OHG
Weitere Services
Lust auf eine Besichtigung?
Eine Frage zur Immobilie?
Über den Anbieter
Rathausplatz 1, 85579 Neubiberg

Harald KeilDein Kontakt
Weitere Unterlagen
Online-ID: 26QHWYYR629Z
Referenznummer: VMG2026_SNOG1_IW01

Clavis Immobilien OHG
5/5Bewertung: 5 von 5 Sternen
Wie zufrieden bist du mit dieser Seite (nicht mit der Immobilie selbst)?