
Immobilienquartier iQ OG
Herr Ömer Uyar
+43 ···
Nr. anzeigenPreise & Kosten
Provision für Käufer
3% des Kaufpreises zzgl. 20% USt.
Lage
Kliebergasse I Wiedner Hauptstraße
Die Wohnung
Wohnungslage
1. Geschoss
Wohnanlage
Energie & Heizung
Warum sehe ich diese Anzeige? – Du siehst diese Anzeige basierend auf Ihrer Navigation auf unserer Website und den Suchkriterien, die du verwendet hast.
Heizwärmebedarf (HWB)
65,10 kWh/(m²·a)
Gesamtenergieeffizienz (fGEE)
1,67
Weitere Energiedaten
Energieträger
Gas
Heizungsart
Etagenheizung
Details
Objektbeschreibung
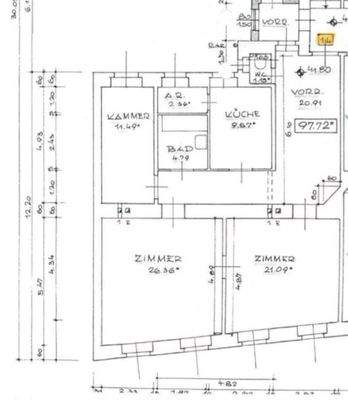
Zum Verkauf steht eine drei Zimmer Wohnung mit 97,72 m2 Wohnfläche im 5. Wiener Gemeindebezirk. Die Wohnung befindet sich im 1. Liftstock in unmittelbarer Gehdistanz zur S-Bahn Matzleinsdorfer Platz.
Die Wohnung teilt sich wie folgt auf:
- ein großzügiger...
Weitere Informationen
Stichworte
Anzahl der Badezimmer: 1, Anzahl der separaten WCs: 1, Kellerfläche: 4,00 m², Bundesland: Wien
Anbieter der Immobilie
Immobilienquartier iQ OG
Lechnerstraße 18/6, 1030 WIEN
Online-ID: 2k35t55
Referenznummer: OBGC202505241037474897c834564dd
Finde Angebote wie dieses
Günstige Immobilienfinanzierung einfach online berechnen
Persönliches Angebot berechnenWarum sehe ich diese Werbung? – Du siehst diese Werbung basierend auf Deiner Navigation auf unserer Website und der von Dir verwendeten Suchkriterien.
Diese Werbung wird bezahlt von durchblicker
Werbung melden
Hier geht es zu unserem Impressum, den Allgemeinen Geschäftsbedingungen, den Hinweisen zum Datenschutz und nutzungsbasierter Online-Werbung.