

Immo Heller
Herr Johannes Heller
+49 ···
Nr. anzeigenPreise & Kosten
Provision für Mieter
2 Nettokaltmieten (zzgl. MwSt.)
Alle Angaben auf Basis der Informationen vom Auftraggeber, nach bestem Wissen. Irrtum und Zwischenvermietung vorbehalten. Weitere Informationen siehe Provisionshinweis.
Warum sehe ich diese Anzeige? – Du siehst diese Anzeige basierend auf Ihrer Navigation auf unserer Website und den Suchkriterien, die du verwendet hast.
Die Industriefläche
Kategorie
Lagerhalle
Baujahr
1991
Bezug
sofort
Energie & Heizung
Warum sehe ich diese Anzeige? – Du siehst diese Anzeige basierend auf Ihrer Navigation auf unserer Website und den Suchkriterien, die du verwendet hast.
Wärme
Strom
Energieausweistyp
Verbrauchsausweis
Gebäudetyp
Nicht-Wohngebäude
Baujahr laut Energieausweis
1991
Wesentliche Energieträger
Gas
Gültigkeit
10.11.2025 bis 09.11.2035
Endenergieverbrauch (Wärme)
40,10 kWh/(m²·a) - Warmwasser enthalten
Endenergieverbrauch (Strom)
21,40 kWh/(m²·a) - Warmwasser enthalten
Weitere Energiedaten
Energieträger
Gas
Heizungsart
Zentralheizung
Details
Objektbeschreibung
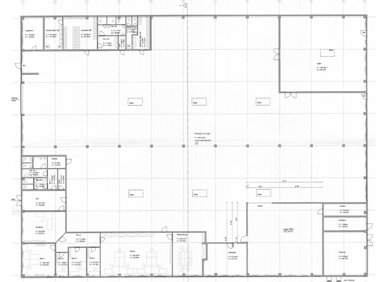
Die zur Vermietung stehende Gewerbeimmobilie in der Ossietzkystraße 8 in Würzburg-Heuchelhof umfasst ein ca. 12.080 Quadratmeter großes Grundstück mit einer Gebäudefläche von rund 2.500 Quadratmetern. Davon entfallen etwa 2.050 Quadratmeter auf funktionale Lagerflächen sowie rund 450 Quadratmeter auf helle Büroräume (inkl...
Preisinformation
31 Stellplätze
Weitere Informationen
Provisionshinweis
2 Nettokaltmieten (zzgl. MwSt.)
Alle Angaben auf Basis der Informationen vom Auftraggeber, nach bestem Wissen. Irrtum und Zwischenvermietung vorbehalten. Dieses Exposé ist eine Vorinformation, als Rechtsgrundlage gilt allein der abgeschlossene Mietvertrag. Der Mieter zahlt im Erfolgsfall an die Firma...
Anbieter der Immobilie
Immo Heller
Eichhornstraße 4, 97070 Würzburg

Online-ID: 2mc9l5z
Referenznummer: 5491#H6tGt
Finde Angebote wie dieses
Hier geht es zu unserem Impressum, den Allgemeinen Geschäftsbedingungen, den Hinweisen zum Datenschutz und nutzungsbasierter Online-Werbung.