
homesellfie
Herr Alex Enns
004 ···
Nr. anzeigenPreise & Kosten
Provision für Käufer
provisionsfrei
Lage
Das Zweifamilienhaus an der Lignitzstraße 13 liegt in einer ruhigen und familienfreundlichen Wohngegend in Bremen. Die Umgebung zeichnet sich durch eine hervorragende Anbindung an den öffentlichen Nahverkehr aus, sodass die Innenstadt und weitere Stadtteile bequem erreicht werden können. Einkaufsmöglichkeiten, Schulen und...
Das Haus
Kategorie
Mehrfamilienhaus
Baujahr
1963
Bezug
ab sofort
Energie & Heizung
Warum sehe ich diese Anzeige? – Du siehst diese Anzeige basierend auf Ihrer Navigation auf unserer Website und den Suchkriterien, die du verwendet hast.
Energieausweistyp
Bedarfsausweis
Gebäudetyp
Wohngebäude
Wesentliche Energieträger
GAS
Effizienzklasse
C
Weitere Energiedaten
Energieträger
Gas
Heizungsart
Zentralheizung
Details
Objektbeschreibung
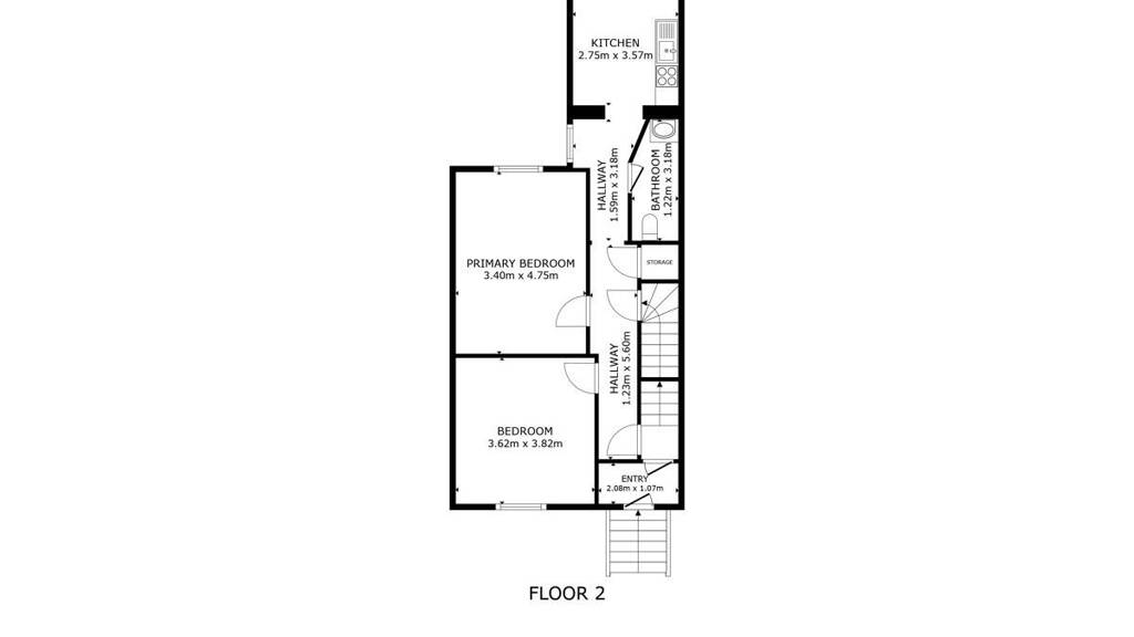
Dieses charmante Zweifamilienhaus als Reihenmittelhaus bietet auf insgesamt 147 Quadratmetern flexible Nutzungsmöglichkeiten. Mit zwei separat abgeschlossenen Wohnungen eignet es sich ideal sowohl zur Vermietung als auch zur Eigennutzung.
In den letzten Jahren wurden zahlreiche Modernisierungen vorgenommen: Die Fenster...
Weitere Informationen
Sonstiges
- Modernisierung der Fenster 2023
- Haupteingangstür 2023
- Zentralheizung 2018
- Wasser/Abwasser zum größten Teil 2014
- Stromleitung 2014
- Malerarbeiten (Fußboden/Wände) 2014
- 3 Badezimmer 2014
Stichworte
Fahrradraum, Nutzfläche: 215,95 m², Anzahl der Schlafzimmer: 4, Anzahl der...
Anbieter der Immobilie
Online-ID: 2gtbf5g
Referenznummer: HS-24-54
Finde Angebote wie dieses
Hier geht es zu unserem Impressum, den Allgemeinen Geschäftsbedingungen, den Hinweisen zum Datenschutz und nutzungsbasierter Online-Werbung.