Geplantes Neubauvorhaben - Doppelhaushälfte mit Baugenehmigung
Zwei Einheiten - ein Wohntraum: Doppelhaushälfte mit Baugenehmigung
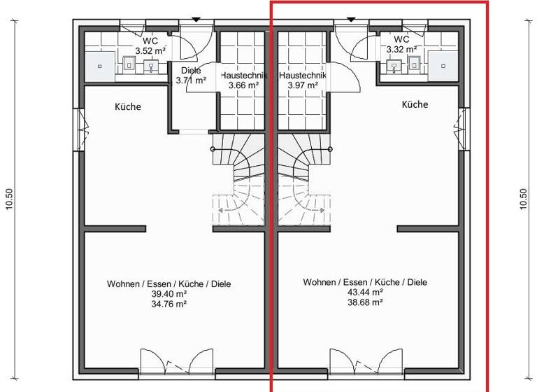
Bei diesem Angebot handelt es sich um eine Neubau Doppelhaushälfte, auf einem ca. 315 m² großen Grundstück errichtet wird. Diese Doppelhaushälfte ist förderfähig mit KfW 55 und bietet auf eher kleinem Raum große Gestaltungsmöglichkeiten. Von der Wohn-/Nutzfläche von ca. 113 m² fallen ca. 86 m² auf die Wohnfläche im EG und DG. Zusätzlich können ca. 27 m² Nutzfläche im Spitzboden genutzt werden.
Der Grundriss ist effizient und offen gestaltet. Die Diele führt Sie, am Gäste-WC und Haustechnikraum vorbei, direkt in die Küche, welche zum großzügigen Wohn- und Essbereich, durch eine Wand, etwas abgegrenzt ist. Ein dreiflügeliges Terrassentürelement sorgt für Helligkeit und lässt einen weiten Blick in den Garten zu.
Über die Treppe gelangt man in das Dachgeschoss mit einem Kinderzimmer, einem kleinen Büro, dem Bad und dem Schlafzimmer mit Ankleide und dem
bodentiefen Fensterelement des Giebels. Bei zusätzlichem Raumbedarf bietet dieser Grundriss die Möglichkeit, den Spitzboden auszubauen.
Merkmale
315 m² Grundstück
2 Badezimmer: Badewanne, Bad mit Dusche, Bad mit Fenster
2 WCs, Gäste-WC
Kein Keller
ausbaufähiges Dach
Gartenanteil
Fenster: Kunststoff
- Wärmegedämmte Sohlenplatte aus Beton mit 80 mm Untersohlendämmung
- Fußbodenheizung im Erd- und Dachgeschoss
- Mauerwerk im Erd-, Dach-/Obergeschoss in Massivbauweise
- 2,775 m Standard-Rohbau-Geschosshöhe im Erd- und Dachgeschoss
- Dachstuhl aus Konstruktionsvollholz
- Haus und Nebeneingangstür mit Sicherheitsausstattung
(Mehrfachverriegelung und gleichschließendem Profilzylinder)
- Elektrisch betriebene Rollläden an allen Fenstern mit Südausrichtung (Wohn-/Esszimmer und Schlafzimmer)
- Umfangreiche Elektroinstallation gem. Baubeschreibung
- Vollbad mit einer Superplandusche von Kaldewei oder Villeroy & Boch je nach Auswahl durch Sie, Badewanne von Villeroy & Boch mit mittiger Ablaufgarnitur und zwei Schrägen Bereichen zum Liegen, Wandhängende WCs von Villeroy Boch
- Fliesenverlegung in Badezimmer, Gäste WC, Küche, Erdgeschoss-Flur sowie den Haustechnikraum mit Fliesenabmessungen von 30 x 60 cm bis zu einem Materialwert von 40 €/m²
- 1/4-gewendelte Buchentreppe, Holzart: Mosaik stabverleimt
- Kontrollierte Wohnraumlüftungsanlage mit Wärmerückgewinnung des Herstellers Vaillant oder Bosch
- Luft-Wasser-Wärmepumpe des Herstellers Vaillant
- Bodengutachten mit 4 Bohrungen und geologischer Auswertung inklusive LAGA Bodenuntersuchung
- Blowerdoortest inkl. Zertifikat durch ein unabhängiges und zertifiziertes Ingenieurbüro
- 10 Jahre Gewährleistung auf alle Rohbau-, Maurer- und Betonarbeiten
- Vertragserfüllungsbürgschaft
- Versicherungspaket während der Bauphase (Bauherrenhaftpflichtversicherung, Bauwesenversicherung und Feuerrohbauversicherung
- 12 Monate Festpreisgarantie
- Bauzeitgarantie: nach Baubeginn maximal 9 Monate bis zur Fertigstellung des Hauses
Und vieles mehr…
Grundrisse
Grundrisse
1 / 4
Realisiere Dein Projekt
Bausubstanz und Energie
Energieausweis
Ein Energieausweis ist für diesen Gebäudetyp nicht notwendig.
Zustand der Immobilieneuwertig
HaustypKfW 55
HeizungsartFußbodenheizung
EnergieträgerLuft-/Wasser-Wärmepumpe
Preisdetails
Kaufpreis
451150 €451.150 €
3.992,48 €/m²
Provision für Käufer
provisionsfrei
Geschätzte Gesamtkosten
489.498 €1
Kaufpreis
451.150 €
Kaufnebenkosten
38.348 €
2
Notarkosten (1,5%)
6.767 €
Grunderwerbsteuer (6,5%)
29.325 €
Grundbucheintrag (0,5%)
2.256 €
1Der angezeigte Wert ist eine automatisch berechnete Schätzung von immowelt.
2Bei den Angaben handelt es sich um ortsübliche Werte. Individuelle Kosten können abweichen.
Lage
Ochsenzoller Straße 17, Garstedt, Norderstedt (22848)
Das Grundstück liegt in einer Wohngegend im südlichen Teil von Norderstedt. Mehr als die Hälfte der Stadtfläche unterteilen sich in Wald- und Grünflächen, wodurch zahlreiche Spazier- und Reitmöglichkeiten gegeben sind. Sämtliche Einrichtungen des täglichen Lebensbedarfs sind stets in unmittelbarer Nähe vorhanden. Neben dem Erlebnisbad „Arriba“ bieten u. a. zahlreiche Vereine viele Möglichkeiten für Aktivitäten und Freizeitgestaltung.
Durch die attraktive Lage ist es auch mit öffentlichen Verkehrsmitteln nur ein Katzensprung nach Hamburg. Die öffentlichen Anbindungen lassen gerade durch die vorhandene U-Bahn-Anbindung auch ohne eigenes Auto keine Flexibilität missen. Selbst die Autobahn A7 ist in wenigen Minuten zu erreichen. Im näheren Umkreis befinden sich sämtliche Schulformen, mehrere Kindergärten und –tagesstätten, verschiedene Ärzte sowie diverse Restaurants und Supermärkte.
Weitere Informationen
In dem genannten Preis ist die geplante Doppelhaushälfte mit allen vorstehend aufgeführten Extras sowie der Grundstücksanteil von ca. 315 m² enthalten. Nicht enthalten sind: Die Ankaufkosten wie Grunderwerbsteuer (6,5 %) und die Notar - und Gerichtskosten (ca. 2-3 %) sowie die Baunebenkosten. Weiterhin sind nicht enthalten: Die Maler- und Oberbelagsarbeiten, die Küche und die Gartenanlage.
Bei den gezeigten Abbildungen handelt es sich um beispielhafte Darstellungen. Die verwendeten Bilder sind teilweise mit KI generiert.
Hinweis: Das Angebot ist freibleibend. Zwischenverkauf oder Vermietung bleibt vorbehalten. Alle Angaben sind ohne Gewähr und basieren ausschließlich auf Informationen, die uns von unserem Auftraggeber übermittelt wurden. Für Vollständigkeit, Richtigkeit und Aktualität dieser Daten kann von uns keine Haftung übernommen werden. Eine Weitergabe des Exposés an Dritte nur mit Einverständnis des Anbieters.