Version: 8.25.2Navigation überspringen
439.000 €
4 Zimmer  •  174,5 m²
Immowelt logo

Loft zum Kauf
439000 €
2.516 €/m²
4 Zimmer  •  174,5 m²

Das ATELIER Hallein | "Haus-im-Haus" in historischen Gebäude

DAS EINZELSTÜCK, das es kein 2. Mal gibt! Wohnen und Arbeiten unter einem Dach - Maisonette mit Ateliercharakter 

Inmitten der charmanten Altstadt von Hallein verbirgt sich dieses Unikat:
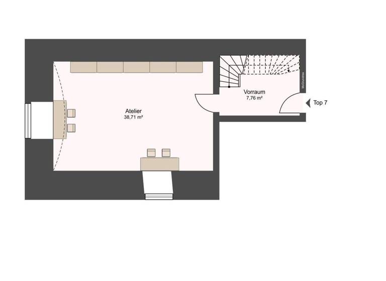
Diese außergewöhnliche Immobilie erstreckt sich über drei Ebenen eines liebevoll sanierten Stadthauses aus dem 15. Jahrhundert - einst Sitz des traditionsreichen Rottmayrbräus. Mit rund 175?m² Nutzfläche bietet die Immobilie ein inspirierendes Zusammenspiel aus Geschichte und Moderne - und ist wie gemacht für Menschen, die Wohnen und Arbeiten verbinden möchten. Der Eingangsbereich im 2. Obergeschoss beeindruckt mit einem großzügigen, lichtdurchfluteten Atelierraum mit historischem Gewölbe und direktem Zugang zum Allgemeingarten. Ob Künstleratelier, Designstudio, Therapieraum oder stilvolles Büro - dieser Bereich schafft Raum für Ideen!

Über eine mit Cotto-Fliesen belegte Treppe gelangen Sie in den Halbstock mit Gäste-WC und Dusche und Abstellfläche. Im 3. Obergeschoss eröffnet sich ein offener, heller Wohnbereich, der das Herzstück der Wohnung bildet, mit Platz für eine große offene Küche. Das Galeriegeschoss unter dem Dach beherbergt den privaten Schlafbereich - ruhig gelegen, mit Blick auf die darunterliegenden Ebenen. Massive Mauern, stilvolle Gewölbe und ein durchdachter Grundriss machen dieses Objekt zu einem Ort des kreativen Schaffens und stilvollen Lebens - mitten im historischen Zentrum und dennoch mit modernem Wohnkomfort.

-------------------------

Highlights auf einen Blick

* Ca.?175?m² Wohnfläche über 3 Ebenen
* Historisches Stadthaus (15. Jh.) - ehemaliges Rottmayrbräu
* Atelier mit Gewölbe 
* Wohnen & Arbeiten ideal kombinierbar
* Offener Wohnbereich mit Platz für große Küche
* Galerie-Schlafbereich im Dachgeschoss
* Stilvolles Zusammenspiel aus Alt & Neu

-------------------------

Sie suchen viel Wohnfläche zu kleinem Preis? Dann sind Sie hier goldrichtig! 

Dann sind Sie hier genau richtig - sehr gerne lassen wir Sie das Haus-im-Haus persönlich erleben!

Ihr Team Schnitzhofer 

-------------------------

_Rechtlicher Hinweis 
Alle Daten wurden mit Sorgfalt erhoben, die angegebenen Maße sind gerundet. Für die Richtigkeit und Vollständigkeit ist der Auftraggeber verantwortlich. Die Pläne können von der tatsächlichen Ausführung abweichen. Für die Erstellung der Einrichtungsvorschläge wurde KI verwendet. Zwischenverkauf, Irrtum und Fehler vorbehalten._

Noch nicht das Passende gefunden?
Kein Grund zur Sorge - Willkommen beim Schnitzhofer. Selection. 

Mit unserem diskreten Suchservice erhalten Sie Zugang zu ausgewählten Off-Market-Immobilien und werden über neue, passende Objekte exklusiv vor allen anderen informiert.

? Legen Sie jetzt Ihren Suchwunsch an - wir halten die Augen für Sie offen!
Suchagent anlegen [https://schnitzhofer-immobilien.service.immo/registrieren/de] - https://schnitzhofer-immobilien.service.immo/registrieren/de

Der Vermittler ist als Doppelmakler tätig.

Infrastruktur / Entfernungen

Gesundheit
Arzt <500m
Apotheke <500m
Klinik <3.000m
Krankenhaus <2.000m

Kinder & Schulen
Schule <500m
Kindergarten <500m
Höhere Schule <4.500m
Universität <4.500m

Nahversorgung
Supermarkt <500m
Bäckerei <500m

Sonstige
Bank <500m
Geldautomat <500m
Post <500m
Polizei <500m

Verkehr
Bus <500m
Bahnhof <1.000m
Autobahnanschluss <2.000m

Angaben Entfernung Luftlinie / Quelle: OpenStreetMap

Merkmale

  • Bezug: sofort
  • Personenaufzug
  • Badezimmer: Badewanne, Bad mit Dusche
  • Gäste-WC
  • Bodenbelag: Fliesen, Holzdielen, Stein
  • Balkon
  • Garten

Grundrisse

Grundrisse
1 / 3

Bausubstanz und Energie

Heizwärmebedarf (HWB)

B

Gesamtenergieeffizienz (fGEE)

B
  • Zustand der ImmobilieAltbau (bis 1945), Gepflegt
  • HeizungsartZentralheizung
  • EnergieträgerGas
Immowelt logo

Preisdetails

Kaufpreis
439000 €
2.516,05 €/m²
Provision für Käufer
3% des Kaufpreises zzgl. 20% USt.

Lage

address-icon
Hallein (5400)
Die Bezirkshauptstadt Hallein mit ca. 21.000 Einwohnern vereint urbanes Leben mit alpiner Lebensqualität und zählt zu den gefragtesten Wohnlagen im Salzburger Umland. Die charmante Altstadt mit ihren historischen Gassen und Gebäuden, individuellen Geschäften und gemütlichen Cafés bietet eine hohe Lebensqualität und alles für den täglichen Bedarf in fußläufiger Nähe. Ihre neue Adresse garantiert kurze Wege für alle Lebensbereiche: Einkaufsmöglichkeiten, Ärzte, Banken, Schulen, Kinderbetreuung, perfekte Zug- und Busverbindungen, Kulturveranstaltungen, Sport oder Erholung in der Natur.
Hallein bietet qualifizierte Arbeitsplätze und verschiedenste Ausbildungsmöglichkeiten in Fachhochschulen, HTL, Gymnasien und Grundschulen. Auch verkehrstechnisch ist Hallein hervorragend angebunden: Die Stadt Salzburg erreichen Sie in rund 20 Minuten mit dem Auto oder bequem mit Bus oder S-Bahn.

Weitere Informationen

Stichworte Ost-Balkon/Terrasse, Anzahl der Badezimmer: 2, Anzahl der separaten WCs: 2, Anzahl Balkone: 1, Balkon-Terrassen-Fläche: 7,22 m², Kellerfläche: 10,48 m², Bundesland: Salzburg, 3 Etagen

Weitere Services

Lust auf eine Besichtigung?
Eine Frage zur Immobilie?
Nachricht hinzufügen
Mit der Nutzung der oben angegebenen Telefonnummer oder durch Klicken auf „Kontaktieren“ akzeptierst Du die Allgemeinen Nutzungsbedingungen, denen Du jederzeit widersprechen kannst. Weitere Informationen zum Datenschutz

Über den Anbieter

Fürstenallee 3, 5020 SALZBURG
partner badge
Partnerschaft
Herr David Schnitzhofer
Herr David SchnitzhoferDein Kontakt
Online-ID: 25DXJ5I934DF
Referenznummer: OBGC20260306164452171838cb8dedc
Wie zufrieden bist du mit dieser Seite (nicht mit der Immobilie selbst)?