Version: 8.24.0Navigation überspringen
10 €
5 Zimmer  •  130 m² Bürofläche
Immowelt logo

Büro zur Miete • provisionsfrei
10 €
/m²
5 Zimmer  •  130 m² Bürofläche

Attraktive Büroeinheit in Wolfen-Nord zu vermieten !

Zur Vermietung steht eine attraktive Gewerbeeinheit in der Fritz-Weineck-Straße 14 a in Wolfen-Nord, welche ab sofort bezogen werden kann. Die Büroeinheit befindet sich im 2. Obergeschoss eines Wohnkomplexes. Bereits im Erdgeschoss sowie im 1. Obergeschoss sind Büroflächen vorhanden, die vom Vermieter selbst genutzt werden.
Mit einer Gesamtfläche von ca. 130 m² bietet die angebotene Gewerbeeinheit ausreichend Platz für Ihre geschäftlichen Aktivitäten. Die Räumlichkeiten sind hell und freundlich und überzeugen durch eine optimale Aufteilung Sie eignen sich dadurch für verschiedene Nutzungskonzepte.

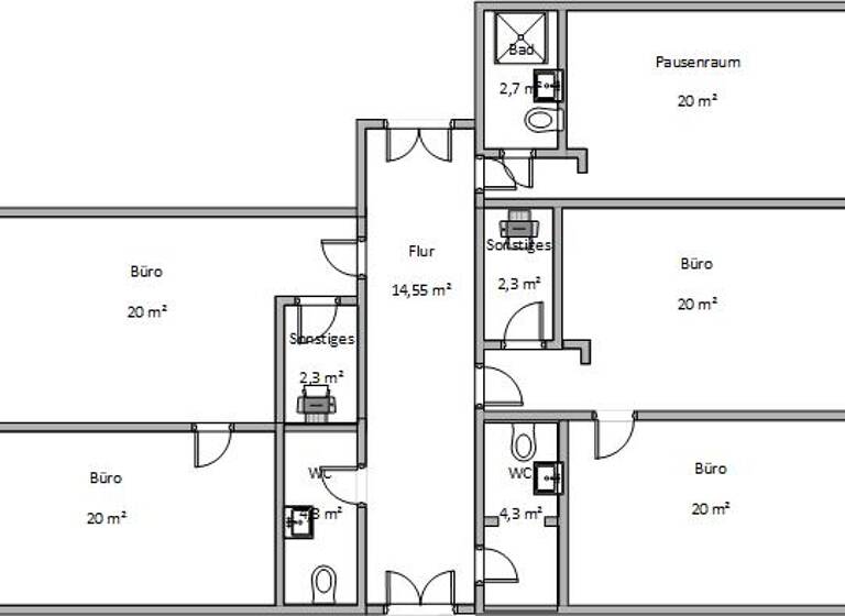
Das Büro ist sowohl über eine Treppe als auch bequem mit einem Fahrstuhl erreichbar. Vier großzügige Büroräume mit einer Fläche von jeweils ca. 22 m² bieten ausreichend Platz für Team- oder Einzelbüros.
Zwei separate Toiletten sowie ein kleines Bad mit Dusche und WC sorgen für einen hohen Komfort.
Ein Aufenthaltsraum mit eingebauter Küche steht für die Pausen zur Verfügung.
Zwei kleine Abstellräume bieten Platz für Drucker, Archiv oder Lagerbedarf.

Für angenehme Temperaturen auf der gesamten Etage sorgt eine Klimaanlage.

Eine bereits installierte moderne Photovoltaikanlage ermöglicht eine umweltfreundliche und kosteneffiziente Stromversorgung. Diese nachhaltige Stromgewinnung trägt dazu bei, die Betriebskosten zu senken.


Die Immobilie liegt in einer ruhigen, gut angebundenen Gegend von Wolfen-Nord. Dank der verkehrsgünstigen Lage sind sowohl die Innenstadt als auch umliegende Geschäftsbereiche schnell erreichbar.

Parkmöglichkeiten können nach Abstimmung zur Verfügung gestellt werden.

Fazit:

Diese Gewerbeeinheit eignet sich ideal für kleine Unternehmen aus verschiedenen Branchen, die eine repräsentative und funktionale Arbeitsumgebung suchen.

Bei Anmietung der Räumlichkeiten fallen Genossenschaftsanteile in Höhe von 1.232,00 € an.

Für weitere Informationen oder eine Besichtigung stehen wir Ihnen gern zur Verfügung!

Merkmale

  • Bezug: ab sofort
  • 2. Geschoss
  • Kochnische
  • Lastenaufzug
  • DSL-Anschluss
  • Bodenbelag: Fliesen, Linoleum
  • Alarmanlage

Grundrisse

Grundrisse
1 / 1

Realisiere Dein Projekt

Bausubstanz und Energie

Energieausweis

Endenergieverbrauch (Wärme)

  • Baujahr1975
  • HeizungsartZentralheizung
  • EnergieträgerFernwärme, Solar
Immowelt logo

Mietkosten

Warmmiete
1.797 €
Nettomiete
10 €/m²
1.300 €
Nebenkosten
302 €
Heizkosten
195 €
Provision für Mieter
provisionsfrei
Kaution
1232 €

Lage

address-icon
Fritz-Weineck-Str. 14 aWolfenBitterfeld-Wolfen (06766)
Lagebeschreibung Die Fritz-Weineck-Straße befindet sich in einem Wohnviertel von Wolfen-Nord. Die Lage zeichnet sich besonders für seine kurzen Wege aus. So sind alle Dinge des täglichen Bedarfs, wie z.Bsp. Einkaufsmöglichkeiten, Ärzte, Apotheken, Bankfiliale, fußläufig gut zu erreichen sowie die Haltestellen des öffentlichen Nahverkehrs. Auch Schulen und Kindergärten befindet sich in der Nähe.
Ebenso schnell unternommen sind Ausflüge in die Fuhneaue, welche mit viel Natur für Spaziergänge einlädt. Für Wasserbegeisterte lohnt sich der Besuch des Freizeitbades „Woliday“ mit seinem Bade- und Saunavergnügen.
Lage Wolfen-Nord

Weitere Informationen

Sonstiges Wenn wir Ihr Interesse geweckt haben, dann freuen wir uns auf Ihre Anfrage !

Für Rückfragen und Informationen steht Ihnen Frau Meinicke unter der Tel.-Nr.: 03494/ 3673-29 oder E-Mail: meinicke@wgwolfen.de gern zur Verfügung.
Stichworte Zustand: renoviert, saniert, gepflegt

Weitere Services

Lust auf eine Besichtigung?
Eine Frage zur Immobilie?
Nachricht hinzufügen
Mit der Nutzung der oben angegebenen Telefonnummer oder durch Klicken auf „Kontaktieren“ akzeptierst Du die Allgemeinen Nutzungsbedingungen, denen Du jederzeit widersprechen kannst. Weitere Informationen zum Datenschutz

Über den Anbieter

Fritz-Weineck-Str. 14a, 06766 Bitterfeld-Wolfen
partner badge
6 Jahre Partnerschaft
Frau Andrea MeinickeDein Kontakt

Weitere Unterlagen

Online-ID: 2js5j57
Referenznummer: 4307/ 914/110/ 18
Wohnungsgenossenschaft Wolfen eG
Wohnungsgenossenschaft Wolfen eG
Bewertung: 3 von 5 Sternen
Nachricht hinzufügen
Mit der Nutzung der oben angegebenen Telefonnummer oder durch Klicken auf „Kontaktieren“ akzeptierst Du die Allgemeinen Nutzungsbedingungen, denen Du jederzeit widersprechen kannst. Weitere Informationen zum Datenschutz
Wie zufrieden bist du mit dieser Seite (nicht mit der Immobilie selbst)?