Haus zum Kauf729000 €1.657 €/m²15 Zimmer • 439,9 m² • 1.087 m² Grundstück
729000 €
1.657 €/m²
15 Zimmer • 439,9 m² • 1.087 m² Grundstück
Wohn- und Geschäftshaus in gefragter Lage mit langfristig guter Rendite
Merkmale
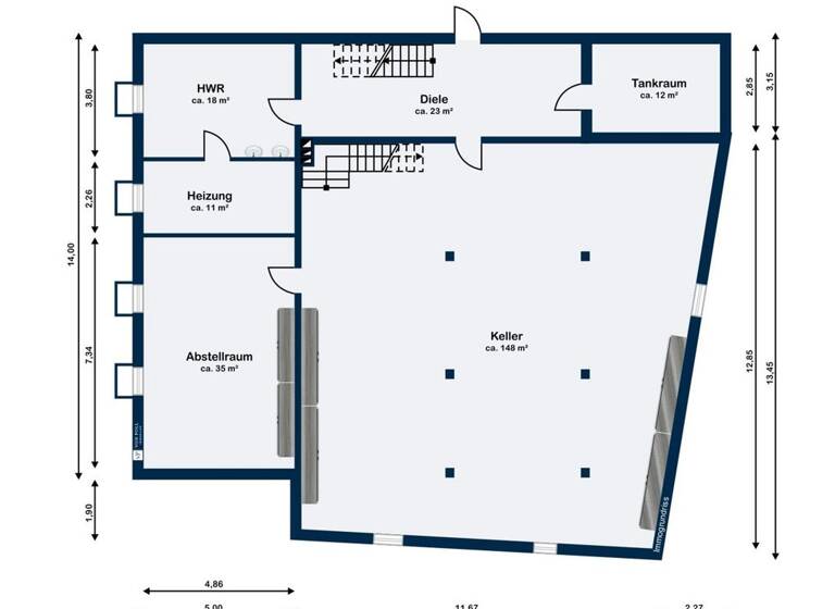
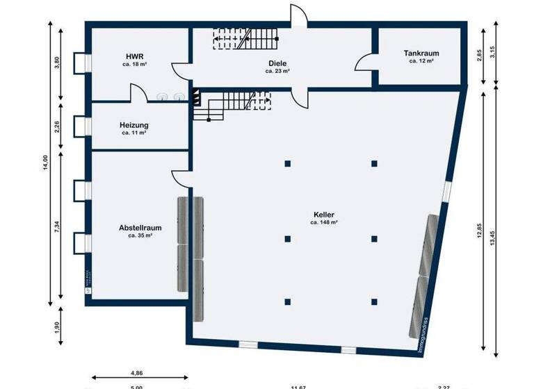
- 1.087 m² Grundstück
- Einbauküche
- Keller
- Bodenbelag: Fliesen, Laminat, Teppich
- Terrasse
- 12 Stellplätze: 4 Garagen, 8 Außen-Stellplätze
Grundrisse
Grundrisse
1 / 4
Bausubstanz und Energie
Energieausweis
C
- Baujahr1965
- Zustand der ImmobilieMassivhaus, Gepflegt
- HeizungsartZentralheizung
- EnergieträgerÖl
Preisdetails
Kaufpreis
729000 €
1.657,04 €/m²
Provision für Käufer
Käuferprovision beträgt 3,57 % (inkl. MwSt.) des beurkundeten Kaufpreises
Weitere Preisinformationen
8 Stellplätze
4 Garagenstellplätze
4 Garagenstellplätze
Geschätzte Gesamtkosten
795.120 €1
Kaufpreis
729.000 €
Kaufnebenkosten
66.120 €
2Notarkosten (1,5%)
10.935 €
Grunderwerbsteuer (3,5%)
25.515 €
Provision für Käufer (3,57%)
26.025 €
Grundbucheintrag (0,5%)
3.645 €
1Der angezeigte Wert ist eine automatisch berechnete Schätzung von immowelt.
2Bei den Angaben handelt es sich um ortsübliche Werte. Individuelle Kosten können abweichen.
Lage

Burgoberbach (91595)
Der Anbieter hat die genaue Adresse nicht freigegeben
Weitere Informationen
Weitere Services
Lust auf eine Besichtigung?
Eine Frage zur Immobilie?
Über den Anbieter
Neustadt 31, 91522 Ansbach
Partnerschaft
Firma VON POLL IMMOBILIEN Shop AnsbachDein Kontakt
Online-ID: 25RU259FU6RW
Referenznummer: 25208689
Wie zufrieden bist du mit dieser Seite (nicht mit der Immobilie selbst)?
