Version: 8.23.0Navigation ĂĽberspringen
2.150 €
Immowelt logo

Bürofläche zur Miete
2.150 €

Großzügige Gewerbefläche mit Büros und Ausstellungs-/Lagerräumen in Neheim-Hüsten

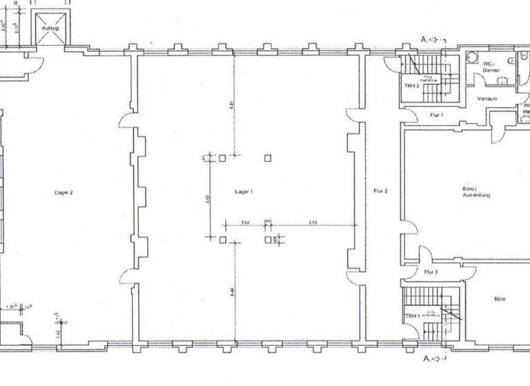
Die angebotene Fläche befindet sich im zweiten Obergeschoss eines Gebäudes in Neheim-Hüsten und umfasst insgesamt ca. 650 m².

Der Zugang erfolgt über ein Treppenhaus, zusätzlich steht ein Lastenaufzug für den Transport von Waren und Einrichtungen zur Verfügung.

In der Mitte der Etage liegt ein großer Lager- bzw. Ausstellungsraum mit einer Fläche von rund 280 m². Ergänzt wird die Fläche durch mehrere Büroräume, von denen ein Teil bereits fertiggestellt ist.

Weitere Büroräume sind vorhanden, diese sind noch nicht vollständig ausgebaut, Wände und Decken sind jedoch bereits fertiggestellt.

Zur Ausstattung gehören außerdem getrennte WC-Anlagen für Damen und Herren.

Die Beheizung des Objektes erfolgt über eine moderne Gaszentralheizung. Vor dem Gebäude stehen ausreichend Parkplätze für Mitarbeiter und Besucher zur Verfügung.

Merkmale

  • Bezug: nach Absprache
  • 2. Geschoss
  • Keller
- Gesamte Fläche: ca. 650 m² im 2. Obergeschoss
- Zugang ĂĽber Treppenhaus und Lastenaufzug
- Zentraler Lager-/Ausstellungsraum mit ca. 280 m²
- Mehrere Büroräume, teilweise fertiggestellt
- Weitere Büroräume im Ausbauzustand (Wände und Decken fertig)
- Getrennte WC-Anlagen fĂĽr Damen und Herren
- Beheizung ĂĽber moderne Gaszentralheizung
- Zahlreiche Parkplätze direkt am Gebäude

Realisiere Dein Projekt

Bausubstanz und Energie

Der Anbieter hat keine Informationen zum Energieverbrauch bereit gestellt.
  • Baujahr2010
  • Zustand der ImmobilieGepflegt
Immowelt logo

Mietkosten

Nettomiete
2.150 €
Nebenkosten
325 €
Provision fĂĽr Mieter
1,19 Monatsmieten inkl. 19% MwSt. bis 5 Jahre
2,38 Monatsmieten inkl. 19% MwSt. ab 5 Jahre
Kaution
2 Nettomonatsmiete
Weitere Preisinformationen
Nettokaltmiete: 2.150,00 EUR

Lage

address-icon
Neheim-Hüsten, Arnsberg / Hüsten (59759)
Der Anbieter hat die genaue Adresse nicht freigegeben
Die Immobilie befindet sich in einer guten Lage von Neheim- HĂĽsten.

Hüsten bietet eine gute Anbindung an den öffentlichen Verkehr durch den Bahnhof und vieler Bushaltestellen. Schulen, Kindergärten, Spielplätze sind ebenso in unmittelbarer Nähe.

Durch eine attraktive Fußgängerzone, im naheliegenden Neheim, mit dem "Sauerländer Dom" (die neugotische Pfarrkirche St. Johannes Baptist) ist die Stadt sehr lebhaft.
Eine besondere Einkaufsatmosphäre entsteht auf dem Marktplatz, wenn mittwochs und samstags an über 50 Wochenmarktständen frische Produkte aus der Region, Textilien und allerlei Kurzwaren zum Verkauf geboten werden
Für Wanderer und Radfahrer sind die Seen Sorpe-, Möhne-, und Hennesee schöne Ausflugsziele, die sich in unmittelbarer Nähe befinden oder der Ruhrtalradweg.
Gute Gastronomie, viele Biergärten und ein gutes Sport- und Freizeitangebot bietet die Stadt Arnsberg.
Die Autobahnanbindung ist innerhalb weniger Minuten erreichbar.

Weitere Informationen

Sonstiges Alle Informationen sind vom EigentĂĽmer zur VerfĂĽgung gestellt.

Haben wir Ihr Interesse geweckt? Wir freuen uns ĂĽber Ihre SCHRIFTLICHE Anfrage.
Bitte beachten Sie, dass wir bei Neukunden nur Kontaktanfragen mit vollständigen Angaben von Namen, Anschrift und Telefonnummer bearbeiten.
Wir melden uns garantiert kurzfristig zurück und vereinbaren einen persönlichen Besichtigungstermin.

Gleichzeitig möchten wir höflich darum bitten, von telefonischen Anfragen abzusehen.

Die genaue Adresse zu diesem Objekt erhalten Sie auf Anfrage.

Besuchen Sie unsere Homepage, wir haben laufend neue Immobilien fĂĽr Sie im Angebot.

www.fischer-immobilien.nrw Stichworte Gesamtfläche: 650,00 m²

Weitere Services

Lust auf eine Besichtigung?
Eine Frage zur Immobilie?
Nachricht hinzufĂĽgen
Mit der Nutzung der oben angegebenen Telefonnummer oder durch Klicken auf „Kontaktieren“ akzeptierst Du die Allgemeinen Nutzungsbedingungen, denen Du jederzeit widersprechen kannst. Weitere Informationen zum Datenschutz

Ăśber den Anbieter

ApothekerstraĂźe 59, 59755 Arnsberg
partner badge
10 Jahre Partnerschaft
Herr Klaus Fischer
Herr Klaus FischerDein Kontakt
Online-ID: 2l6885t
Referenznummer: 639
Philipp Fischer Immobilien GmbH
title
Philipp Fischer Immobilien GmbH
Bewertung: 4,2 von 5 Sternen
Nachricht hinzufĂĽgen
Mit der Nutzung der oben angegebenen Telefonnummer oder durch Klicken auf „Kontaktieren“ akzeptierst Du die Allgemeinen Nutzungsbedingungen, denen Du jederzeit widersprechen kannst. Weitere Informationen zum Datenschutz
Wie zufrieden bist du mit dieser Seite (nicht mit der Immobilie selbst)?