Version: 8.25.1Navigation überspringen
680.000 €
9 Zimmer  •  320 m²
Immowelt logo

Maisonette zum Kauf
680000 €
2.125 €/m²
9 Zimmer  •  320 m²

Projektentwicklung: Umbau einer Gewerbeimmobilie in 3 Maisonette-Wohnungen in absoluter City-Lage

Energieangaben:
E-Verbrauchsausweis gültig bis 26.5.2035, E-Verbrauch 47,2 kWh, Erdgas H, E-Verbrauch Strom 20,2 kWh, E-Klasse: A, Erdgas, Strom,
Bj. Gebäude: 1650/2012, Gas-ZH Brenner v. 2013
---------------------------------------------------------------------------------------------------------

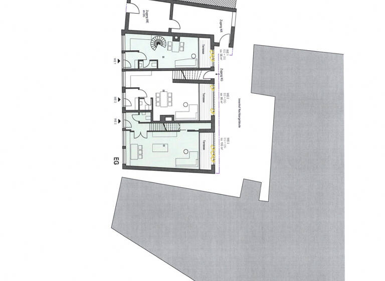
Im Zentrum der Innenstadt befindet sich in einer ruhigen 1b Lage eine Gewerbeimmobilie für deren Umbau in 3 Maisonette Wohnungen bereits Architektenpläne erstellt wurden (siehe Anhang).

Die Umnutzung wurde positiv mit der Stadt Memmingen besprochen, das Genehmigungsverfahren aber noch nicht beantragt.

Das Grundstück ist lastenfrei. Es besteht kein Denkmalschutz.

Das aufstehende Gebäude hat einen rautenförmigen Grundriss mit einer Frontlänge von ca. 20 m und einer mittleren Tiefe von ca. 11.5 m. Das Gebäude (Erdgeschoß & 1. Obergeschoß) ist ein Ziegelbau dessen Innenaufteilung in Leichtbauweise erfolgte.

Bei Fragen zur Bestandsimmobilie oder den Plänen des möglichen Umbaus rufen Sie mich jederzeit im Büro an: 08331 - 4987059.

Merkmale

  • Keller
  • Terrasse
Energieangaben:
E-Verbrauchsausweis gültig bis 26.5.2035, E-Verbrauch 47,2 kWh, Erdgas H, E-Verbrauch Strom 20,2 kWh, E-Klasse: A, Erdgas, Strom,
Bj. Gebäude: 1650/2012, Gas-ZH Brenner v. 2013
-----------------------------------------------------------------------------------------------------------

Gewerbeimmobilie mit projektiertem Umbau in 3 Maisonette-Wohnungen mit jeweils einer Süd-Terrasse.

Circa 320 Quadratmeter Fläche über Erdgeschoß & 1. Obergeschoß

Ziegelbau, teilweise unterkellert

Grundrisse

Grundrisse
1 / 3

Realisiere Dein Projekt

Bausubstanz und Energie

Energieausweis

A
  • Baujahr1650
  • Zustand der ImmobilieProjektiert
  • HeizungsartZentralheizung
  • EnergieträgerGas
Immowelt logo

Preisdetails

Kaufpreis
680000 €
2.125 €/m²
Provision für Käufer
3,57 %
Geschätzte Gesamtkosten
741.676 €1
Kaufpreis
680.000 €
Notarkosten (1,5%)
10.200 €
Grunderwerbsteuer (3,5%)
23.800 €
Provision für Käufer (3,57%)
24.276 €
Grundbucheintrag (0,5%)
3.400 €
1Der angezeigte Wert ist eine automatisch berechnete Schätzung von immowelt.
2Bei den Angaben handelt es sich um ortsübliche Werte. Individuelle Kosten können abweichen.

Lage

address-icon
Memmingen (87700)
Der Anbieter hat die genaue Adresse nicht freigegeben
Memmingen, die ehemalige freie Reichsstadt am Tor des Allgäus, auch bekannt als Stadt der Giebel und Fassaden, Tore und Türme konnte durch die Jahrhunderte ihr schönes, mittelalterliches Stadtbild erhalten.

Die reizende Altstadt bietet neben vielen Freizeitmöglichkeiten auch zahlreiche Kulturangebote, Sehenswürdigkeiten und das Landestheater Schwaben.

Der alljährliche Fischertag mit dem Kinderfest, dem Stadtfest, Memmingen blüht, Memminger Meile, Jahrmarkt, Christkindlesmarkt und alle vier Jahre das mittelalterliche Spektakel "Wallenstein" sind fester Bestandteil Aktivitäten der Stadt.

Die einladende Fußgängerzone mit dem Marktplatz als Mittelpunkt rundet das Stadtbild ab.
Memmingen mit seinen ca. 45.000 Einwohnern und einem Einzugsbereich von über 250.000 Einwohnern liegt am Schnittpunkt der Autobahnen A96 und A7. In 45 Minuten erreichen Sie Lindau am Bodensee, wenige Minuten später passieren Sie die Grenzen nach Österreich und der Schweiz. Die Ski- und Bergwandergebiete von Füssen u/o Oberstdorf erreichen Sie ebenfalls in ca. 45 Minuten.

Seit 2007 ist Memmingen auch über den Regionalflughafen Allgäu-Airport erreichbar. Dieser bietet neben Ferienfliegern auch Privat- und Geschäftsfliegern eine optimale Anbindung an den nationalen und internationalen Luftverkehr. Durch diese Rahmenbedingungen hat sich der Wirtschaftsbereich zu einem der größten Industriestandorte Schwabens entwickelt.

Weitere Informationen

Sonstiges Ansprechpartner:

Martina M. Heizmann
Immobilien Konzepte Martina Heizmann
Immobilienfachwirtin

Ulmer Strasse 30
87700 Memmingen

Tel. 08331 - 4987059
Email. info@immo-heizmann.de

Erlaubnis nach § 34c Gewerbeordnung erteilt durch die Stadt Mindelheim.

Alle Angaben sind ohne Gewähr und basieren ausschließlich auf Informationen, die uns vom Auftraggeber zur Verfügung gestellt wurden. Wir übernehmen keine Gewähr für die Vollständigkeit, Richtigkeit und Aktualität der Angaben.

Mit der Anfrage auf dieses Objekt erklärt der Interessent seine ausdrückliche Einwilligung für die Kontaktaufnahme per Telefon oder Email auch durch einen Mitarbeiter.

Dieses Exposé ist nur für Sie persönlich bestimmt. Eine Weitergabe an Dritte ist an unsere ausdrückliche Zustimmung gebunden. Stichworte Anzahl der Badezimmer: 3, Anzahl Terrassen: 3, Balkon-Terrassen-Fläche: 3,00 m²

Weitere Services

Lust auf eine Besichtigung?
Eine Frage zur Immobilie?
Nachricht hinzufügen
Mit der Nutzung der oben angegebenen Telefonnummer oder durch Klicken auf „Kontaktieren“ akzeptierst Du die Allgemeinen Nutzungsbedingungen, denen Du jederzeit widersprechen kannst. Weitere Informationen zum Datenschutz

Über den Anbieter

Ulmer Straße 30, 87700 Memmingen
partner badge
Partnerschaft
Frau Martina HeizmannDein Kontakt
Online-ID: 25JUM5B8N1S7
Referenznummer: 2025-145
Immobilien Konzepte Martina Heizmann
Bewertung: 4,6 von 5 Sternen
Nachricht hinzufügen
Mit der Nutzung der oben angegebenen Telefonnummer oder durch Klicken auf „Kontaktieren“ akzeptierst Du die Allgemeinen Nutzungsbedingungen, denen Du jederzeit widersprechen kannst. Weitere Informationen zum Datenschutz
Wie zufrieden bist du mit dieser Seite (nicht mit der Immobilie selbst)?