Version: 8.25.1Navigation überspringen
390.000 €
4 Zimmer  •  110,2 m²  •  2. Geschoss
Immowelt logo

Wohnung zum Kauf - Erstbezug
390000 €
3.540 €/m²
4 Zimmer  •  110,2 m²  •  2. Geschoss

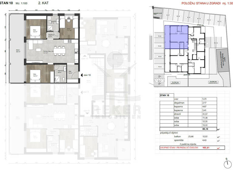
4-Zimmer-Wohnung im 2. OG mit 2 Bädern und 25 m² großem Balkon

Kurzbeschreibung wohnung-tar-erstbezug-aufzug Objekt Vier Zimmer, wie gemacht fürs Leben - plus ein Balkon, auf dem man den ganzen Sommer verbringen kann. Und das En suite Bad? Einfach entspannter Alltag.

Merkmale

  • 2. Geschoss
  • Personenaufzug
  • Balkon
  • 2 Stellplätze: 2 Außen-Stellplätze
  • voll klimatisiert
https://www.reker-immobilien.de/kroatien/wohnung-tar-erstbezug-aufzug_8716?utm_source=ausstattung&utm_medium=txt&utm_campaign=8716
~

Grundrisse

Grundrisse
1 / 1

Realisiere Dein Projekt

Bausubstanz und Energie

Möchtest du Details zum Energieverbrauch?info_energy_calculation-icon
  • Baujahr2026
  • Zustand der ImmobilieErstbezug
  • HeizungsartFußbodenheizung
Immowelt logo

Preisdetails

Kaufpreis
390000 €
3.539,66 €/m²
Provision für Käufer
3,75 % inkl. MwSt. in Kroatien
Weitere Preisinformationen
2 Stellplätze

Lage

address-icon
Tar (52440)
Der Anbieter hat die genaue Adresse nicht freigegeben
Grün. Ruhig. Und nur 1400 Meter vom Meer entfernt. Diese Lage bringt Gelassenheit - mit Platz zum Durchatmen. Die Straße ist entspannt, die Umgebung gepflegt. Parkplätze direkt neben dem Haus machen's einfach.

13 Wohnungen. Jede mit durchdachtem Grundriss, verteilt auf vier Etagen. Im Erdgeschoss trifft Wohnraum auf Garten. Im ersten und zweiten Stock gibt's Balkonzeit. Und oben? Ein Pool für sonnige Stunden mit Aussicht. Ein Aufzug bringt Sie bequem in jede Etage. Geplant ist die Fertigstellung für Juni 2026 - alles nagelneu. Die Architektur? Modern. Die Technik? Mit Wärmepumpe auf der Höhe der Zeit.

Weitere Informationen

Stichworte Stellplatz vorhanden, West-Balkon/Terrasse, Anzahl der Schlafzimmer: 3, Anzahl der Badezimmer: 2, Anzahl Balkone: 1, Distanz zur nächsten Einkaufsmöglichkeit: 2.00, Distanz zum Flughafen: 65.00

Weitere Services

Lust auf eine Besichtigung?
Eine Frage zur Immobilie?
Nachricht hinzufügen
Mit der Nutzung der oben angegebenen Telefonnummer oder durch Klicken auf „Kontaktieren“ akzeptierst Du die Allgemeinen Nutzungsbedingungen, denen Du jederzeit widersprechen kannst. Weitere Informationen zum Datenschutz

Über den Anbieter

Micin Stanka 28 A, 22211 Vodice
partner badge
Partnerschaft
Herr Heiner Reker
Herr Heiner RekerDein Kontakt
Online-ID: 25Q7F7FEVZL3
Referenznummer: 8716
Reker Immobilien Doo
title
Reker Immobilien Doo
Bewertung: 4,8 von 5 Sternen
Nachricht hinzufügen
Mit der Nutzung der oben angegebenen Telefonnummer oder durch Klicken auf „Kontaktieren“ akzeptierst Du die Allgemeinen Nutzungsbedingungen, denen Du jederzeit widersprechen kannst. Weitere Informationen zum Datenschutz
Wie zufrieden bist du mit dieser Seite (nicht mit der Immobilie selbst)?