Version: 8.26.0Navigation überspringen
6,80 €
397 m² Verkaufsfläche
Immowelt logo

Laden zur Miete • provisionsfrei
6,80 €
/m²
397 m² Verkaufsfläche

VIELSEITIG: Attraktive Gewerbefläche Karlsruhe Neureut zur Nutzung als Büro, Ladenfläche oder Praxis

Die angebotene Gewerbefläche befindet sich im Erdgeschoss eines im Jahr 1973 erbauten und laufend gepflegten Wohn- und Geschäftshauses in verkehrsgünstiger Lage von Karlsruhe-Neureut. Das Gebäude überzeugt durch seine solide Bauweise, eine gute Erreichbarkeit sowie ein gemischt genutztes Umfeld aus Wohn- und Gewerbenutzung. Die Fläche ist ebenerdig zugänglich und barrierefrei gestaltet, wodurch sie sich ideal für Kunden- und Publikumsverkehr eignet.

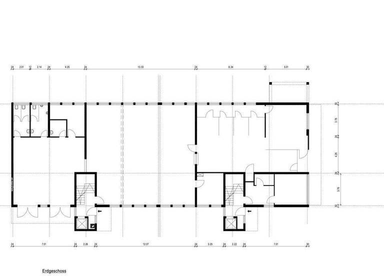
Die zur Vermietung stehende Einheit umfasst rund 270m² Gewerbefläche sowie zusätzlich etwa 100m² Lager- und Nebenflächen einschließlich Sanitäranlagen. Die großzügige Fläche ist derzeit frei und kann somit kurzfristig übernommen und nach den individuellen Anforderungen des zukünftigen Mieters gestaltet werden. Die flexible Raumstruktur bietet vielfältige Nutzungsmöglichkeiten, beispielsweise für Büro- oder Praxisräume, ein Ladenlokal, einen Showroom oder kombinierte Nutzungskonzepte.

Die Fläche befindet sich innerhalb eines Wohn- und Geschäftshauses, in dem sich unter anderem eine kleinere Gewerbeeinheit mit etwa 27 m² befindet, die langfristig an ein Reisebüro vermietet ist. Das Umfeld ist geprägt von einer gewachsenen Wohnstruktur sowie verschiedenen kleineren Gewerbeeinheiten und bietet dadurch eine angenehme Mischung aus Arbeiten und Wohnen.

Zwei zugehörige Kellerräume können bei Bedarf zusätzlichen Stauraum bieten. Beheizt wird das Objekt über Fernwärme. Doppelverglaste Holzfenster sorgen für angenehme Lichtverhältnisse und ein ausgewogenes Raumklima innerhalb der Gewerbefläche.

Die monatliche Kaltmiete für die angebotene Fläche beträgt 2.700€. Hinzu kommt eine Nebenkostenvorauszahlung in Höhe von 900 € pro Monat. Somit ergibt sich eine monatliche Gesamtmiete von 3.600€ zuzüglich der gesetzlichen Mehrwertsteuer.

Die Fläche eignet sich ideal für Unternehmen, Dienstleister oder Selbstständige, die eine großzügige und gut erreichbare Gewerbeeinheit in Karlsruhe-Neureut suchen und ihre Räume nach eigenen Vorstellungen gestalten möchten.

Interesse geweckt?
Wir freuen uns auf Ihre Anfrage.

Merkmale

  • Bezug: sofort
  • vermietet
  • Keller
- Baujahr 1973
- Gesamtfläche ca. 397m²
- die kleine Teilfläche ist derzeit an ein Reisebüro vermietet, der größere Teil steht derzeit leer
- Aufgeteilt in zwei Teilflächen ca. 27m² und ca. 270m² sowie ca. 100m² Lagerfläche/Sanitäranlagen
- zwei Kellerräume
- Fernwärme Zentralheizung
- doppelverglaste Holzfenster

Grundrisse

Grundrisse
1 / 1

Bausubstanz und Energie

Energieausweis

Endenergiebedarf (Wärme)

  • Baujahr1973
  • Zustand der ImmobilieGepflegt
  • EnergieträgerFernwärme
Immowelt logo

Mietkosten

Warmmiete
3.600 €
Nettomiete zzgl. Nebenkosten
6,80 €/m²
2.700 €
Heizkosten
in Warmmiete enthalten
Provision für Mieter
provisionsfrei; Mieterprovisionsfrei
Kaution
keine Angabe

Lage

address-icon
NeureutKarlsruhe (76149)
Der Anbieter hat die genaue Adresse nicht freigegeben
Die Gewerbefläche befindet sich im Karlsruher Stadtteil Neureut, einem etablierten und stetig wachsenden Wirtschaftsstandort im Norden der Fächerstadt. Die Lage überzeugt durch gute Erreichbarkeit, solide Infrastruktur und ein attraktives Unternehmensumfeld.

Über die B36 besteht eine direkte Anbindung an die Karlsruher Innenstadt sowie an die Autobahn A5, wodurch Kunden und Lieferanten den Standort schnell erreichen. Eine Straßenbahnhaltestelle (Linie S2) liegt nur wenige Gehminuten entfernt und sorgt für eine optimale ÖPNV-Anbindung.

Das Umfeld ist geprägt von kleineren Gewerbeeinheiten, Handwerksbetrieben und Dienstleistungsunternehmen, ergänzt durch Einzelhandel, Gastronomie und Nahversorgung - ideal für Betriebe, die von einer guten Erreichbarkeit und gewachsenen Infrastruktur profitieren möchten.

Ausreichende Stellplätze und Zufahrtsmöglichkeiten für Pkw und Lkw sind vorhanden, was die Fläche auch für logistische oder handwerksnahe Nutzungen interessant macht.

Weitere Informationen

Sonstiges Wir arbeiten bei diesem Objekt auf Basis der Innenprovision, das bedeutet wir werden in diesem Fall vom Vermieter bezahlt und die Gewerbefläche ist für Sie als Mieter provisionsfrei.

Es gelten die angehängten Geschäftsbedingungen, die Sie sich auch von unserer Homepage entnehmen können.

Eine Zwischenvermietung bleibt vorbehalten.

Für die Richtigkeit der gemachten Angaben können wir keine Gewähr übernehmen.
Die Informationen in der vorliegenden Form haben wir vom Eigentümer bzw. Auftraggeber erhalten und in diesem Angebot weitergegeben, ohne Haftung für die Richtigkeit und Vollständigkeit.

Weitere Angebote unserer Firma finden Sie unter: www.pell-rich.de Stichworte Gesamtfläche: 397,00 m², Anzahl der separaten WCs: 2

Weitere Services

Lust auf eine Besichtigung?
Eine Frage zur Immobilie?
Mit einer persönlichen Nachricht hast du bessere Chancen auf eine Antwort.
Mit der Nutzung der oben angegebenen Telefonnummer oder durch Klicken auf „Kontaktieren“ akzeptierst Du die Allgemeinen Nutzungsbedingungen, denen Du jederzeit widersprechen kannst. Weitere Informationen zum Datenschutz

Über den Anbieter

Am Sandfeld 13a, 76149 Karlsruhe
Herr Christopher Doll
Herr Christopher DollDein Kontakt
Online-ID: 26APEZ43M8NS
Referenznummer: 972_2
Wie zufrieden bist du mit dieser Seite (nicht mit der Immobilie selbst)?