

Bürofläche zur Miete • provisionsfrei41,44 €/m²61,3 m² Bürofläche • teilbar ab 61 m²
41,44 €
/m²
61,3 m² Bürofläche • teilbar ab 61 m²
JLL - BĂĽro direkt am Promenadeplatz
Merkmale
- Bezug: Auf Anfrage
- TeekĂĽche
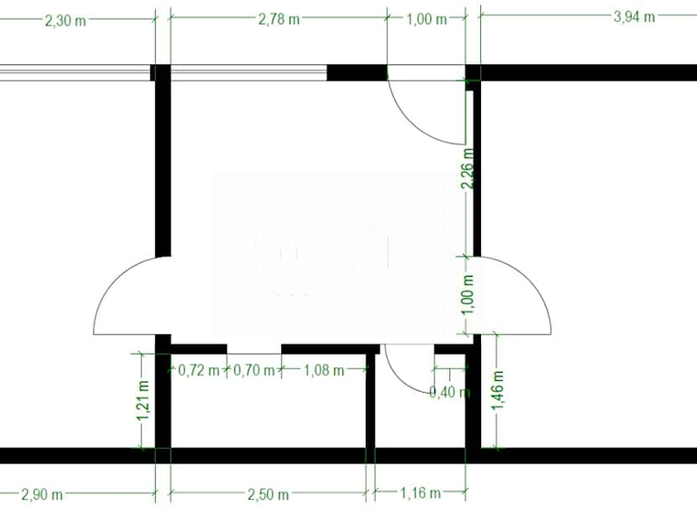
Grundrisse
Grundrisse
1 / 1
Realisiere Dein Projekt
Bausubstanz und Energie
Der Anbieter hat keine Informationen zu Energieverbrauch oder Zustand der Immobilie bereit gestellt.
Mietkosten
Monatliche Miete
41,44 €/m²
Nebenkosten
3,50 €
Provision fĂĽr Mieter
provisionsfrei; provisionsfrei für den Mieter/Käufer
Kaution
keine Angabe
Lage

Altstadt-Lehel, München (80333)
Der Anbieter hat die genaue Adresse nicht freigegeben
Weitere Informationen
Weitere Services
Lust auf eine Besichtigung?
Eine Frage zur Immobilie?
Ăśber den Anbieter
LudwigstraĂźe 8, 80539 MĂĽnchen
Partnerschaft
Herr Tobias SchneiderDein Kontakt
Online-ID: 2ncjb5a
Referenznummer: 4@of11419@14@0

Jones Lang LaSalle SE - Office Leasing MĂĽnchen
Wie zufrieden bist du mit dieser Seite (nicht mit der Immobilie selbst)?

