Version: 8.25.1Navigation überspringen
244.000 €
3 Zimmer  •  78 m²
Immowelt logo

Wohnung zum Kauf
244000 €
3.128 €/m²
3 Zimmer  •  78 m²

Wohnung 78m2 zum Kauf - Primorsko-Goranska, Bakar

HRELJIN, BAKAR 2-Zimmer-Wohnung mit Wohnzimmer, Garten, Terrasse und Meerblick Parkplatz und Abstellraum

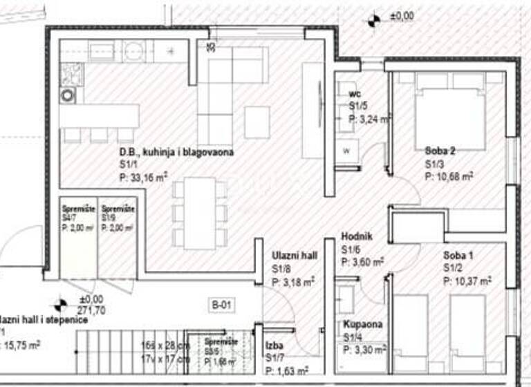
Diese moderne 2-Zimmer-Wohnung im Erdgeschoss eines Neubaus mit einer Wohnfläche von 78 m bietet einen Garten, eine Terrasse, einen Parkplatz und einen Abstellraum. Die Wohnung verfügt über zwei Schlafzimmer und ein Wohnzimmer mit einem großzügigen, offenen Wohn-, Küchen- und Essbereich, zwei komfortable Schlafzimmer, ein Badezimmer, ein Gäste-WC und praktische Abstellräume.

Ein besonderes Highlight dieser Immobilie ist der private Garten mit Terrasse und Meerblick ideal zum Entspannen und Verweilen im Freien. Die Lage bietet Ruhe und Privatsphäre und ist gleichzeitig zentral gelegen und mit allen Annehmlichkeiten des täglichen Bedarfs gut erreichbar.

Die Wohnung ist mit hochwertigen Materialien gebaut und mit erstklassiger Ausstattung versehen: Porotherm Profi S-Block, 10 cm Fassade, Alu-Ben Aluminiumfenster und -türen, Dierre Sicherheitstüren, Braga Innentüren, Kronotex Mammut 12 mm Laminat, Geberit Sanitärkeramik und hochwertige Fliesen. Beheizt und gekühlt wird die Wohnung über eine Hisense Split-Klimaanlage.

Die Immobilie ist mehrwertsteuerpflichtig und der geplante Einzugstermin ist Sommer 2026. Dies ist die letzte verfügbare Wohnung in diesem Projekt eine ideale Gelegenheit, eine hochwertige Immobilie mit Garten und Meerblick zu erwerben.

*** Sehr geehrte Kunden, die Maklerprovision wird gemäß den Allgemeinen Geschäftsbedingungen berechnet:
www.dux-nekretnine.hr/opci-uvjeti-poslovanja!

ID CODE: 46888

DUX Rijeka
Mob: +385 99 879 6808
Tel: +385 91 480 8808
E-mail: info@dux-nekretnine.hr
www.dux-nekretnine.hr

Grundrisse

Grundrisse
1 / 1

Realisiere Dein Projekt

Bausubstanz und Energie

Möchtest du Details zum Energieverbrauch?info_energy_calculation-icon
  • Baujahr2026
Immowelt logo

Preisdetails

Kaufpreis
244000 €
3.128,21 €/m²
Provision für Käufer
Bitte beachte, das Angebot kann bei Vertragsabschluss die Zahlung einer Provision beinhalten. Weitere Informationen erhältst Du vom Anbieter.

Lage

address-icon
Bakar
Der Anbieter hat die genaue Adresse nicht freigegeben

Weitere Informationen

Stichworte Anzahl der Schlafzimmer: 2, Anzahl der Badezimmer: 1, 1 Etagen

Weitere Services

Lust auf eine Besichtigung?
Eine Frage zur Immobilie?
Nachricht hinzufügen
Mit der Nutzung der oben angegebenen Telefonnummer oder durch Klicken auf „Kontaktieren“ akzeptierst Du die Allgemeinen Nutzungsbedingungen, denen Du jederzeit widersprechen kannst. Weitere Informationen zum Datenschutz

Über den Anbieter

Nova cesta 60, 10000 ZAGREB
DUX Real EstateDein Kontakt
Online-ID: 26X21E6TV7KR
Referenznummer: 19693001_1
Crozilla.com
Crozilla.com
Nachricht hinzufügen
Mit der Nutzung der oben angegebenen Telefonnummer oder durch Klicken auf „Kontaktieren“ akzeptierst Du die Allgemeinen Nutzungsbedingungen, denen Du jederzeit widersprechen kannst. Weitere Informationen zum Datenschutz
Wie zufrieden bist du mit dieser Seite (nicht mit der Immobilie selbst)?