Dieses attraktive Grundstück bietet eine hervorragende Gelegenheit für Investoren und Bauherren, die nach einer vielseitig nutzbaren Fläche in einer begehrten Lage suchen. Mit seiner großzügigen Fläche und der idyllischen Umgebung eignet es sich ideal für verschiedene Bauvorhaben. Alternativ können Sie gegen Aufpreis den Schrott- und Fahrzeugverwertungsbetrieb übernehmen und direkt weiterarbeiten. Highlights bei Übernahme: Schrottpressen und Fahrzeuge wie Abschlepper Lagerhalle (ca. 150 m²) und Bürogebäude Sofortiger Start im laufenden Betrieb möglich
Dieses BETTERHOMES-Angebot zeichnet sich durch folgende Vorteile aus: - top-Lage im Gewerbegebiet Böbingen
- großzügige Grundstücksfläche
- flexible Übergabeoption: leer oder mit bestehendem Betrieb
- seltene Gelegenheit keine vergleichbaren gewerblichen Anbieter in der Umgebung
- sofortige Weiterarbeit im bestehenden Geschäft möglich
- und, und, und ...
Interessiert? Kontaktieren Sie uns für eine unverbindliche Besichtigung auch Online-Besichtigung möglich!
Nichts Passendes gefunden? Über 1'300 weitere Angebote finden Sie unter betterhomes.de.
Selber eine Immobilie zu vermarkten? Profitieren Sie von unserem Know-how: https://www.betterhomes.de/de/profitieren
Sie möchten eine Immobilie schätzen lassen? Erfahren Sie jetzt ihren Wert über unsere Gratis-Schätzung, sofort und unverbindlich! https://www.betterhomes.de/de/knowledge/estimation
Merkmale
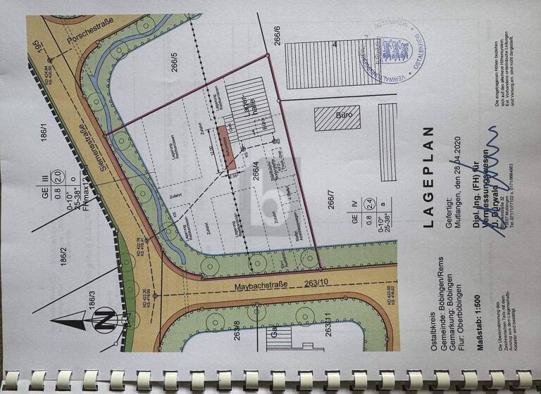
2.176 m² Grundstück
Grundrisse
Grundrisse
1 / 1
Realisiere Dein Projekt
Bausubstanz und Energie
Der Anbieter hat keine Informationen zu Energieverbrauch oder Zustand der Immobilie bereit gestellt.
Preisdetails
Kaufpreis
950000 €950.000 €
436,58 €/m²
Provision für Käufer
4.76 % inkl. MwSt.
Geschätzte Gesamtkosten
995.220 €1
Kaufpreis
950.000 €
Kaufnebenkosten
45.220 €
2
Provision für Käufer (4,76%)
45.220 €
1Der angezeigte Wert ist eine automatisch berechnete Schätzung von immowelt.
2Bei den Angaben handelt es sich um ortsübliche Werte. Individuelle Kosten können abweichen.
Lage
Böbingen, Böbingen an der Rems (73560)
Der Anbieter hat die genaue Adresse nicht freigegeben
stark gefragte Gewerbelage im Gewerbegebiet Böbingen-Süd