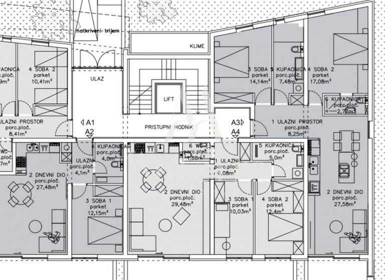
PRIMOSTEN / MODERNER NEUBAU MIT AUSBLICK (93 m² - A3)
Die Wohnung A3 befindet sich im Erdgeschoss eines modernen Wohngebäudes und zeichnet sich durch ihren funktionalen Grundriss sowie großzügige Außenflächen aus. Die netto nutzbare Fläche beträgt 93 m².
Grundriss und Raumaufteilung:
Eingangsbereich - 8,25 m²
Schlafzimmer 1 - 14,14 m²
Schlafzimmer 2 - 17,08 m²
Badezimmer - 7,48 m²
WC - 2,77 m²
Wohnzimmer mit Küche und Essbereich - 27,58 m²
Überdachte Terrasse - 10,95 m²
Nicht überdachte Terrasse - 10,58 m²
Abstellraum - 4,8 m²
Garagenstellplatz - 15 m²
Von den Terrassen aus genießt man einen freien Meerblick, was der Immobilie zusätzlichen Wert verleiht und sie ideal für das ganzjährige Leben im mediterranen Ambiente macht.
Technische Merkmale und Ausstattung:
ALU-Fenster mit IZO-Verglasung, LOW-E-Beschichtung und Argonfüllung
Elektrische ALU-Rollläden mit Wärmedämmung und integrierten Insektenschutzgittern
Einbruch- und brandsichere ALU-Eingangstür (schall- und wärmegedämmt)
Multi-Split-Inverter-Klimaanlagen mit verdeckten Inneneinheiten
Elektrische Fußbodenheizung in den Badezimmern
ETICS-Fassadensystem mit 10 cm Steinwolle-Dämmung
LED-Beleuchtung in allen Räumen
Vorbereitung für E-Ladestationen in der Garage
Aufzug verbindet alle Etagen des Gebäudes
Das Gebäude bietet direkten Zugang zur Tiefgarage per Aufzug. Alle Wohnungen sind nach Süden ausgerichtet, was das ganze Jahr über für viel natürliches Licht sorgt.
Verfügbare Wohnungen im Projekt:
A1 - €
A2 - €
A3 - €
A4 - €
B1 - €
B3 - €
C2 - €
D1 - €
D2 - €
Lage und Entfernungen:
Zentrum von Primosten und Strand: 750 m
Marina Kremik: 2 km
Flughafen Split: ca. 35 km
Stadt Sibenik: ca. 25 km
Für weitere Informationen oder zur Vereinbarung eines Besichtigungstermins kontaktieren Sie uns gerne.
ID CODE: 189
Grundrisse
Grundrisse
1 / 1
Realisiere Dein Projekt
Bausubstanz und Energie
Möchtest du Details zum Energieverbrauch?
Preisdetails
Kaufpreis
375000 €375.000 €
Provision für Käufer
Bitte beachte, das Angebot kann bei Vertragsabschluss die Zahlung einer Provision beinhalten. Weitere Informationen erhältst Du vom Anbieter.
Lage
Primosten (22202)
Der Anbieter hat die genaue Adresse nicht freigegeben
Weitere Informationen
Stichworte
Gesamtfläche: 93,00 m², Anzahl der Schlafzimmer: 2, Anzahl der Badezimmer: 1, Anzahl der separaten WCs: 1, Anzahl der Wohn-Schlafzimmer: 1, 3 Etagen, Stadtzentrumslage