Version: 8.22.6Navigation ĂĽberspringen
15,85 €
694 m² Lagerfläche
Immowelt logo

Halle/Industriefläche zur Miete
15,85 Euro pro Quadratmeter
694 m² Lagerfläche

Attraktive Gewerbefläche in 1200 Wien - ca. 694 m² vielseitig nutzbare Fläche in verkehrsgünstiger Lage

Sehr geehrte Damen und Herren,

willkommen in Ihrem neuen Unternehmensstandort in 1200 Wien!
Zur Vermietung gelangt eine hochwertige Gewerbefläche mit einer Gesamtnutzfläche von ca. 694 m² in einem modernen Stahlbetongebäude.

Dieses vielseitig nutzbare Betriebsobjekt eignet sich ideal für Unternehmen jeder Größenordnung - von etablierten Betrieben bis hin zu expandierenden Start-ups. Die Flächen sind flexibel gestaltbar und können individuell an Ihre betrieblichen Anforderungen angepasst werden.

Besondere Highlights im Ăśberblick:

*
Halle mit natĂĽrlicher Belichtung durch groĂźzĂĽgige Oberlichten

*
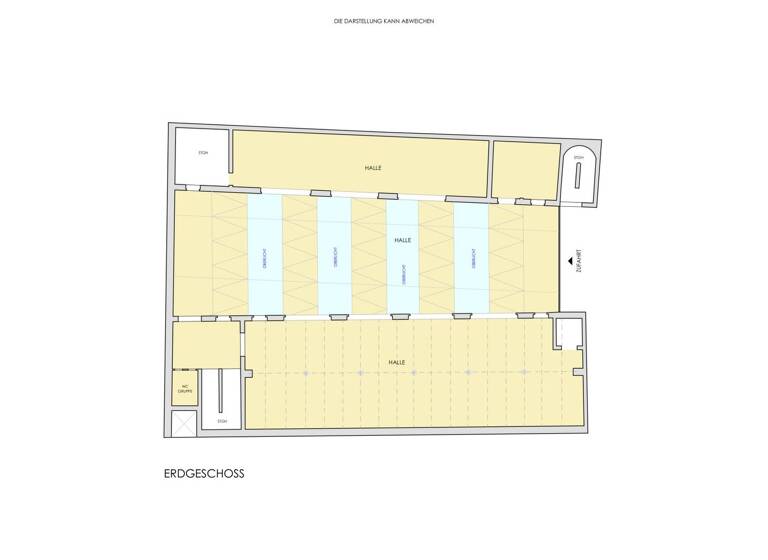
Mittelschiff: ca. 30 m x 9,5 m

*
Seitenschiffe: ca. 30 m x 9,6 m und ca. 30 m x 4,5 m

*
BĂĽroeinheit, Sozialraum sowie WC-Anlagen bereits vorhanden

*
Umfangreiche Stromversorgung möglich

*
Barrierefreier Zugang fĂĽr bequemes Be- und Entladen schwerer Gerätschaften

*
Teilunterkellert -> Nutzlast min. 1.000kg/m3

Kosteninformationen: 

* Miete: 12 EUR / m2 / netto / Monat zzgl. USt.
* Betriebskosten: 2,50 EUR / m2 / netto / Monat zzgl. USt.

 

Gerne stehen wir Ihnen für weitere Informationen oder zur Vereinbarung eines Besichtigungstermins zur Verfügung. Lassen Sie uns gemeinsam prüfen, wie diese Immobilie optimal an Ihre geschäftlichen Anforderungen angepasst werden kann.

Wir freuen uns auf Ihre RĂĽckmeldung!

Mit freundlichen GrĂĽĂźen

Hinweis gemäß Energieausweisvorlagegesetz: Ein Energieausweis wurde vom Eigentümer bzw. Verkäufer, nach unserer Aufklärung über die generell geltende Vorlagepflicht, sowie Aufforderung zu seiner Erstellung noch nicht vorgelegt. Daher gilt zumindest eine dem Alter und der Art des Gebäudes entsprechende Gesamtenergieeffizienz als vereinbart. Wir übernehmen keinerlei Gewähr oder Haftung für die tatsächliche Energieeffizienz der angebotenen Immobilie.

Wir weisen darauf hin, dass zwischen dem Vermittler und dem zu vermittelnden Dritten ein familiäres oder wirtschaftliches Naheverhältnis besteht.

Der Vermittler ist als Doppelmakler tätig.

Infrastruktur / Entfernungen

Gesundheit
Arzt <500m
Apotheke <500m
Klinik <1.000m
Krankenhaus <1.500m

Kinder & Schulen
Schule <500m
Kindergarten <500m
Universität <1.000m
Höhere Schule <1.000m

Nahversorgung
Supermarkt <500m
Bäckerei <500m
Einkaufszentrum <1.500m

Sonstige
Geldautomat <500m
Bank <500m
Post <500m
Polizei <500m

Verkehr
Bus <500m
U-Bahn <500m
StraĂźenbahn <500m
Bahnhof <500m
Autobahnanschluss <1.000m

Angaben Entfernung Luftlinie / Quelle: OpenStreetMap

Grundrisse

Grundrisse
1 / 1

Realisiere Dein Projekt

Bausubstanz und Energie

Der Anbieter hat keine Informationen zu Energieverbrauch oder Zustand der Immobilie bereit gestellt.
Immowelt logo

Mietkosten

Nettokaltmiete
15,85 €/m²
11.000 €
Betriebskosten
1.735 €
Provision fĂĽr Mieter
45.846,00 € inkl. 20% USt.
Kaution
3 Bruttomonatsmieten
Weitere Preisinformationen
Nettokaltmiete: 11.000,00 EUR

Lage

address-icon
Wien (1200)
Der Anbieter hat die genaue Adresse nicht freigegeben
Diese Gewerbeimmobilie in 1200 Wien überzeugt durch ihre ausgezeichnete Lage. In unmittelbarer Nähe finden Sie alle wichtigen Einrichtungen des täglichen Bedarfs, darunter Arzt, Apotheke und Supermarkt. Schulen, Kindergarten und Hochschulen sind ebenfalls schnell erreichbar. Zudem profitieren Sie von einer hervorragenden Anbindung an den öffentlichen Nahverkehr mit U-Bahn, Straßenbahn und Bus, sowie einem nahen Autobahnanschluss. Ideal für Ihr Unternehmen!

Weitere Informationen

Sonstiges * Befristung: 10 Jahre
* Mindestmietdauer: 1 Jahre
* Kaution: 3 Bruttomonatsmieten
* Provision: 3 Bruttomonatsmieten zzgl 20% USt
* Vergebührung: laut Gebührengesetz Stichworte Nutzfläche: 694,00 m², Bundesland: Wien, 1 Etagen

Weitere Services

Lust auf eine Besichtigung?
Eine Frage zur Immobilie?
Nachricht hinzufĂĽgen
Mit der Nutzung der oben angegebenen Telefonnummer oder durch Klicken auf „Kontaktieren“ akzeptierst Du die Allgemeinen Nutzungsbedingungen, denen Du jederzeit widersprechen kannst. Weitere Informationen zum Datenschutz

Ăśber den Anbieter

RotenturmstraĂźe 17 / 10, 1010 WIEN
partner badge
Partnerschaft
Frau Ana PutricDein Kontakt
Keine Telefonnummer hinterlegt
Keine Telefonnummer hinterlegt
Online-ID: 2l9r65f
Referenznummer: OBGC202503202130404195248b1de92
Werner Hoflehner GmbH
Werner Hoflehner GmbH
Bewertung: 1,5 von 5 Sternen
Nachricht hinzufĂĽgen
Mit der Nutzung der oben angegebenen Telefonnummer oder durch Klicken auf „Kontaktieren“ akzeptierst Du die Allgemeinen Nutzungsbedingungen, denen Du jederzeit widersprechen kannst. Weitere Informationen zum Datenschutz
Wie zufrieden bist du mit dieser Seite (nicht mit der Immobilie selbst)?