Version: 8.25.1Navigation überspringen
10,50 €
427 m² Bürofläche  •  teilbar ab 427 m²
Immowelt logo

Bürofläche zur Miete • provisionsfrei
10,50 €
/m²
427 m² Bürofläche  •  teilbar ab 427 m²

Exklusiv über RUHR REAL: Moderne Büroflächen im Technologiegebiet "Im weißen Feld"

Das Innovationshaus Dortmund ist ein attraktives und energetisch hoch standardisiertes Bürogebäude aus dem Jahre 2003. Seiner Zeit damals schon voraus, legte man Wert auf Nachhaltigkeit, welche man unter anderem über ein WDVS, Regenrückgewinnung und weiteren Maßnahmen realisierte.
Die Konzeption des Gebäudes, welche stützenfrei funktioniert, lässt jegliche Raumkonzepte zu. Vom Open-Space bis hin zur Einzelverzimmerung können jegliche Ausbauten Mieterwunsch entsprechend realisiert werden.
Die umlaufende Fensterfront, welche mit einem elektrischen Sonnenschutz versehen ist, sorgt für einen lichtdurchfluteten Arbeitsplatz.
Die Liegenschaft ist barrierefrei zugänglich. Jede Etage ist über zwei moderne Personenaufzüge erschlossen. Das Staffelgeschoss verfügt darüber hinaus über ein barrierefreies WC im Obergeschoss sowie zwei Dachterrassen.
Eine Teilbarkeit der Flächen ist für jedes Halbgeschoss möglich.

Zahlreiche KFZ-Stellplätze stehen im Außenbereich sowie in der objekteigenen Tiefgarage zur Verfügung.

Folgende Flächen stehen zur Disposition:

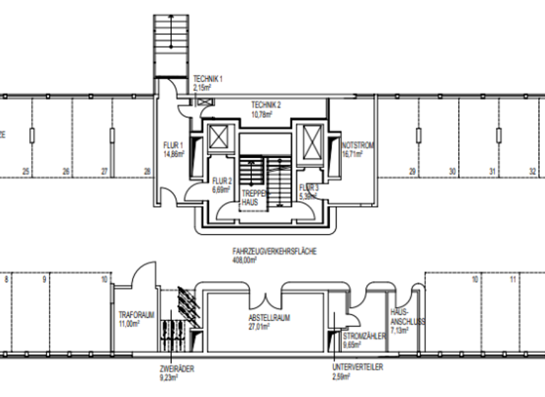
EG. li: ca. 427 m²
2. OG li: ca. 456 m²
3. OG li: ca. 456 m²
3. OG re: ca. 457 m²
4.OG li: ca. 456 m²
4.OG re: ca. 457 m²
SG: ca. 438 m²

Merkmale

  • Bezug: sofort
  • Barrierefrei
  • Personenaufzug
  • Speisekammer
  • 50 Stellplätze: Außen-Stellplatz, Tiefgarage
  • Empfang
. Verkabelungsort: doppelter Boden
. Kühlung: teilweise klimatisiert
. Sonnenschutz: außenliegend, elektrisch
. Küche: voll ausgestattet
. Beleuchtung: Standleuchten
. Glasfaseranschluss
. Behindertengerechtes WC
. Personenaufzug
. Barrierearm

Grundrisse

Grundrisse
1 / 4

Realisiere Dein Projekt

Bausubstanz und Energie

Möchtest du Details zum Energieverbrauch?info_energy_calculation-icon
  • Baujahr2003
  • Zustand der Immobilieneuwertig
  • EnergieträgerGas
Immowelt logo

Mietkosten

Nettomiete
10,50 €/m²
10,50 €
Nebenkosten
3,50 €
Zusätzliche Kosten
Heizkosten
Provision für Mieter
provisionsfrei
Kaution
keine Angabe
Weitere Preisinformationen
Nettokaltmiete: 10,50 EUR

Lage

address-icon
OespelDortmund (44149)
Der Anbieter hat die genaue Adresse nicht freigegeben
Das Objekt befindet sich sehr verkehrsgünstig gelegen im Technologiegebiet "Im weißen Feld" in Dortmund. In nur wenigen Fahrminuten erreicht man die Autobahnen A40, A45 sowie die A1. Das Objekt ist ferner hervorragend an den ÖPNV angeschlossen.

Bedeutende Unternehmen in der Umgebung: Vanderlande, Omron, Verizon, Technische Universität uvm.

Hotels in der Umgebung: Ibis, Hotel in der Meile, Tryp Dortmund, B&B

Weitere Informationen

Sonstiges Es gelten ausschließlich unsere AGB (www.ruhr-real.de/agb). Wir möchten Sie darauf hinweisen, dass die Angaben ausschließlich auf den uns vom Eigentümer übermittelten Unterlagen und Informationen basieren. Für Richtigkeit und Vollständigkeit übernehmen wir keine Gewähr. Zwischenvermietung vorbehalten. Stichworte Sonstiges: EDV-Verkabelung

Weitere Services

Lust auf eine Besichtigung?
Eine Frage zur Immobilie?
Mit einer persönlichen Nachricht hast du bessere Chancen auf eine Antwort.
Mit der Nutzung der oben angegebenen Telefonnummer oder durch Klicken auf „Kontaktieren“ akzeptierst Du die Allgemeinen Nutzungsbedingungen, denen Du jederzeit widersprechen kannst. Weitere Informationen zum Datenschutz

Über den Anbieter

Holsterhauser Platz 2, 45147 Essen
partner badge
6 Jahre Partnerschaft
Herr Frederic JeschkeDein Kontakt
Online-ID: 2337FGIMPY7C
Referenznummer: 2020/E1
RUHR REAL GmbH
RUHR REAL GmbH
Mit einer persönlichen Nachricht hast du bessere Chancen auf eine Antwort.
Mit der Nutzung der oben angegebenen Telefonnummer oder durch Klicken auf „Kontaktieren“ akzeptierst Du die Allgemeinen Nutzungsbedingungen, denen Du jederzeit widersprechen kannst. Weitere Informationen zum Datenschutz
Wie zufrieden bist du mit dieser Seite (nicht mit der Immobilie selbst)?