Version: 8.22.4Navigation überspringen
1.248.000 €
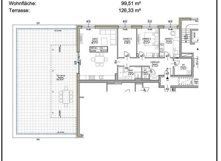
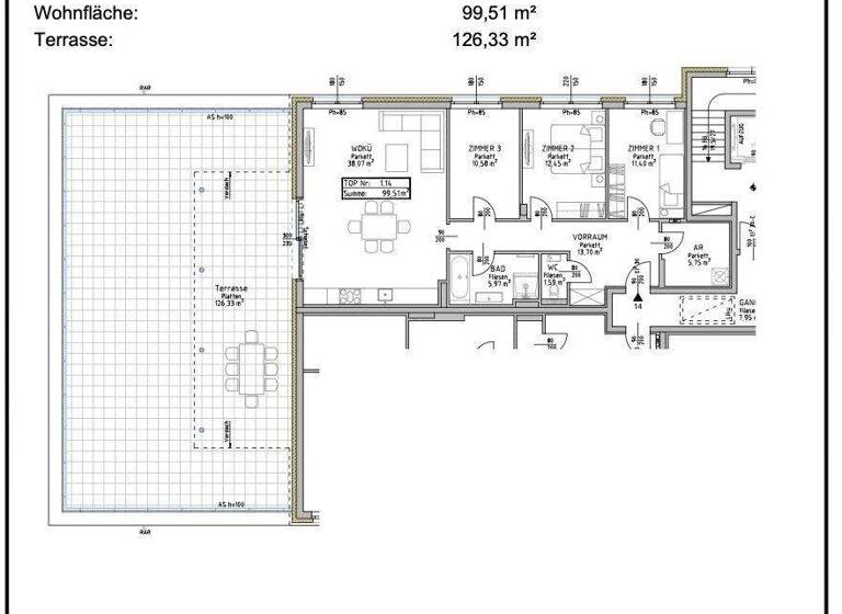
4 Zimmer  •  99,5 m²
Immowelt logo

Wohnung zum Kauf - Erstbezug • provisionsfrei
1248000 €
12.541 €/m²
4 Zimmer  •  99,5 m²

Provisionsfrei für den Käufer! Die Donau vor der Tür - Urlaubstimmung und üppiges Grün in der Fischerzeile, elegante Eigentumswohnungen mit Gärten, T

Exklusiv und architektonisch aufwendig wird diese dreigeschoßige Erstbezugs-Wohnhausanlage in ruhiger Korneuburger Wohnlage, für hohe Ansprüche errichtet und bietet optimalen Lebensraum sowie Erholung und Freizeitaktivitäten an.

Die Wohnhausanlage besteht aus zwei Stiegen mit je 14 Eigentumswohnungen (Wohnnutzflächen zwischen 74,33 m² und 261,59 m²) mit Gärten und Terrassen oder mit großzügigen Balkonen.

Das Bauprojekt wird voraussichtlich ab dem ca. 3.Qu. 2027 bezugsfertig sein.

Jede der geschmackvoll ausgestatteten Wohnungen verfügt im Innenbereich über einen großzügigen Vorraum, helle, freundliche Wohnräume, eine offen gehaltene Küche im Wohnzimmer (nur Anschlüsse vorhanden), ein Bad mit Dusche oder Wanne, ein oder zwei WC, separat oder im Bad integriert, sowie teilweise einen Abstellraum.

Geplant sind PKW-Stellplätze in der Tiefgarage.

Die Ziegelbauweise sorgt für ein behagliches Wohnklima bei geringem Energieverbrauch.

Die hochwertige Ausstattung umfasst unter anderem wunderschöne Parkettböden aus Eiche, elegante Fliesen im Vorzimmer und in den Nassräumen, moderne sanitäre Design-Anlagen von Villeroy&Boch, 3-fach Isolierglasfenster inkl. Rollläden und Fliegengitter, Klimaanlage oder Klimavorbereitung, Internet-, Telefon-, TV- Anschlüsse und vieles mehr, wie z.B. auch einen Wasseranschluss im Garten und auf den Terrassen/ Balkonen. Die schlüsselfertige Ausstattung entspricht dem heutigen, gehobenen Standard.

Die Beheizung (Fußbodenheizung) und Warmwasser-Aufbereitung erfolgt über die zentrale Luftwärmepumpe!

Im Untergeschoß stehen die Kellerabteile sowie Kinderwagen- und Fahrradabstellräume zur Verfügung.

Die perfekte Bauweise und die darauf abgestimmte Ausstattung ermöglichen es, dass die Betriebskosten äußerst geringgehalten werden können.

Der Bauträger ist bekannt dafür, Wohnimmobilien zu errichten, die den hohen Ansprüchen seiner Kunden gerecht werden! Bereits erfolgreich vermittelte Projekte des Bauträgers RUDOLF Wohnbau GmbH.: Stetten, Rudolf Eisler-Straße; Langenzersdorf, Weisses Kreuz Straße; Korneuburg, Roseggerstraße/Jaro Schmied-Straße, Kreuzensteinerstraße; Putzing am See; Wien: Handelskai, Kalmusweg, Am Hackenberg, zwei Einfamilienhäuser.

Korneuburg, eine Stadt mit hoher Lebensqualität, verfügt über alle infrastrukturellen Einrichtungen und Geschäfte des täglichen Bedarfes wie Ärzte, Banken, Frisöre, Bäckereien, Gastronomie, Einkaufsmöglichkeiten, Freizeitzentrum, mehrere Schulen und Kindergärten in der Nähe und vieles mehr.

In der Fischerzeile in Korneuburg profitieren Sie von der unmittelbaren Donau-Nähe sowie dem Erholungszentrum in der Aulandschaft. Die Lage vermittelt ein dauerhaft urlaubsähnliches Gefühl und bietet viel Ruhe.

In 7 Gehminuten erreichbar, bietet der Bahnhof ideale Anschlussmöglichkeiten an das öffentliche Verkehrsnetz Richtung Wien und Westen. Die Anbindung über den Autobahnanschluss A22 gewährleistet schnelle Verbindungen auf die A2 und A4, oder Richtung Norden auf die S3.

Die Wohnungen stehen in verschiedenen Größen und Ausrichtungen zur Verfügung. Die Bau- und Ausstattungsbeschreibung des Projektes sowie die Flächenaufstellungen der einzelnen TOPs inkl. Kaufpreise werden als separates Dokument gesendet.

Alle Wohnungen können auch als Vorsorgewohnungen gekauft werden.

Im Zuge der Bauausführung können geringfügige Flächenänderungen (+/- 3%) entstehen, welche sich jedoch nicht auf die Verkaufspreise auswirken. Die Kosten für Aufschließung der Anschlüsse an Kanal, Strom und Wasser sowie an hochwertige Telekommunikationsinfrastruktur sind im Kaufpreis enthalten.

Geschätzte Betriebskosten:
ca. 2,30 EUR pro Nutzwertanteil + 10% USt. (laufende Betriebskosten pro Monat)?

Instandhaltungsrücklage:
1,06 EUR pro Nutzwertanteil (reduzierbar)

Kaufpreis Top 14: 1.248.000,00 EUR

Kaufnebenkosten:
Provisionsfrei für den Käufer!
3,5% Grunderwerbsteuer
1,1% Grundbuchseintragungsgebühr
1,5% Treuhand-Kaufabwicklung -Treuhändische Kaufabwicklung & Wohnungseigentumsbegründung: Notariat Mag. Werner Kilian, Hauptplatz 6-7, 2100 Korneuburg

Gerne senden wir Ihnen auf Wunsch weitere Informationen zu!

Merkmale

  • Dachgeschoss
  • offene Küche
  • Personenaufzug
  • 2 Stellplätze: 2 Garagen
  • Terrasse
  • Barrierefrei, Rollstuhlgerecht
  • Badezimmer: Badewanne, Bad mit Dusche
  • voll klimatisiert

Grundrisse

Grundrisse
1 / 1

Realisiere Dein Projekt

Bausubstanz und Energie

Heizwärmebedarf (HWB)

B

Gesamtenergieeffizienz (fGEE)

A+
  • Zustand der ImmobilieMassivhaus, Erstbezug
  • HeizungsartFußbodenheizung
  • EnergieträgerLuft-/Wasser-Wärmepumpe
Immowelt logo

Preisdetails

Kaufpreis
1248000 €
12.541,45 €/m²
Provision für Käufer
Provisionsfrei
Weitere Preisinformationen

Betriebskosten ca. 2,30 EUR / NW + 10% USt.
Instandhaltung ca. 1,06 EUR / NW (reduzierbar), 2 Garagenstellplätze

Lage

address-icon
Korneuburg (2100)

Weitere Informationen

Stichworte Tiefgarage vorhanden, Süd-Ost-Balkon/Terrasse, Fahrradraum, Nutzfläche: 225,84 m², Anzahl der Badezimmer: 1, Anzahl der separaten WCs: 1, Anzahl Terrassen: 1, Balkon-Terrassen-Fläche: 126,33 m², Kellerfläche: 3,64 m², Bundesland: Niederösterreich

Weitere Services

Lust auf eine Besichtigung?
Eine Frage zur Immobilie?
Nachricht hinzufügen
Mit der Nutzung der oben angegebenen Telefonnummer oder durch Klicken auf „Kontaktieren“ akzeptierst Du die Allgemeinen Nutzungsbedingungen, denen Du jederzeit widersprechen kannst. Weitere Informationen zum Datenschutz

Über den Anbieter

Feldgasse 1b, 2486 Pottendorf
partner badge
10 Jahre Partnerschaft
Anita HofmannDein Kontakt
Online-ID: 2ngsz58
Referenznummer: OBGC202601252238238432e3a874ac4
Bieber Immobilien GmbH
Bieber Immobilien GmbH
Nachricht hinzufügen
Mit der Nutzung der oben angegebenen Telefonnummer oder durch Klicken auf „Kontaktieren“ akzeptierst Du die Allgemeinen Nutzungsbedingungen, denen Du jederzeit widersprechen kannst. Weitere Informationen zum Datenschutz
Wie zufrieden bist du mit dieser Seite (nicht mit der Immobilie selbst)?