Version: 8.25.1Navigation überspringen
590.000 €
8 Zimmer  •  197 m²  •  774 m² Grundstück
Immowelt logo

Bungalow zum Kauf
590000 €
2.995 €/m²
8 Zimmer  •  197 m²  •  774 m² Grundstück

Architektonisches Juwel mit Weitblick: Nachhaltig, barrierefrei & zukunftssicher

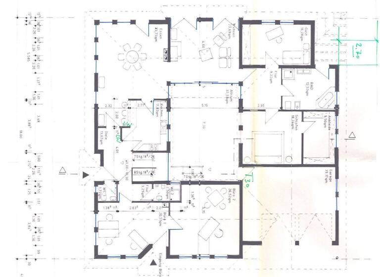
Willkommen in einem Zuhause, das Design, Funktionalität und Lebensqualität auf höchstem Niveau vereint. Dieses 1993 in massiver Handwerksqualität errichtete Architektenhaus besticht durch seine außergewöhnliche Bauweise und eine Lage, die Ruhe mit einer spektakulären Fernsicht kombiniert. Auf insgesamt 197 m² Wohnfläche bietet dieses Objekt Raum für individuelle Lebensentwürfe: Ob großzügiges Familienleben, Wohnen und Arbeiten unter einem Dach oder die Nutzung der separaten 51 m² Einliegerwohnung – hier sind Ihnen keine Grenzen gesetzt. Besonders hervorzuheben ist die barrierefreie Gestaltung (ebenerdig, breite Türen) sowie die allergikerfreundliche Ausstattung mit hochwertigen Fliesen im gesamten Wohnbereich. Das Herzstück des Hauses ist der ca. 35 m² große Innenhof (Atrium). Dieser geschützte Außenraum bietet mediterranes Flair und ist das ganze Jahr über nutzbar – ein sicherer Rückzugsort für Kinder und Haustiere oder der perfekte Platz für entspannte Abende. Ausstattung & Highlights Dieses Haus wurde mit Blick auf die Zukunft konzipiert und kontinuierlich modernisiert. Es besteht kein Renovierungsstau.

Merkmale

  • 774 m² Grundstück
  • Einbauküche
  • Keller (gesamt 70 m²)
  • Garage
  • Bidet, Gäste-WC
  • Garten
  • Barrierefrei, Rollstuhlgerecht
  • 2 Badezimmer: Badewanne, Bad mit Dusche, Bad mit Fenster

Grundrisse

Grundrisse
1 / 2

Realisiere Dein Projekt

Bausubstanz und Energie

Energieausweis

D
  • Baujahr1993
  • Letzte Modernisierung2023
  • Zustand der ImmobilieModernisiert
  • EnergieträgerGas
Immowelt logo

Preisdetails

Kaufpreis
590000 €
2.994,92 €/m²
Provision für Käufer
5,95 % inkl. ges. MwSt.
Geschätzte Gesamtkosten
658.263 €1
Kaufpreis
590.000 €
Notarkosten (1,5%)
8.850 €
Grunderwerbsteuer (6%)
35.400 €
Provision für Käufer (3,57%)
21.063 €
Grundbucheintrag (0,5%)
2.950 €
1Der angezeigte Wert ist eine automatisch berechnete Schätzung von immowelt.
2Bei den Angaben handelt es sich um ortsübliche Werte. Individuelle Kosten können abweichen.

Lage

address-icon
MartinhagenSchauenburg (34270)
Der Anbieter hat die genaue Adresse nicht freigegeben
Das Anwesen befindet sich in einer ruhigen Ortsrandlage (Tempo-30-Zone) mit einem unverbaubaren 50-km-Fernblick nach Süden. Hier genießen Sie absolute Ruhe ohne Autobahnlärm. Infrastruktur: Direkt vor Ort: Edeka-Markt und zwei regionale Hofläden. Nahbereich (Bad Emstal / Habichtswald): In wenigen Minuten erreichen Sie Aldi, Rewe, Penny, Rossmann, Baumärkte, Ärzte, Apotheken und Banken. Natur pur: Ein eigener Apfelbaum im pflegeleichten Garten (774 m² Grundstück) wartet auf die Ernte.

Weitere Informationen

Dieses Haus bietet im Vergleich zu einem gleichartigen Neubau einen erheblichen Preisvorteil und eine Ausstattungsqualität, die heute nur schwer zu finden ist. Zusammenfassung der Flächen: Wohnfläche gesamt: 197 m² Davon Einliegerwohnung/Büro: ca. 51 m² Nutzfläche Keller: ca. 70 m² Grundstück: 774 m² Überzeugen Sie sich selbst bei einem Besichtigungstermin von der besonderen Atmosphäre dieser Immobilie. Wir freuen uns auf Ihre Anfrage!

Weitere Services

Lust auf eine Besichtigung?
Eine Frage zur Immobilie?
Nachricht hinzufügen
Mit der Nutzung der oben angegebenen Telefonnummer oder durch Klicken auf „Kontaktieren“ akzeptierst Du die Allgemeinen Nutzungsbedingungen, denen Du jederzeit widersprechen kannst. Weitere Informationen zum Datenschutz

Über den Anbieter

Ofenbergstraße 3, 34466 Wolfhagen
partner badge
Partnerschaft
Herr Sükrü Seremet
Herr Sükrü SeremetDein Kontakt
Online-ID: 264XL8ANS3YT
Compact Service GmbH
title
Compact Service GmbH
Bewertung: 3,8 von 5 Sternen
Nachricht hinzufügen
Mit der Nutzung der oben angegebenen Telefonnummer oder durch Klicken auf „Kontaktieren“ akzeptierst Du die Allgemeinen Nutzungsbedingungen, denen Du jederzeit widersprechen kannst. Weitere Informationen zum Datenschutz
Wie zufrieden bist du mit dieser Seite (nicht mit der Immobilie selbst)?