Version: 8.22.4Navigation überspringen
734.000 €
3 Zimmer  •  81,5 m²  •  3. Geschoss
Immowelt logo

Penthouse zum Kauf - Erstbezug
734000 €
9.006 €/m²
3 Zimmer  •  81,5 m²  •  3. Geschoss

RESERVIERT!!! Freizeitwohnsitz Deluxe: Penthouse mit großzügiger Terrasse und unvergleichlichem Flair

Bergnaher Wohntraum mit Stil in sonniger Ruhelage - Nur wenige Schritte vom Dorfzentrum entfernt, entsteht ein Projekt, das modernen Wohnkomfort mit alpinem Charme vereint. Der architektonisch durchdachte Baukörper fügt sich harmonisch in die Hanglage ein und bietet Platz für nur sieben hochwertige Einheiten - exklusiv, ruhig und mit atemberaubendem Bergblick.

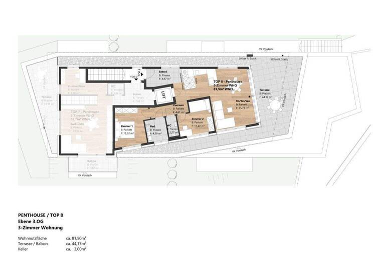
Die Top 8, eine lichtdurchflutete Penthouse-Wohnung auf höchstem Niveau befindet sich im 3. Obergeschoss. Mit ca. 81,5 m² Wohnfläche, 2 einladenden Schlafzimmern und einem eleganten Badezimmer bietet Ihnen dieses Appartement den perfekten Rückzugsort. Die großzügige Terrasse mit ca. 44,17 m² lädt zum Verweilen und Genießen der Sonne ein - Ihr privates Paradies unter freiem Himmel. Ein praktischer Kellerraum (ca. 3 m²) sorgt für zusätzlichen Stauraum.
Ein Garagenstellplatz rundet dieses exklusive Angebot ab und kann für € 25.000 erworben werden.


Kaufpreis: € 734.000,-

Kauferwerbsnebenkosten:
Lt. Beiblatt und insbesondere
3,5 % Grunderwerbssteuer
1,1 % Grundbuchseintragungsgebühr
3,0 % zzgl. 20 % USt Erfolgshonorar seitens der Tirol Real Estate GmbH
Kosten für die Errichtung des Kaufvertrages und Treuhandschaft lt. Anwaltstarif zzgl. Barauslagen

Merkmale

  • Bezug: 2026
  • 3. Geschoss
  • Personenaufzug
  • Tiefgarage
  • Terrasse
  • voll klimatisiert
  • Bodenbelag: Fliesen, Holzdielen
- FREIZEITWOHNSITZWIDMUNG
- 3-Zimmer-Penthouse-Wohnung
- 3 lichtdurchflutete Zimmer - inkl. 2 Schlafzimmern und 1 stilvollen Badezimmer
- ca. 82 m² Wohnfläche, durchdacht geplant für höchsten Wohnkomfort
- 1 großzügige Terrasse mit ca. 44,17 m² und Panoramablick
- Kellerfläche
- 1 Tiefgaragenplatz (€ 25.000 inkl. USt.) mit direktem Zugang per Personenaufzug
- Nachhaltige Luft/Wärmepumpe
- Edle Echtholzparkettböden in Landhausdielen-Optik
- Hochwertiges Feinsteinzeug in Bad, WC, Nebenräumen und Eingangsbereich
- Dezente, moderne Außen- und Allgemeinbeleuchtung für stimmungsvolle Atmosphäre
- 3-fach-verglaste Kunststoff-Alu-Fenster
- Vorrüstung für elektrische Raffstores vorhanden

Grundrisse

Grundrisse
1 / 4

Realisiere Dein Projekt

Bausubstanz und Energie

Der Anbieter hat keine Informationen zum Energieverbrauch bereit gestellt.
  • Baujahr2025
  • Zustand der ImmobilieErstbezug
  • HeizungsartFußbodenheizung
  • EnergieträgerLuft-/Wasser-Wärmepumpe
Immowelt logo

Preisdetails

Kaufpreis
734000 €
9.006,13 €/m²
Preis pro Stellplatz
25000 €
Provision für Käufer
3% zzgl. USt inkl. MwSt.
Käuferprovision
Weitere Preisinformationen
1 Tiefgaragenstellplatz, Kaufpreis: 25.000,00 EUR

Lage

address-icon
Mötz (6423)
Der Anbieter hat die genaue Adresse nicht freigegeben
Mötz ist ein charmanten Dorf mit bester Infrastruktur und einer traumhaften, sonnigen Lage - umgeben von der beeindruckenden Bergwelt Tirols und gleichzeitig nur wenige Minuten vom Dorfzentrum entfernt.

Dorfzentrum / Gemeinde: 4 Min. / zu Fuß
KiGa / Volksschule: 7 Min. / zu Fuß
Nahversorger: 4 Min. / zu Fuß
Telfs Zentrum: 10 Min. / Auto
Innsbruck Zentrum: 30 Min. / Auto

Weitere Informationen

Stichworte Süd-West-Balkon/Terrasse, Fahrradraum, Anzahl der Schlafzimmer: 2, Anzahl der Badezimmer: 1, Anzahl der separaten WCs: 1, Anzahl Terrassen: 1, Balkon-Terrassen-Fläche: 44,17 m², Kellerfläche: 3,00 m², Bundesland: Tirol, 1 Etagen, Distanz zum Kindergarten: 0.45, Distanz zur Grundschule: 0.45, Distanz vom Zentrum: 0.30, Distanz zur Hauptschule: 0.45

Weitere Services

Lust auf eine Besichtigung?
Eine Frage zur Immobilie?
Nachricht hinzufügen
Mit der Nutzung der oben angegebenen Telefonnummer oder durch Klicken auf „Kontaktieren“ akzeptierst Du die Allgemeinen Nutzungsbedingungen, denen Du jederzeit widersprechen kannst. Weitere Informationen zum Datenschutz

Über den Anbieter

Marktgraben 17, 6020 INNSBRUCK
partner badge
6 Jahre Partnerschaft
Herr Klaus Venier
Herr Klaus VenierDein Kontakt
Online-ID: 2mhbe5n
Referenznummer: Mötz TOP 08 Pent
Tirol Real Estate
title
Tirol Real Estate
Nachricht hinzufügen
Mit der Nutzung der oben angegebenen Telefonnummer oder durch Klicken auf „Kontaktieren“ akzeptierst Du die Allgemeinen Nutzungsbedingungen, denen Du jederzeit widersprechen kannst. Weitere Informationen zum Datenschutz
Wie zufrieden bist du mit dieser Seite (nicht mit der Immobilie selbst)?