Attraktive große Passagen-Ladenfläche im Lindenau FORUM sucht Neubelebung !
Modernes Ärzte-, Geschäfts- und Wohnhaus im Stadtteil Neulindenau.
Merkmale
Bezug: nach Absprache
Erdgeschoss
Das großzügige Wohn-/ und Geschäftshaus LINDENAU FORUM hat sich durch das darin befindliche Ärztehaus, das umfangreiche Angebot zum betreuten Wohnen und durch langjährige und namhafte Dienstleister und Einzelhändler im Erdgeschoß als Stadtteilmagnet profiliert. Aktuell erweitern wir das Objekt (Fertigstellung Ende 2024/Anfang 2025) durch einen großen rechtsseitigen Anbau/Neubau, welcher das Angebot und die Attraktivität des Standortes noch weiter erhöhen.
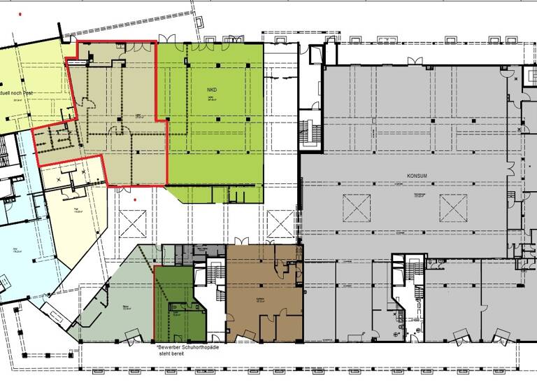
Die hier angebotene Laden- und Verkaufsfläche (im Grundriss rot markiert) befindet sich in der Passage, welche im Zuge des Um- und Neubaus auch eine Modernisierung erfahren hat.
Wir suchen deshalb Sie und Ihr renommiertes Unternehmen, welches unser Angebot im Center vergrößert und bereichert.
Gern passen wir die Fläche Ihren Vorstellungen an.
Rufen Sie uns doch einfach an und vereinbaren einen Ortstermin !
Grundrisse
Grundrisse
1 / 1
Realisiere Dein Projekt
Bausubstanz und Energie
Möchtest du Details zum Energieverbrauch?
HeizungsartZentralheizung
EnergieträgerGas
Mietkosten
Monatliche Miete
10 €/m²
Heizkosten
in Warmmiete enthalten
Provision für Mieter
provisionsfrei
Kaution
3 Kaltmieten
Weitere Preisinformationen
Nebenkosten pro qm: 5,00 EUR
Lage
Neulindenau, Leipzig (04179)
Der Anbieter hat die genaue Adresse nicht freigegeben
Das Objekt befindet sich zentral im Stadtteil Neulindenau, direkt an der Ausfallstraße Lützner Straße. Der Standort verfügt in unmittelbarer Nähe über sämtliche Einrichtungen des täglichen Lebens wie Cafes, Einkaufspassagen, Banken etc. und profitiert durch seine gute Verkehrsanbindung. Aktuell hat der Standort durch die Umgestaltung des Lindenauer-Hafens weiter an Attraktivität gewonnen.
Mit dem PKW und dem öffentlichen Nahverkehr sind Sie schnell in der Leipziger Innenstadt sowie stadtauswärts über die Autobahnanschlussstellen A9 ideal angebunden.
Profitieren Sie von einer repräsentativen und zentralen Geschäftsadresse für Ihr Unternehmen.
Weitere Informationen
Sonstiges
Für ergänzende Informationen zum Objekt und ein persönliches Beratungsgespräch stehen wir Ihnen gern telefonisch zur Verfügung.
Gern können Sie sich über weitere Angebote im Großraum Leipzig auch unter www.focus-makler.de informieren.
Wir freuen uns auf Sie.
Stichworte
Tiefgarage vorhanden, Stellplatz vorhanden, Ladenfläche: 277,47 m²
Sonstiges: EDV-Verkabelung