

Immofuchs - Ihr Makler vor Ort Christian Schmidt
Herr Christian Schmidt
037 ···
Nr. anzeigenPreise & Kosten
zzgl. Nebenkosten
Kaution
600
Provision für Mieter
provisionsfrei
Warum sehe ich diese Anzeige? – Du siehst diese Anzeige basierend auf Ihrer Navigation auf unserer Website und den Suchkriterien, die du verwendet hast.
Lage
Das Objekt befindet sich nordwestlich vom Chemnitzer Stadtzentrum. Der Stadtteil Kaßberg ist durch Altbausubstanz, die zum Teil aus der Gründerzeit stammt, geprägt. In einer ruhigen Anliegerstraße liegt das Mehrfamilienhaus. In der näheren Umgebung befinden sich das Naherholungsgebiet Küchwaldpark, das Schloss Chemnitz mit...
Büro-/Praxisfläche
Kategorie
Bürofläche
Baujahr
1908
Bezug
01.01.2026
Derzeitige Nutzung
frei
Geschoss
Erdgeschoss
Energie & Heizung
Warum sehe ich diese Anzeige? – Du siehst diese Anzeige basierend auf Ihrer Navigation auf unserer Website und den Suchkriterien, die du verwendet hast.
Energieausweis: für diesen Gebäudetyp nicht notwendig
Weitere Energiedaten
Energieträger
Fernwärme
Heizungsart
Fußbodenheizung
Details
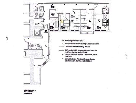
Objektbeschreibung
Diese Büroetage befindet sich im Souterrain eines sanierten Altbaus in guter und zentraler Lage auf dem Kaßberg. Die Büroräume sind im 1. Quartal 2023 neu saniert wurden und modern ausgestattet. Auf der Büroetage befinden sich fünf Büroräume zwischen 10-25 m² mit Gemeinschaftstoiletten sowie einer Teeküche zur...
Ausstattung
- Fußbodenheizung
- moderne Bodenfliesen
- Teeküche zur gemeinschaftlichen Nutzung
- Gemeinschaftstoiletten
- Außenjalousien
- Fahrstuhl
Weitere Informationen
Sonstiges
Der angegebene Mietpreis ist ein Netto-Preis, hierzu kommt noch die MwSt. Im Nettomietpreis sind enthalten: Betriebs-Heiz und Stromkosten, Internet und Bürogrundreinigung.
Stichworte
Zustand: saniert, gepflegt
Serviceleistungen: Hausmeister
Sonstiges: EDV-Arbeitsplatzbeleuchtung...
Anbieter der Immobilie

Online-ID: 2mybe5n
Finde Angebote wie dieses
Hier geht es zu unserem Impressum, den Allgemeinen Geschäftsbedingungen, den Hinweisen zum Datenschutz und nutzungsbasierter Online-Werbung.