Version: 8.24.0Navigation überspringen
465.000 €
4 Zimmer  •  113,8 m²  •  1. Geschoss
Immowelt logo

Wohnung zum Kauf
465000 €
4.086 €/m²
4 Zimmer  •  113,8 m²  •  1. Geschoss

Preußisches Viertel: Helle 4-Zimmer Wohnung im ersten Obergeschoss mit Balkon und Lift

Attraktive Wohnung mit 4 Zimmern und Südostbalkon im ersten Obergeschoss
- Sehr gute Wohnlage nahe dem Elbufer

Die sehr gepflegte, lichtdurchflutete 4-Zimmer Wohnung liegt im 1. Obergeschoss eines soliden Wohnhauses mit Lift im begehrten Dresdner Preußischen Viertel. Das Elbufer und der Elbradweg sind fußläufig in wenigen Minuten gut erreichbar.

Die exponierte Lage bietet somit ideale Voraussetzungen zum Joggen, Radfahren oder Flanieren am traumhaft schönen Elbufer, mit Blick auf die beeindruckenden Dresdner Sehenswürdigkeiten.

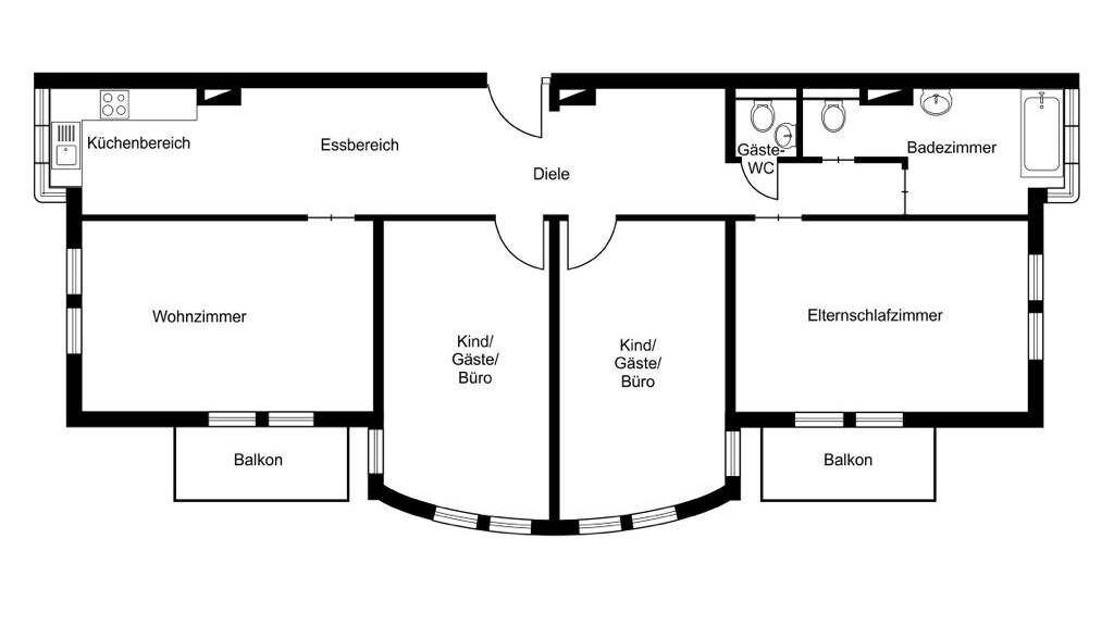
Die mit einer Fußbodenheizung ausgestattete Wohnung umfasst auf einer Wohnfläche von ca. 113,8 m² drei geräumige Schlafzimmer, eine offene Küche mit Essbereich, ein lichtdurchflutetes Badezimmer mit Wanne, Dusche, Waschmaschinenanschluss und WC, sowie ein separates Gäste-WC.

Zum Süden hin verfügt die Wohnung über zwei großzügige Balkone. Diese sind sowohl vom Wohn-, als auch vom Elternschlafzimmer aus zu begehen und werden in den Sommermonaten zum Mittelpunkt der Wohnung.

Hinzu kommt eine offene Küche mit vorgelagertem Essbereich zur Diele und ein eigenes Kellerabteil. Alle Räume sind von der Diele aus separat zu begehen (keine Durchgangszimmer). Die beiden Einzelstellplätze in der Tiefgarage runden das Angebot gelungen ab.

Das im Jahre 1996 in massiver Bauweise errichtete Wohnhaus ist gepflegt und wurde laufend modernisiert. Es beinhaltet 10 Wohneinheiten und eine Tiefgarage mit 12 Einzelstellplätzen. In den Jahren 2020/21 wurde eine umfangreiche Fassadensanierung für ca. 65.000,-- ausgeführt.

Der sehr gute Schnitt der Wohnung bietet beste Voraussetzungen für eine optimale Nutzung für Paare und kleine Familien.

Die Wohnung ist seit dem Jahre 2015 für 1.415,-- (Bruttomiete) unbefristet vermietet. Das Hausgeld beträgt 655,-- pro Monat.

Eine in dieser Kombination absolut interessante Gelegenheit im Wohnungsmarkt von Dresden.

Merkmale

  • 1. Geschoss
  • Kelleranteil
  • 2 Stellplätze: 2 Tiefgaragenstellplätze
  • Gäste-WC
  • Balkon
  • Garten
Die wichtigsten Merkmale im Überblick:

- 4 Zimmer
- Fußbodenheizung
- Ca. 113,8 m² Wohnfläche im ersten Obergeschoss
- Zwei sonnige Balkone
- Personenaufzug
- Kaufpreis für zwei Stellplätze in der Tiefgarage 30.000,--
- Kellerabteil
- Elbufer ist fußläufig in wenigen Minuten erreichbar
- Gepflegtes, massiv errichtetes Haus aus dem Jahre 1996
- Umfangreiche Sanierung der Fassaden im Jahre 2020/21 für ca. 65.000,--
- Unbefristetes Mietverhältnis aus 2015
- Bruttomiete = 1.415,-- monatlich (inklusive 95 für zwei TG-Stellplätze)
- Hausgeld = 655,--

Realisiere Dein Projekt

Bausubstanz und Energie

Energieausweis

D
  • Baujahr1996
  • HeizungsartZentralheizung: Fußbodenheizung
  • EnergieträgerGas
Immowelt logo

Preisdetails

Kaufpreis
465000 €
4.086,12 €/m²
Preis pro Stellplatz
15000 €
Hausgeld
655 €
Provision für Käufer
1,79% inklusive 19% Umsatzsteuer
Das Angebot ist provisionspflichtig. Mit Abschluss des notariellen Kaufvertrages werden je 1,79% inkl. 19% Umsatzsteuer fällig.
Weitere Preisinformationen
2 Tiefgaragenstellplätze, Kaufpreis je: 15.000,00 EUR
Geschätzte Gesamtkosten
508.199 €1
Kaufpreis
465.000 €
Notarkosten (1,5%)
6.975 €
Grunderwerbsteuer (5,5%)
25.575 €
Provision für Käufer (1,79%)
8.324 €
Grundbucheintrag (0,5%)
2.325 €
1Der angezeigte Wert ist eine automatisch berechnete Schätzung von immowelt.
2Bei den Angaben handelt es sich um ortsübliche Werte. Individuelle Kosten können abweichen.

Lage

address-icon
Radeberger VorstadtDresden (01099)
Der Anbieter hat die genaue Adresse nicht freigegeben
Leben in der Dresdener Neustadt

Die sächsische Landeshauptstadt Dresden zählt mit ihren ca. 570.000 Einwohnern zu den mittlerweile wichtigsten deutschen Metropolen in den Bereichen der Halbleiter-Herstellung ("Silicon Saxonia") und der Kultur. Der renommierte Messestandort ist Anziehungspunkt für eine Vielzahl nationaler und zunehmend auch internationaler Unternehmen.

Der Stadtteil Neustadt mit seinem Preußischen Viertel ist eine der attraktivsten und begehrtesten Adressen von Dresden.

Sie sind in nur wenigen Minuten an der Elbe und können auf den wunderschönen Elbwiesen joggen, oder entspannt in die Altstadt flanieren. Auch der Bahnhof Neustadt und andere zentrale Orte in der Innenstadt sind ganz in der Nähe dieses ansprechenden Viertels.

Es stellt sich allerdings die Frage, ob man die Neustadt überhaupt zwingend verlassen muss. Eine spannende Mischung aus Kneipenkultur, exklusiven Restaurants sowie einer modernen gastronomischen Vielfalt prägen die benachbarten Straßen rund um das Preußische Viertel.

Auch zum Shopping finden Sie in den belebten Straßen beste Bedingungen, mit einem ganz besonderen Dresdner Einkaufsflair.

Sie erleben in diesem Viertel pulsierendes Leben, Komfort und Ruhe zur Entspannung.

Die hervorragende Infrastruktur der Dresdner Neustadt erstreckt sich auf alle Bereiche des täglichen Lebens. Renommierte Schulen befinden sich in der direkten Nachbarschaft.

Auch die Verkehrsanbindung, sei es mit dem Auto oder den öffentlichen Verkehrsmitteln, ist ein absoluter Pluspunkt. Die Haltestelle der Straßenbahn ist nur ein paar Schritte vom Haus und vier Stationen vom Bahnhof Neustadt entfernt. Der internationale Flughafen Dresden ist in knapp 15 Minuten mit dem PKW erreichbar. Ebenso die wichtigsten Autobahnen in alle Richtungen.

Fazit: Eine wunderschöne Wohnung im Herzen der Dresdner Neustadt

Weitere Informationen

Stichworte Tiefgarage vorhanden, Süd-West-Balkon/Terrasse, Anzahl der Schlafzimmer: 3, Anzahl der Badezimmer: 1, Anzahl der separaten WCs: 1, Anzahl Balkone: 2, 3 Etagen

Weitere Services

Lust auf eine Besichtigung?
Eine Frage zur Immobilie?
Nachricht hinzufügen
Mit der Nutzung der oben angegebenen Telefonnummer oder durch Klicken auf „Kontaktieren“ akzeptierst Du die Allgemeinen Nutzungsbedingungen, denen Du jederzeit widersprechen kannst. Weitere Informationen zum Datenschutz

Über den Anbieter

Hirtenweg 6, 82031 Grünwald
partner badge
Partnerschaft
Herr Michael Kneissl
Herr Michael KneisslDein Kontakt
Online-ID: 2eb3y5x
Referenznummer: 7356
DALEXIS ImmobilienService GmbH
title
DALEXIS ImmobilienService GmbH
Bewertung: 4,2 von 5 Sternen
Nachricht hinzufügen
Mit der Nutzung der oben angegebenen Telefonnummer oder durch Klicken auf „Kontaktieren“ akzeptierst Du die Allgemeinen Nutzungsbedingungen, denen Du jederzeit widersprechen kannst. Weitere Informationen zum Datenschutz
Wie zufrieden bist du mit dieser Seite (nicht mit der Immobilie selbst)?