Version: 8.25.1Navigation überspringen
10,50 €
600 m² Bürofläche  •  teilbar ab 226 m²
Immowelt logo

Bürofläche zur Miete • provisionsfrei
10,50 €
/m²
600 m² Bürofläche  •  teilbar ab 226 m²

antaris Immobilien GmbH ** Attraktive Büroflächen in Erfurt Binderleben **

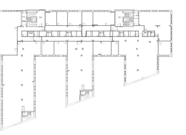
Ab sofort steht eine moderne, ca. 226,00 m² große Büroeinheit im 4. OG zur Vermietung. Die Einheit unterteilt sich in 7 Büros, Lagerräume, eine Miniküche mit Anschlussmöglichkeit und getrennte Sanitärbereiche. Aktuell ist die Fläche mit einem Teppichboden ausgestattet.

Mitte 2025 werden weitere Flächen im Haus verfügbar. Diese befinden sich im 1. und 2. Obergeschoss. Die Flächen messen jeweils ca. 1.400 m² und erstrecken sich jeweils über die gesamte Ebene. Alle Etagen können gemeinschaftlich oder einzeln angemietet werden.

In die Einheiten gelangen Sie über das ansprechende Treppenhaus, welches über einen Personenaufzug verfügt. Die Fläche ist somit barrierefrei zu erreichen. Generell ist der Eigentümer bereit die Fläche individuell nach Mieterwunsch herzurichten, d.h. der Innenausbau der Mietfläche erfolgt nach Absprache mit dem Mieter. PKW-Parkplätze können in der Tiefgarage angemietet werden.


Energieausweis vorhanden: ja
Energiekennwert: 192,5 kWh(m²-a)
Endenergieverbrauch Wärme: 127 kWh(m²-a)
Endenergieverbrauch Strom: 28 kWh(m²-a)
Energieträger: Erdgas schwer, Strom
Ausstelldatum: 08.11.2023
Art des Energieausweises: Bedarf
Baujahr technische Anlage: 1995

Grundrisse

Grundrisse
1 / 1

Realisiere Dein Projekt

Bausubstanz und Energie

Energieausweis

Endenergiebedarf (Wärme)

Endenergiebedarf (Strom)

  • Baujahr1995-1996
  • Zustand der ImmobilieGepflegt
Immowelt logo

Mietkosten

Monatliche Miete
10,50 €/m²
Provision für Mieter
provisionsfrei; mieterprovisionsfrei
Kaution
keine Angabe

Lage

address-icon
BinderslebenErfurt (99092)
Der Anbieter hat die genaue Adresse nicht freigegeben
Der Bürokomplex befindet sich an einem bedeutenden Standort von Erfurt, im Zentrum des Büropark "Airfurt". Die sehr gute Verkehrsanbindung macht diese Lage in Erfurt-Bindersleben zu einer besonders interessanten. Unmittelbar neben dem Büropark befindet sich der Flughafen Erfurt-Weimar. Über die Bundesautobahn 71 ist in kürzester Zeit die Autobahn 4 erreichbar. Die Straßenbahn- und Bushaltestelle sowie eine öffentliche Kantine und ein kleiner Imbiss befinden sich in unmittelbarer Nähe.

Das Gebäude wurde in den Jahren 1995/1996 erbaut und entspricht den modernen Anforderungen eines kommunikativen, flexiblen Bürohauses. In unmittelbarer Nachbarschaft ist der Leerstand durch die Ansiedlung namhafter Firmen in den letzten Jahren enorm gesunken.

Weitere Informationen

Sonstiges Widerrufsrecht
Sie können Ihre Vertragserklärung innerhalb von 14 Tagen ohne Angaben von Gründen in Textform (z.B. Brief, E-Mail) widerrufen. Die Frist beginnt nach Erhalt dieser Belehrung in Textform, jedoch nicht vor Vertragsabschluss und auch nicht vor Erfüllung unserer Informationspflichten gem. Art. 246 § 2 i.V.m. § 1 Abs. 1 und 2 EGBGB. Zur Wahrung der Widerrufsfrist genügt die rechtzeitige Absendung des Widerrufs. Im Falle eines wirksamen Widerrufs sind die beiderseits empfangener Leistungen zurück zu gewähren und ggf. bezogene Nutzungen (z.B. Zinsen) herauszugeben. Können Sie uns die empfangenen Leistungen sowie Nutzungen (z.B. Gebrauchsvorteile) nicht oder teilweise nicht oder nur in verschlechtertem Zustand zurückgewähren bzw. herausgeben, müssen Sie uns insoweit Wertersatz leisten. Dies kann dazu führen, dass Sie die vertraglichen Zahlungsverpflichtungen für den Zeitraum bis zum Widerruf gleichwohl erfüllen müssen. Verpflichtungen zur Erstattung von Zahlungen müssen innerhalb von 30 Tagen erfüllt werden.
Die Frist beginnt für Sie mit der Absendung Ihrer Widerrufserklärung, für uns mit deren Empfang. Das Widerrufsrecht erlischt vorzeitig, wenn der Vertrag von beiden Seiten auf Ihren ausdrücklichen Wunsch vollständig erfüllt ist, bevor Sie Ihr Widerrufsrecht ausgeübt haben.

Weitere Angebote finden Sie unter www.antaris-immobilien.de!

Weitere Services

Lust auf eine Besichtigung?
Eine Frage zur Immobilie?
Mit einer persönlichen Nachricht hast du bessere Chancen auf eine Antwort.
Mit der Nutzung der oben angegebenen Telefonnummer oder durch Klicken auf „Kontaktieren“ akzeptierst Du die Allgemeinen Nutzungsbedingungen, denen Du jederzeit widersprechen kannst. Weitere Informationen zum Datenschutz

Über den Anbieter

Juri-Gagarin-Ring 96-98, 99084 Erfurt
partner badge
6 Jahre Partnerschaft
Frau Sandy ThorwirthDein Kontakt
Online-ID: 241TVLHSZN9Y
Referenznummer: VMB47/G1/Eh2
Antaris Immobilien GmbH
Antaris Immobilien GmbH
Bewertung: 4,1 von 5 Sternen
Mit einer persönlichen Nachricht hast du bessere Chancen auf eine Antwort.
Mit der Nutzung der oben angegebenen Telefonnummer oder durch Klicken auf „Kontaktieren“ akzeptierst Du die Allgemeinen Nutzungsbedingungen, denen Du jederzeit widersprechen kannst. Weitere Informationen zum Datenschutz
Wie zufrieden bist du mit dieser Seite (nicht mit der Immobilie selbst)?