




Reihenmittelhaus zum Kauf398000 €3.569 €/m²4 Zimmer • 111,5 m² • 930 m² Grundstück
398000 €
3.569 €/m²
4 Zimmer • 111,5 m² • 930 m² Grundstück
Charmantes Reihenhaus mit Terrasse, Balkon, Garage - familienfreundlich wohnen in Sinzheim-Kartung
Merkmale
- 930 m² Grundstück
- Einbauküche
- Kelleranteil
- 2 Stellplätze: Garage, Außen-Stellplatz
- Balkon
- Terrasse
- Badezimmer: Badewanne, Bad mit Dusche
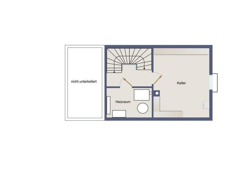
Grundrisse
Grundrisse
1 / 4
Realisiere Dein Projekt
Bausubstanz und Energie
Energieausweis
E
- Baujahr1994
- Zustand der ImmobilieGepflegt
- HeizungsartZentralheizung
- EnergieträgerGas
Preisdetails
Kaufpreis
398000 €
3.569,19 €/m²
Provision für Käufer
3,57 % inkl. MwSt.
Käuferprovision inkl. 19 % MwSt.
Käuferprovision inkl. 19 % MwSt.
Weitere Preisinformationen
1 Stellplatz
1 Garagenstellplatz
1 Garagenstellplatz
Geschätzte Gesamtkosten
440.069 €1
Kaufpreis
398.000 €
Kaufnebenkosten
42.069 €
2Notarkosten (1,5%)
5.970 €
Grunderwerbsteuer (5%)
19.900 €
Provision für Käufer (3,57%)
14.209 €
Grundbucheintrag (0,5%)
1.990 €
1Der angezeigte Wert ist eine automatisch berechnete Schätzung von immowelt.
2Bei den Angaben handelt es sich um ortsübliche Werte. Individuelle Kosten können abweichen.
Lage

Ortsgebiet, Sinzheim / Kartung (76547)
Der Anbieter hat die genaue Adresse nicht freigegeben
Weitere Informationen
Weitere Services
Lust auf eine Besichtigung?
Eine Frage zur Immobilie?
Über den Anbieter
Volksbank pur Immobilien GmbH & Co. KGMaklerbüro
Karl-Friedrich-Straße 22, 76133 Karlsruhe
6 Jahre Partnerschaft

Herr Rudolf HinkelDein Kontakt
Online-ID: 2nwfq5f
Referenznummer: 105809
Wie zufrieden bist du mit dieser Seite (nicht mit der Immobilie selbst)?




