Version: 8.25.1Navigation überspringen
4,88 €
12 Zimmer  •  337,9 m² Verkaufsfläche
Immowelt logo

Laden zur Miete
4,88 €
/m²
12 Zimmer  •  337,9 m² Verkaufsfläche

Großzügige Gewerbeeinheit in verkehrsgünstiger Lage

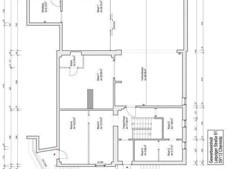
Gesamtfläche: ca. 337,88 m²
davon ca:
Verkaufsraum 115,23 m²
Büro 54,89 m²
Lager 23,56 m²
Küche 3,75 m²
Flur 24,31 m²
WC 14,68 m²

Merkmale

  • Bezug: sofort
  • Erdgeschoss
  • Bodenbelag: Fliesen, Laminat, Teppich
- Baujahr 1991, 2020 komplettsaniert
- renovierungsbedürftig
- Zugang: separat sowie über Treppenhaus und Rampe mit jeweils 7 Stufen
- Werbemöglichkeiten nach Abstimmung
- Schaufenster: 4 Stück je dreigeteilt jeweils ca. 2,30 m Breite
- Anschlüsse: Telekommunikation, Glasfaserdose
- Bodenbelag: Laminat, Textilbelag, Fliesen
- Wandbelag: Raufasertapete, Putz, Fliesen
- Decke: Rasterdecke und Putz mit Beleuchtung
- Fenster: Aluminium, Kunststoff, Holz, iso- bzw. doppeltverglasst
- Personal-WC m/w

Grundrisse

Grundrisse
1 / 1

Realisiere Dein Projekt

Bausubstanz und Energie

Energieausweis

Endenergieverbrauch (Wärme)

  • Baujahr1991
  • EnergieträgerFernwärme
Immowelt logo

Mietkosten

Warmmiete
2.130 €
Nettomiete
4,88 €/m²
1.650 €
Nebenkosten
300 €
Heizkosten
180 €
Provision für Mieter
Bitte beachte, das Angebot kann bei Vertragsabschluss die Zahlung einer Provision beinhalten. Weitere Informationen erhältst Du vom Anbieter.
Kaution
4950 €

Lage

address-icon
Leipziger Str. 51SchloßchemnitzChemnitz (09113)
Diese Gewerbeeinheit befindet sich unmittelbar an der Verkehrsmagistrale und am Autobahnzubringer Leipziger Straße in den Luisenhöfen, eingebettet in urbane, karreeartige Wohnbebauung.

Diverse Handels- und Dienstleitungseinrichtungen sind in direkter Nachbarschaft angesiedelt, wie auch der Küchwald, der Schlossteich sowie das städtische Küchwaldklinikum unweit erreichbar sind.

Anschlussmöglichkeiten an den ÖPNV sowie Parkplätze befinden sich in fußläufiger Nähe.

Weitere Informationen

Stichworte Wohnungsnr.: 10.11151.1.501, Zustand nach Vereinbarung

Weitere Services

Lust auf eine Besichtigung?
Eine Frage zur Immobilie?
Mit einer persönlichen Nachricht hast du bessere Chancen auf eine Antwort.
Mit der Nutzung der oben angegebenen Telefonnummer oder durch Klicken auf „Kontaktieren“ akzeptierst Du die Allgemeinen Nutzungsbedingungen, denen Du jederzeit widersprechen kannst. Weitere Informationen zum Datenschutz

Über den Anbieter

Clausstr. 10 /12, 09126 Chemnitz
partner badge
6 Jahre Partnerschaft
Firma GGG - Wohnen in ChemnitzDein Kontakt

Weitere Unterlagen

Online-ID: 23V3KP294CFY
Referenznummer: 10.11151.1.501
GGG - Wohnen in Chemnitz
GGG - Wohnen in Chemnitz
Bewertung: 4,3 von 5 Sternen
Mit einer persönlichen Nachricht hast du bessere Chancen auf eine Antwort.
Mit der Nutzung der oben angegebenen Telefonnummer oder durch Klicken auf „Kontaktieren“ akzeptierst Du die Allgemeinen Nutzungsbedingungen, denen Du jederzeit widersprechen kannst. Weitere Informationen zum Datenschutz
Wie zufrieden bist du mit dieser Seite (nicht mit der Immobilie selbst)?