Version: 8.24.0Navigation überspringen
13,50 €
435 m² Verkaufsfläche
Immowelt logo

Ausstellungsfläche zur Miete - Erstbezug • provisionsfrei
13,50 €
/m²
435 m² Verkaufsfläche

Top-Gewerbefläche am Mainzer Hbf - 435 m² für Büro, Retail oder Gastronomie

In prominenter Lage direkt am Mainzer Hauptbahnhof steht im Objekt Station West eine ca. 435 m² große Gewerbefläche im Erdgeschoss zur Vermietung.

Die Fläche befindet sich in einem veredelten Rohbau und bietet damit maximale Flexibilität für individuelle Ausbau- und Nutzungskonzepte.

Die Einheit eignet sich ideal für Büro-, Einzelhandels- oder gastronomische Nutzungen und überzeugt durch ihre gute Sichtbarkeit, großzügige Grundrissstruktur sowie eine repräsentative Adressbildung.

Merkmale

  • Bezug: ab sofort
  • Raumaufteilung flexibel
  • Beleuchtung: Deckenbeleuchtung
  • Fenster: Sonnenschutz

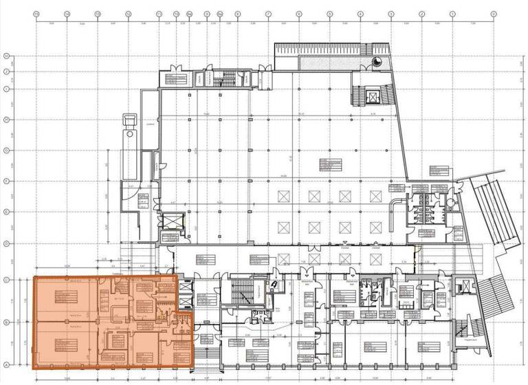
Grundrisse

Grundrisse
1 / 1

Realisiere Dein Projekt

Bausubstanz und Energie

Energieausweis

Endenergieverbrauch (Wärme)

Endenergieverbrauch (Strom)

  • Zustand der ImmobilieNeubau, Erstbezug
Immowelt logo

Mietkosten

Monatliche Miete
13,50 €/m²
Nebenkosten
3 €
Provision für Mieter
provisionsfrei
Kaution
keine Angabe

Lage

address-icon
Hartenberg/MünchfeldMainz (55122)
Der Anbieter hat die genaue Adresse nicht freigegeben
Die Liegenschaft befindet sich in absoluter Innenstadtlage von Mainz, unmittelbar am Hauptbahnhof (fußläufig ca. 2 Minuten). Die Binger Straße ist eine der zentralen Verkehrsachsen der Stadt und garantiert sowohl eine hohe Passantenfrequenz als auch eine exzellente verkehrliche Anbindung.

Der Standort profitiert von:
- direktem Anschluss an den ÖPNV (Bahn, Bus, Straßenbahn),
- schneller Erreichbarkeit der Autobahn A60 (ca. 10 Minuten),
- einem urbanen Umfeld aus Universität, Klinik, Büro- und Wohnnutzungen,
- vielfältiger Gastronomie und Nahversorgung in unmittelbarer Umgebung.

Damit bietet die Lage ideale Voraussetzungen für nutzerorientierte Konzepte mit hoher Sichtbarkeit und nachhaltiger Frequenz.

Weitere Informationen

Sonstiges Die Mietpreise sowie auch die Angaben der Nebenkostenvorauszahlungen verstehen sich monatlich pro Quadratmeter zuzüglich der gesetzlichen Mehrwertsteuer.

Irrtum und Zwischenvermietung bzw. -verkauf sind vorbehalten. Für die Richtigkeit und Vollständigkeit der Angaben übernehmen wir keine Haftung.

Bei weiteren Fragen oder zur Vereinbarung eines individuellen Besichtigungstermins können Sie uns gerne telefonisch unter 069 - 173 269 390 oder per E-Mail unter info@vvimmobilien.com kontaktieren. Stichworte Gesamtfläche: 435,00 m², Distanz zum Bus: 1, Distanz zum Hauptbahnhof: 1, Distanz zur Autobahn: 8 Sonstiges: Getrennte Damen- und Herren-WCs

Weitere Services

Lust auf eine Besichtigung?
Eine Frage zur Immobilie?
Nachricht hinzufügen
Mit der Nutzung der oben angegebenen Telefonnummer oder durch Klicken auf „Kontaktieren“ akzeptierst Du die Allgemeinen Nutzungsbedingungen, denen Du jederzeit widersprechen kannst. Weitere Informationen zum Datenschutz

Über den Anbieter

Lange Straße 59, 60311 Frankfurt am Main
partner badge
Partnerschaft
Herr Dean VukovicDein Kontakt
Online-ID: 2n49r5f
Referenznummer: 2734
V&V Immobilien GmbH
V&V Immobilien GmbH
Bewertung: 5 von 5 Sternen
Nachricht hinzufügen
Mit der Nutzung der oben angegebenen Telefonnummer oder durch Klicken auf „Kontaktieren“ akzeptierst Du die Allgemeinen Nutzungsbedingungen, denen Du jederzeit widersprechen kannst. Weitere Informationen zum Datenschutz
Wie zufrieden bist du mit dieser Seite (nicht mit der Immobilie selbst)?