Investieren, erweitern, profitieren - Gewerbeareal mit Lkw-Stellplätzen und Unterkunftsmöglichkeiten
Mitten im Chemiepark Bitterfeld-Wolfen, im Ortsteil Greppin, steht dieses außergewöhnliche Gewerbeareal zum Verkauf. Auf einer Gesamtfläche von rund 27.430 m² eröffnet es vielfältige Möglichkeiten - sei es als Logistikstandort, Unterkunft für Mitarbeiter oder Fahrer, oder als Investitionsfläche mit Entwicklungspotenzial. Das gesamte Gelände ist vollständig erschlossen, eingezäunt, beleuchtet und videoüberwacht und überzeugt durch seine zentrale Lage mit sehr guter Anbindung an die Hauptverkehrsstraßen und die Autobahn.
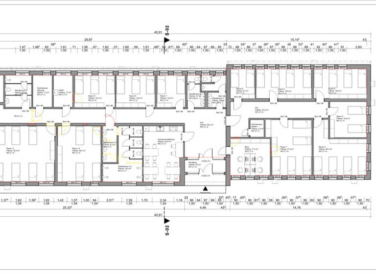
Herzstück ist das bestehende Gebäude, das bereits heute ideale Voraussetzungen für die Nutzung als Büro oder Unterkunft bietet. Rund 18 Zimmer sind fertiggestellt und solide ausgestattet, insgesamt können bis zu 30 Zimmer entstehen. Alle Räume verfügen über eine Klimaanlage und Rollläden. Zudem stehen Gemeinschaftsbäder, separate Duschen, eine voll ausgestattete Küche sowie ein Waschmaschinenraum bereit. Beheizt wird das Gebäude über eine moderne Luft-Luft-Wärmepumpe. Den gesamten Strombedarf des Gebäudes deckt dabei eine leistungsstarke Photovoltaikanlage mit 40-kW-Speicher, sodass eine zukunftsorientierte und energieeffiziente Versorgung gewährleistet ist.
Das Areal selbst teilt sich in drei unterschiedliche Bereiche: eine 7.637 m² große Grünfläche mit viel Potenzial, eine 4.886 m² große Fläche mit Bestandsgebäude und eine 14.907 m² große befestigte Fläche, die als Lkw-Parkplatz für rund 30 Fahrzeuge genutzt werden kann. Damit eignet sich das Grundstück besonders für Transportunternehmen, die Wert auf ausreichend Stellflächen und Erweiterungsmöglichkeiten legen.
Insgesamt präsentiert sich dieses Gewerbeobjekt als vielseitige und zukunftsorientierte Immobilie mit einer Kombination aus sofort nutzbarer Infrastruktur und großem Entwicklungspotenzial. Wer eine solide Basis in einem etablierten Industrie- und Gewerbegebiet sucht und gleichzeitig flexibel für zukünftige Entwicklungen bleiben möchte, sollte sich diese Gelegenheit nicht entgehen lassen.
Merkmale
Kein Keller
Gesamtfläche: ca. 27.430 m² teilbar in 3 Einheiten: - 7.637 m² Grünfläche (Entwicklungspotenzial) - 4.886 m² mit Bestandsgebäude - 14.907 m² befestigte Fläche (u. a. Lkw-Parkplatz für ca. 30 Fahrzeuge)
Gebäude: - derzeit ca. 18 fertiggestellte Zimmer (bis zu 30 möglich) - alle Räume klimatisiert & mit Rollläden - Gemeinschaftsbäder & separate Duschen - voll ausgestattete Küche - Waschmaschinenraum - auch Büroflächen nutzbar
Energieversorgung: - Heizung über moderne Luft-Luft-Wärmepumpe - Photovoltaikanlage mit 40-kW-Speicher ? deckt den gesamten Strombedarf des Gebäudes
Außenbereich: - befestigte und begrünte Flächen - Parkplätze für ca. 30 Lkw - großzügiges Erweiterungspotenzial
Sicherheit & Erschließung: - Gelände eingezäunt, beleuchtet, überwacht - Zugang über Tor und Pforte mit Online-System (Chipkarten)
Lage: - im Chemiepark Bitterfeld-Wolfen (OT Greppin) - sehr gute Anbindung an Hauptverkehrsstraßen & Autobahn
Nutzungspotenzial: - ideal für Transportunternehmen, Logistik, Industrie oder Lagerflächen - flexible Nutzung & Erweiterung möglich
Grundrisse
Grundrisse
1 / 1
Realisiere Dein Projekt
Bausubstanz und Energie
Möchtest du Details zum Energieverbrauch?
Zustand der ImmobilieMassivhaus
Preisdetails
Kaufpreis
950000 €950.000 €
Provision für Käufer
6,9 % vom Kaufpreis inkl. gesetzl. MwSt. inkl. MwSt. Mit Notarvertrag wird eine Käuferprovision in Höhe von 6,9 % vom Kaufpreis inkl. MwSt. fällig.
Geschätzte Gesamtkosten
1.015.550 €1
Kaufpreis
950.000 €
Kaufnebenkosten
65.550 €
2
Provision für Käufer (6,9%)
65.550 €
1Der angezeigte Wert ist eine automatisch berechnete Schätzung von immowelt.
2Bei den Angaben handelt es sich um ortsübliche Werte. Individuelle Kosten können abweichen.
Lage
Greppin, Bitterfeld-Wolfen (06803)
Der Anbieter hat die genaue Adresse nicht freigegeben
Verkehrsanbindungen:
Bundesstraße B 184: Direktanschluss Autobahn: A9 8 km ; A14 30 km Flughafen Leipzig-Halle: 35 km Gleisanschluss: 2 km Hafen Aken: 30 km Dessau-Roßlau: 25 km Halle: 30 km Leipzig: 50 km
Verschiedene Standortvorteile zusammengefasst:
- hervorragende industrielle Infrastruktur - intakte Cluster für chemische Industrie und regenerative Energie - sehr gut ausgebaute Verkehrsinfrastruktur und exzellente Lage - traditionsreicher Industriestandort mit Wachstumsperspektive - lebenswertes Wohnumfeld mit facettenreichen Freizeitmöglichkeiten
Weitere Informationen
Sonstiges
Die Angaben zu dieser Immobilie beruhen auf Aussagen und Unterlagen des Eigentümers. Der Makler übernimmt für die Richtigkeit dieser Angaben keine Haftung.
Bei den im Exposé dargestellten Grundrissen handelt es sich ausdrücklich um Grundrissskizzen, die lediglich dem Verständnis der Raumaufteilung dienen sollen. Für angegebene Maße o.a. übernimmt der Makler keine Haftung. Diese sind vom Kaufinteressenten bei Bedarf selbst aufzunehmen.
Stichworte
Nutzfläche: 540,00 m², vermietbare Fläche: 471,00 m², Bundesland: Sachsen-Anhalt, Distanz zum Hauptbahnhof: 1.00, Distanz zur Autobahn: 6.00