Version: 8.24.0Navigation überspringen
8.600.000 €
13.500 m² Lagerfläche
Immowelt logo

Lagerhalle zum Kauf • provisionsfrei
8600000 €
13.500 m² Lagerfläche

Exzellenz in Funktion und Form - die Basis für Ihren nächsten Schritt

Willkommen in einem zukunftsorientierten Verwaltungs- und Produktionsgebäude, das jungen Unternehmen, Start-ups und innovativen Mittelständlern ideale Entfaltungsmöglichkeiten bietet.

Auf insgesamt rund 13.500 m² Nutzfläche - davon ca. 4.200 m² Büro- und Verwaltungsflächen sowie ca. 9.300 m² Produktions- und Werkstattflächen - finden Sie hier Raum für Wachstum, Entwicklung und kreative Ideen.

Die Gebäude wurden zwischen 2000 und 2007 in drei Baueinheiten errichtet und überzeugen durch ihre moderne, funktionale Architektur und hochwertige, zeitgemäße Ausstattung. Große Teile der Verwaltungs- und Produktionsflächen sind klimatisiert, was ein angenehmes, konstantes Arbeitsumfeld und höchste Effizienz gewährleistet.

Die gesamte Immobilie ist mit modernster Kommunikations- und Netzwerktechnik ausgestattet und lässt sich dank flexibler Raumaufteilung optimal an individuelle Team- und Organisationsstrukturen anpassen - ganz gleich, ob für offene Kreativräume, konzentrierte Arbeitszonen oder repräsentative Meeting- und Veranstaltungsbereiche.

Eine individuelle Aufteilung der Flächen, zugeschnitten auf Ihre betrieblichen Anforderungen - sowohl im Produktions- als auch im Verwaltungsbereich - ist problemlos möglich.

Die hellen Produktionshallen bieten ausreichende Deckenhöhen, eine hohe Bodenbelastbarkeit und sind teilweise mit Kranbahnen ausgestattet, um schwere Lasten mühelos zu bewegen. Anschlussmöglichkeiten für Maschinenkühlung sind in Teilbereichen vorhanden. Die Produktionsbereiche verfügen über separate Zugänge, eigene Personal- und Sanitärbereiche sowie große Tore für Be- und Entladung.

Auch die Produktions- und Verwaltungsflächen im Obergeschoss sind funktional miteinander verbunden und über separate Zugänge und Aufzüge gut erreichbar. Sie können bei Bedarf flexibel getrennt werden - ideal für Unternehmen, die Wert auf Anpassungsfähigkeit und Zukunftssicherheit legen.

Auf dem Gelände stehen zudem 26 Stellplätze zur Verfügung.

Merkmale

  • 8.280 m² Grundstück

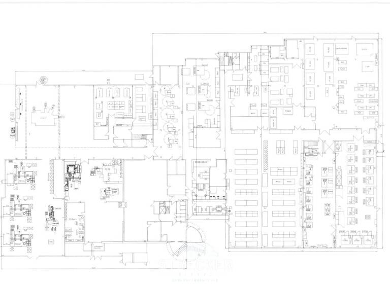
Grundrisse

Grundrisse
1 / 3

Realisiere Dein Projekt

Bausubstanz und Energie

Der Anbieter hat keine Informationen zu Energieverbrauch oder Zustand der Immobilie bereit gestellt.
Immowelt logo

Preisdetails

Kaufpreis
8600000 €
Provision für Käufer
provisionsfrei
Geschätzte Gesamtkosten
8.600.000 €1
Kaufpreis
8.600.000 €
1Der angezeigte Wert ist eine automatisch berechnete Schätzung von immowelt.

Lage

address-icon
SteinKönigsbach-Stein (75203)
Der Anbieter hat die genaue Adresse nicht freigegeben
Das Objekt befindet sich im Gewerbegebiet Stein in Königsbach-Stein (Enzkreis) - einem idealen Standort zwischen Pforzheim (ca. 10 km) und Karlsruhe (ca. 15 km). Die verkehrsgünstige Anbindung über die L611 und L570 ermöglicht kurze Wege zu Kunden, Lieferanten und Autobahnanschlüssen. Das Umfeld ist geprägt von einer dynamischen Unternehmenslandschaft, die Kooperationen, Wachstum und Innovation fördert.

Weitere Informationen

Sonstiges Ein neuer Energieausweis wird gerade erstellt. Wir reichen diesen nach sobald er uns vorliegt Energiepass Energieausweis wird bei Besichtigung vorgelegt. Stichworte Lagerfläche: 13.500,00 m², Gesamtfläche: 13.500,00 m²

Weitere Services

Lust auf eine Besichtigung?
Eine Frage zur Immobilie?
Nachricht hinzufügen
Mit der Nutzung der oben angegebenen Telefonnummer oder durch Klicken auf „Kontaktieren“ akzeptierst Du die Allgemeinen Nutzungsbedingungen, denen Du jederzeit widersprechen kannst. Weitere Informationen zum Datenschutz

Über den Anbieter

An der Tagweide 2, 76139 Karlsruhe
Herr Arno StreckerDein Kontakt
Online-ID: 2jsem5u
Referenznummer: 2025028
STRECKER-OLENYI Industrie- & Gewerbeimmobilien
STRECKER-OLENYI Industrie- & Gewerbeimmobilien
Nachricht hinzufügen
Mit der Nutzung der oben angegebenen Telefonnummer oder durch Klicken auf „Kontaktieren“ akzeptierst Du die Allgemeinen Nutzungsbedingungen, denen Du jederzeit widersprechen kannst. Weitere Informationen zum Datenschutz
Wie zufrieden bist du mit dieser Seite (nicht mit der Immobilie selbst)?