Version: 8.24.0Navigation überspringen
Mietkosten auf Anfrage
195,4 m² Verkaufsfläche
Immowelt logo

Verkaufsfläche zur Miete
Mietkosten auf Anfrage
195,4 m² Verkaufsfläche

Außergewöhnliche Geschäftsfläche im Herzen von Wien

Zur Vermietung gelangt ein repräsentatives Geschäftslokal in bester Innenstadtlage. Das Objekt bietet eine Gesamtfläche von rund 260 m² auf zwei Ebenen (Erdgeschoss und Untergeschoss) und überzeugt durch seine klassische Altbauarchitektur sowie die hochwertige Lage im Herzen des ersten Bezirks.

Das Objekt befindet sich in einem historischen Gebäude mit beeindruckender Vergangenheit: dem ehemaligen Kaiserpalais von Stefan von Lothringen. Die repräsentative Architektur und die einzigartige Geschichte verleihen dem Objekt eine besondere Aura und unterstreichen den exklusiven Charakter der Lage.

Die Fläche verfügt über zwei großzügige Verkaufsräume mit straßenseitiger Auslage, die sich ideal für Premium-Retail, Boutique-Konzepte oder Showrooms eignen. Ergänzend stehen Nebenräume für Lager, Personal und Technik zur Verfügung. Durch die Nähe zu Kohlmarkt, Graben und Freyung profitiert die Adresse von einer starken Passantenfrequenz und einem international anspruchsvollen Kundensegment.

Merkmale

  • Bezug: Nach Vereinbarung
  • voll klimatisiert
- Großzügige Verkaufsräume mit straßenseitiger Auslage
- Klassische Altbausubstanz mit Gewölbedecken
- Lager-, Personal- und Technikräume im Untergeschoss
- Gaszentralheizung
- Anschluss an die zentrale Gebäudekühlung nach Sanierung (anteilige BK für Kühlung folgen)
- Sanitäranlagen und Personalraum vorhanden
- Werbemöglichkeiten über Steckschilder an der Fassade
- Hohe Passantenfrequenz und attraktive Sichtlage
- Lüftungsanlage
- Hebeanlage

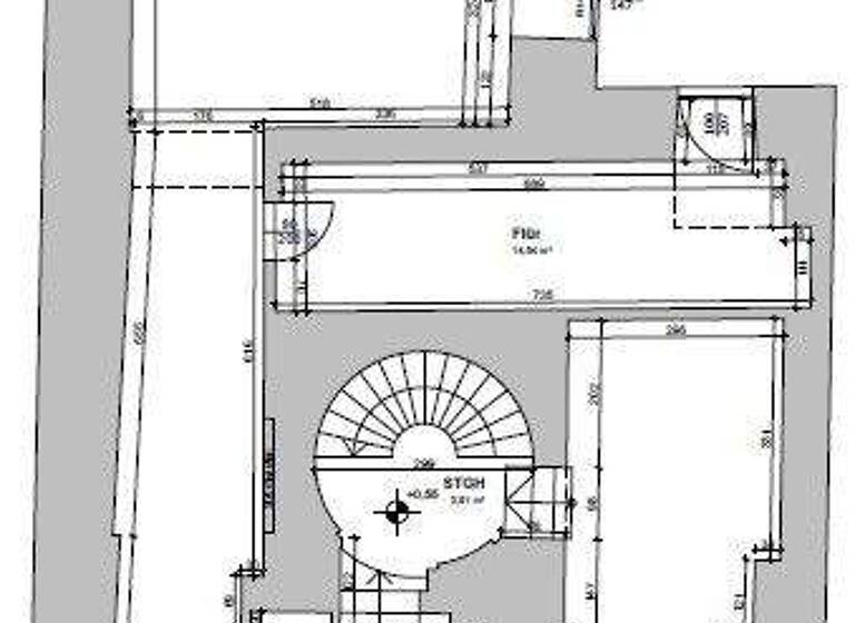
Grundrisse

Grundrisse
1 / 2

Realisiere Dein Projekt

Bausubstanz und Energie

Der Anbieter hat keine Informationen zum Energieverbrauch bereit gestellt.
  • Zustand der ImmobilieGepflegt
Immowelt logo

Mietkosten

Miete auf Anfrage
Provision für Mieter
3 BMM zzgl. 20% USt. zzgl. MwSt.
Kaution
EUR 90.000

Lage

address-icon
Wien (1010)
Der Anbieter hat die genaue Adresse nicht freigegeben
Das Geschäftslokal befindet sich in absoluter Innenstadtlage im 1. Wiener Gemeindebezirk. Die Adresse verbindet die renommierten Einkaufsadressen Kohlmarkt, Graben und Herrengasse und zählt zu den exklusivsten Geschäfts- und Handelslagen Wiens.

Die Umgebung ist geprägt von hochwertigem Einzelhandel, Luxusmarken, Banken, Kanzleien und gehobener Gastronomie. Durch die Nähe zu Sehenswürdigkeiten wie der Wiener Hofburg, der Freyung und dem Goldenen Quartier profitiert der Standort von einer starken internationalen Frequenz und einem kaufkräftigen Publikum.

In der unmittelbaren Nachbarschaft befinden sich namhafte Marken wie MCM, Dolce & Gabbana, Moncler und Tiffany & Co sowie weitere Premium-Retailer und Boutiquen.

Öffentliche Verkehrsanbindung:
- U-Bahn: U3 "Herrengasse" (ca. 190 m), U1/U3 "Stephansplatz" (ca. 500 m)
- Bus: Linien 1A, 2A (ca. 220 m)
- Straßenbahn: Linien 1, 2, 71, D (ca. 750 m)
- Züge/Regionalverkehr: Wien Franz-Josefs-Bahnhof (ca. 10 Minuten mit U-Bahn)

Individualverkehr:
Anbindung über den Ring, Parkgarage "Am Hof" (ca. 750 m)

Weitere Informationen

Sonstiges Weitere Facts:
- Mietdauer: befristet, 10 Jahre Stichworte Nutzfläche: 261,59 m²

Weitere Services

Lust auf eine Besichtigung?
Eine Frage zur Immobilie?
Nachricht hinzufügen
Mit der Nutzung der oben angegebenen Telefonnummer oder durch Klicken auf „Kontaktieren“ akzeptierst Du die Allgemeinen Nutzungsbedingungen, denen Du jederzeit widersprechen kannst. Weitere Informationen zum Datenschutz

Über den Anbieter

OTTO Immobilien
OTTO ImmobilienMaklerbüro
Riemergasse 8, 1010 WIEN
Frau Anja MutschlerDein Kontakt
Online-ID: 2nygt5r
Referenznummer: IVG-R-12874
OTTO Immobilien
OTTO Immobilien
Bewertung: 4,8 von 5 Sternen
Nachricht hinzufügen
Mit der Nutzung der oben angegebenen Telefonnummer oder durch Klicken auf „Kontaktieren“ akzeptierst Du die Allgemeinen Nutzungsbedingungen, denen Du jederzeit widersprechen kannst. Weitere Informationen zum Datenschutz
Wie zufrieden bist du mit dieser Seite (nicht mit der Immobilie selbst)?