




Haus zum Kauf • provisionsfrei550676 €5.006 €/m²4 Zimmer • 110 m² • 1.521 m² Grundstück
550676 €
5.006 €/m²
4 Zimmer • 110 m² • 1.521 m² Grundstück
Euer Wohnvergnügen auf einer Ebene
Merkmale
- 1.521 m² Grundstück
- Einbauküche
- Gäste-WC
- Garten
- Terrasse
- Badezimmer: Badewanne, Bad mit Dusche, Bad mit Fenster
- voll klimatisiert
- Bodenbelag: Fliesen
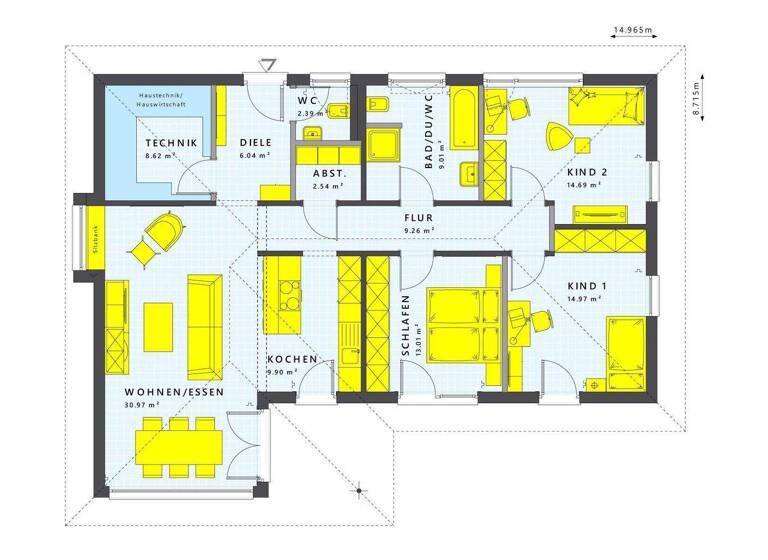
Grundrisse
Grundrisse
1 / 1
Realisiere Dein Projekt
Bausubstanz und Energie
Energieausweis
A+
- Baujahr2026
- Zustand der ImmobilieFertighaus, Projektiert
- HaustypKfW 40
- EnergieträgerLuft-/Wasser-Wärmepumpe
Preisdetails
Kaufpreis
550676 €
5.006,15 €/m²
Provision für Käufer
provisionsfrei
Geschätzte Gesamtkosten
591.976 €1
Kaufpreis
550.676 €
Kaufnebenkosten
41.300 €
2Notarkosten (1,5%)
8.260 €
Grunderwerbsteuer (5,5%)
30.287 €
Grundbucheintrag (0,5%)
2.753 €
1Der angezeigte Wert ist eine automatisch berechnete Schätzung von immowelt.
2Bei den Angaben handelt es sich um ortsübliche Werte. Individuelle Kosten können abweichen.
Lage

Storkwitz, Schönwölkau (04509)
Der Anbieter hat die genaue Adresse nicht freigegeben
Weitere Informationen
Weitere Services
Lust auf eine Besichtigung?
Eine Frage zur Immobilie?
Über den Anbieter
Living Fertighaus GmbH VertriebsbüroMaklerbüro
Chopinstrasse 25, 04103 Leipzig
Partnerschaft

Herr Oliver ZschörnigDein Kontakt
Online-ID: 2ntvd5p
Referenznummer: 30764-6358


Living Fertighaus GmbH Vertriebsbüro
Wie zufrieden bist du mit dieser Seite (nicht mit der Immobilie selbst)?

