
EHL Immobilien GmbH
Frau Andrea PÖCHHACKER; MSc
+43 ···
Nr. anzeigenPreise & Kosten
Provision für Käufer
3% des Kaufpreises zzgl. 20% USt.
Lage
Profitieren Sie von der idealen Lage, nur wenige Gehminuten von den U3-Stationen "Ottakring" und "Kendlerstraße" entfernt, die eine direkte Verbindung in das Stadtzentrum ermöglicht.
Die Umgebung bietet neben der erstklassigen Verkehrsanbindung weiters eine ausgezeichnete Infrastruktur mit zahlreichen...
Die Wohnung
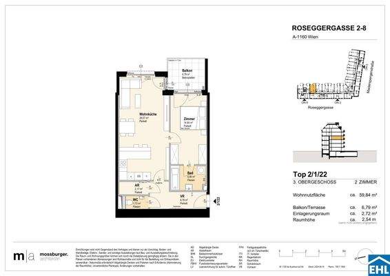
Wohnungslage
3. Geschoss
Bezug
voraussichtlich 2028
Wohnanlage
Energie & Heizung
Warum sehe ich diese Anzeige? – Du siehst diese Anzeige basierend auf Ihrer Navigation auf unserer Website und den Suchkriterien, die du verwendet hast.
Heizwärmebedarf (HWB)
36,90 kWh/(m²·a)
Gesamtenergieeffizienz (fGEE)
0,88
Weitere Energiedaten
Energieträger
Fernwärme, Solar
Heizungsart
Fußbodenheizung
Details
Objektbeschreibung
Investmentchance: Anlegerwohnungen im Grand Garden - Modernes Wohnen nahe Wilhelminenberg
In der Roseggergasse 2-8, unweit des beliebten Wilhelminenbergs, entsteht ein attraktives Wohnprojekt mit hohem Investmentpotenzial: 124 hochwertige Eigentumswohnungen in gefragter Lage. Die Wohnflächen reichen von ca. 39 m² bis...
Weitere Informationen
Stichworte
Ost-Balkon/Terrasse, Anzahl der Badezimmer: 1, Anzahl der separaten WCs: 1, Anzahl Balkone: 1, Balkon-Terrassen-Fläche: 6,79 m², Bundesland: Wien, Wohnungsnr.: 22
Dokumente
Anbieter der Immobilie
EHL Immobilien GmbH
Prinz-Eugen-Straße 8-10, 1040 WIEN
Online-ID: 2l2625g
Referenznummer: OBGC20240626100647034a808c2435d
Finde Angebote wie dieses
Günstige Immobilienfinanzierung einfach online berechnen
Persönliches Angebot berechnenWarum sehe ich diese Werbung? – Du siehst diese Werbung basierend auf Deiner Navigation auf unserer Website und der von Dir verwendeten Suchkriterien.
Diese Werbung wird bezahlt von durchblicker
Werbung melden
Hier geht es zu unserem Impressum, den Allgemeinen Geschäftsbedingungen, den Hinweisen zum Datenschutz und nutzungsbasierter Online-Werbung.