Kontaktiere den Anbieter, um Bilder dieser Immobilie zu erhalten.
1 / 4
1 / 4
Doppelhaushälfte zum Kauf • provisionsfrei
479000 €479.000 €
3.090 €/m²
5 Zimmer • 155 m² • 330 m² Grundstück
Attraktive Angebot für Familien!
Wir freuen uns sehr, Ihnen diese attraktive Neubauplanung anbieten zu können. Es ist ganz auf die Bedürfnisse einer 4-5 köpfigen Familie zugeschnitten. Eine zeitgemäße Energietechnik und Bauweise sind dabei selbstverständlich. Ein großer Teil der Finanzierung kann dabei mit attraktiven Förderdarlehen der NRW -und KfW-Bank erfolgen. So bleibt die monatliche Belastung im Rahmen. In diesen Zeiten ein unschätzbarer Vorteil! Falls Sie jetzt denken, daß Sie ohnehin keine Förderung erhalten weil Sie zu gut verdienen, könnte dies ein Irrtum sein. Gerne unterbreiten wir Ihnen auch ein Gesamtangebot für die Finanzierung inkl. der Förderung und kümmern uns auch um die Abwicklung. Bitte beachten Sie, daß das Haus erst gebaut wird.
Merkmale
330 m² Grundstück
Zur Standardausstattung gehören im EG: Wohn- Esszimmer, Küche, Gäste-WC, Technikraum, im OG: Schlafzimmer, zwei Kinderzimmer, großzügiges Bad mit ebenerdiger Dusche. Das Dachgeschoss ist ausgebaut. Des weiteren gehören dazu: Kunststofffenster mit Dreifachverglasung und elektrischen Rollläden, Tondachziegel, eine Luftwärmepumpe mit kontrollierter Be- und Endlüftung. Eine Photovoltaikanlage oder ein Keller sowie individuelle Extras auf Wunsch und gegen Aufpreis möglich. Natürlich ist auch ein kleineres Haus auf Wunsch möglich!
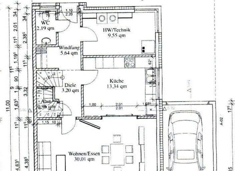
Grundrisse
Grundrisse
1 / 4
Realisiere Dein Projekt
Bausubstanz und Energie
Energieausweis
Ein Energieausweis ist für diesen Gebäudetyp nicht notwendig.
Baujahr2025
Zustand der ImmobilieNeubau
HaustypKfW 40
Preisdetails
Kaufpreis
479000 €479.000 €
3.090,32 €/m²
Provision für Käufer
provisionsfrei; prov.frei
Geschätzte Gesamtkosten
519.715 €1
Kaufpreis
479.000 €
Kaufnebenkosten
40.715 €
2
Notarkosten (1,5%)
7.185 €
Grunderwerbsteuer (6,5%)
31.135 €
Grundbucheintrag (0,5%)
2.395 €
1Der angezeigte Wert ist eine automatisch berechnete Schätzung von immowelt.
2Bei den Angaben handelt es sich um ortsübliche Werte. Individuelle Kosten können abweichen.
Lage
Spenge (32139)
Der Anbieter hat die genaue Adresse nicht freigegeben
Das Doppelhaus entsteht in einem kleinen Baugebiet in Spenge-Lenzinghausen. Der Baubeginn kann hier sehr kurzfristig erfolgen.
Sehr gute Verkehrsanbindung in Richtung Bielefeld aber auch nach Spenge-Zentrum, Enger und Werther.
Weitere Informationen
Sonstiges
Der angegebene Kaufpreis beinhaltet das Haus laut Baubeschreibung (Effizienzhaus40) inkl. eines zur Verfügung stehenden Grundstücks.. Nicht im Preis enthalten sind die Kaufnebenkosten, Sonderausstattungen, Außenanlagen, Carport usw.. Eigenleistungen sind nach Absprache möglich! Ernsthafte Interessenten laden wir gerne zu einem Informationsgespräch in unsere Geschäftsstelle ein (Wilhelmstraße 8-10). Sie erhalten dann eine auf Ihren Wünschen basierende Gesamtkostenaufstellung. VERBRAUCHERINFO 1. Maklerleistung ist der Nachweis der Gelegenheit zum Abschluss eines Vertrages bzw. Vermittlung eines Vertrages über eine Immobilie gegen die Courtagezahlungspflicht des Kunden 2. Unternehmer,Anschrift,Beschwerdeadressat LBSi NordWest, Himmelreichallee 40, 48149 Münster, Tel:0251/973233-997, eMail:info@lbsi-nw.de GF:Martin Englert, Volker Goldbeck 3. Es besteht ein Widerrufsrecht 4. Weitere Infos: verbraucherinfo.lbsi-nordwest.de