Bürofläche zur Miete • provisionsfreiMietkosten auf Anfrage500 m² Bürofläche
Mietkosten auf Anfrage
500 m² Bürofläche
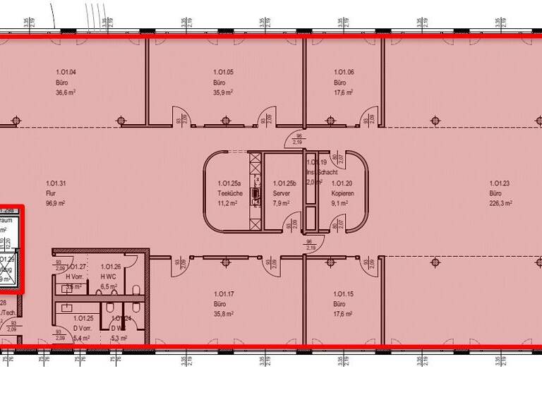
Ravensburg (DE) - Bürofläche im 1. OG mit ca. 500 m²
Merkmale
- 1. Geschoss
- Teeküche
- Außen-Stellplatz, Tiefgarage
Grundrisse
Grundrisse
1 / 1
Virtueller Rundgang
Video

Bausubstanz und Energie
Möchtest du Details zum Energieverbrauch?

- Zustand der ImmobilieGepflegt
Mietkosten
Miete auf Anfrage
Provision für Mieter
provisionsfrei
Kaution
3 BMM
Lage

Zuppingerstraße 5, Weststadt, Ravensburg (88213)
Weitere Services
Lust auf eine Besichtigung?
Eine Frage zur Immobilie?
Über den Anbieter
Messestraße 11, 6850 Dornbirn
Partnerschaft
Herr Mag. (FH) Martin FusseneggerDein Kontakt
Weitere Unterlagen
Online-ID: 26G7Y6E2K9XR
Wie zufrieden bist du mit dieser Seite (nicht mit der Immobilie selbst)?
