Version: 8.24.0Navigation ĂĽberspringen
264.000 €
194 m²  â€˘  1.436 m² GrundstĂĽck
Immowelt logo

Haus zum Kauf
264000 €
1.361 €/m²
194 m²  â€˘  1.436 m² GrundstĂĽck

Neubau auf Baugrundstück in Mechtersen mit unverbaubarem Feldblick – voll erschlossen & mit Baugenehmigung

In ruhiger Wohnlage von Mechtersen erwartet Sie dieses großzügige und bereits vorbereitete Baugrundstück mit wunderschönem Blick über angrenzende Felder. Das Grundstück ist vollständig erschlossen, nicht in Erbpacht und verfügt über eine gültige Baugenehmigung – ideale Voraussetzungen, um Ihr Bauprojekt ohne Verzögerung zu starten.

Auf dem Grundstück ist sowohl die Errichtung eines traditionellen Fachwerkhauses mit Reetdach möglich als auch die Bebauung in der üblichen, modernen Bauweise. Dadurch bietet das Grundstück eine breite gestalterische Freiheit: Wer den historischen Charakter bevorzugt, kann diesen umsetzen, während gleichzeitig zeitgemäße Architekturformen ebenso zulässig sind. So lässt sich das Bauvorhaben flexibel an individuelle Vorstellungen anpassen.

Hinweis zum projektierten Haus:

Bei dem angebotenen Haus handelt es sich um ein projektiertes Neubauvorhaben der Elbe Haus GmbH. Das Haus dient als Beispielplanung, die auf dem Grundstück realisierbar ist. Änderungen in Grundriss, Ausstattung und Ausführung sind möglich. Der Grundstückspreis beträgt 264.000 €, das dargestellte Haus mit Verblendfassade ist ab ca. 460.000 € (Wohnfläche ca. 194 qm, Grundfläche ca. 213 qm) realisierbar. Die Gesamtkosten ergeben sich aus Grundstück, Hausbau sowie den üblichen Baunebenkosten.

Auf Wunsch kann der Neubau mit der Elbe-Haus GmbH realisiert werden.

Die Fakten im Ăśberblick

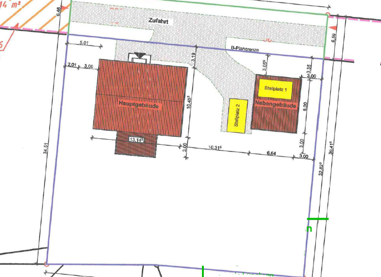
•Grundstücksfläche: 1.436 m² Gesamtfläche – 1.200 m² reines Bauland – 236 m² privater Erschließungsweg

•Erschließung: Strom, Wasser, Abwasser sowie Glasfaser liegen bereits auf dem Grundstück

•Baugenehmigung: Genehmigung für den Neubau eines Einfamilienhauses mit Garage gemäß Bebauungsplan liegt vor

•Bauvorbereitung: – Baugrund fachgerecht ausgekoffert – Auffüllung mit Füllsand und F1 Sand – Feinplan bereits erstellt

•Unterlagen: Bodengutachten, Baulastenverzeichnis und Vermessungsunterlagen vollständig vorhanden und einsehbar

•Zuwegung: – Baustraße bereits angelegt – Genehmigung und Kostenvoranschlag für privaten Erschließungsweg liegen vor

•Lage-Highlight: Ruhige Wohnlage in Mechtersen mit Weitblick über angrenzende Felder – ideal für alle, die naturnah wohnen möchten

•Preis: Orientierung am offiziellen Bodenrichtwert von 180 €/m² – Verhandlungsbasis

Hinweis
Alle Angaben wurden nach bestem Wissen zusammengestellt und dienen ausschließlich der Information. Verbindlich sind ausschließlich die Inhalte des späteren notariellen Kaufvertrags.

Merkmale

  • 1.436 m² GrundstĂĽck
  • Gäste-WC
  • Fernblick
  • Badezimmer: Badewanne, Bad mit Dusche, Bad mit Fenster
  • Bodenbelag: Fliesen
  • Fenster: Kunststoff

Grundrisse

Grundrisse
1 / 3

Realisiere Dein Projekt

Bausubstanz und Energie

Energieausweis

Ein Energieausweis ist für diesen Gebäudetyp nicht notwendig.
  • Baujahr2026
  • Zustand der ImmobilieNeubau, Projektiert
  • HeizungsartFuĂźbodenheizung
  • EnergieträgerElektro, Luft-/Wasser-Wärmepumpe
Immowelt logo

Preisdetails

Kaufpreis
264000 €
1.360,82 €/m²
Provision für Käufer
Käuferprovision 5,95 Prozent inkl. MwSt. vom Grundstückspreis
Geschätzte Gesamtkosten
291.905 €1
Kaufpreis
264.000 €
Notarkosten (1,5%)
3.960 €
Grunderwerbsteuer (5%)
13.200 €
Provision für Käufer (3,57%)
9.425 €
Grundbucheintrag (0,5%)
1.320 €
1Der angezeigte Wert ist eine automatisch berechnete Schätzung von immowelt.
2Bei den Angaben handelt es sich um ortsübliche Werte. Individuelle Kosten können abweichen.

Lage

address-icon
Mechtersen (21358)
Der Anbieter hat die genaue Adresse nicht freigegeben

Weitere Informationen

Sonstiges Provision: für Käufer 5,95 Prozent (inkl. MwSt.) vom Kaufpreis des Grundstücks

Besichtigungstermine nach Vereinbarung.

Zwischenverkauf und IrrtĂĽmer vorbehalten.

---------------------------------------------------------------

Sie haben eine Immobilie zu verkaufen oder zu vermieten? Gerne unterstĂĽtzen wir Sie dabei!

Vereinbaren Sie jetzt einen Beratungstermin und informieren Sie sich über die umfassenden Dienstleistungen unseres Maklerunternehmens. Von der Marktanalyse und Bewertung Ihrer Immobilie über die Erstellung und Präsentation von Verkaufsunterlagen bis hin zur Durchführung von Besichtigungen und der Unterstützung bei Verhandlungen – wir begleiten Sie professionell durch den gesamten Verkaufsprozess Stichworte Sonstiges/Wohnen: Galerie

Weitere Services

Lust auf eine Besichtigung?
Eine Frage zur Immobilie?
Nachricht hinzufĂĽgen
Mit der Nutzung der oben angegebenen Telefonnummer oder durch Klicken auf „Kontaktieren“ akzeptierst Du die Allgemeinen Nutzungsbedingungen, denen Du jederzeit widersprechen kannst. Weitere Informationen zum Datenschutz

Ăśber den Anbieter

Memeler StraĂźe 28, 21337 LĂĽneburg
Paul SeibelDein Kontakt

Weitere Unterlagen

Online-ID: 2nm285n
Referenznummer: 0214H-2026
Seibel Immobilien GbR
Seibel Immobilien GbR
Bewertung: 4,2 von 5 Sternen
Nachricht hinzufĂĽgen
Mit der Nutzung der oben angegebenen Telefonnummer oder durch Klicken auf „Kontaktieren“ akzeptierst Du die Allgemeinen Nutzungsbedingungen, denen Du jederzeit widersprechen kannst. Weitere Informationen zum Datenschutz
Wie zufrieden bist du mit dieser Seite (nicht mit der Immobilie selbst)?