Version: 8.22.5Navigation überspringen
11 €
2.937 m² Lagerfläche
Immowelt logo

Lagerhalle zur Miete - Erstbezug
11 Euro pro Quadratmeter
2.937 m² Lagerfläche

Erstbezug Kühl- und Tiefkühllagerhalle in Korneuburg

Das neu errichtete Kühl- und Tiefkühllager bietet auf rund 2.727 m² zwei Kühlhallen mit monolithischem Betonboden. Zwei temperierbare Andockzonen mit Rolltoren und aufblasbaren Dockdichtungen gewährleisten effiziente Be- und Entladung sowie Einhaltung der Kühlkette.
Die Büro- und Sozialflächen sind modern ausgestattet, inkl. abgehängter Decken, Zutrittskontrolle und Sanitärräumen.
Einige der Büroräumlichkeiten können noch nach Kundenanforderungen angepasst werden (z.B. Schulungs- oder Besprechungsräume).
Eine PV- Anlage gewährleistet eine energieeffiziente Nutzung des Gebäudes.

Merkmale

  • Bezug: Nach Vereinbarung
  • Lastenaufzug
  • Laderampe
  • LKW-Zufahrt
  • voll klimatisiert
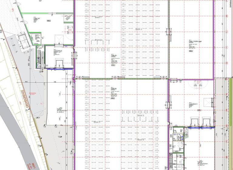
UNIT A
- Halle B1: ca. 1.120 m² Nutzfläche, Monobetonboden, Raumhöhe ca. 11 m, Kühltemperatur bis ?18 °C
- EG: Trockenlager A1 (ca. 200 m²), Trockenlagerlager A2 (ca. 163m²), Sanitärgruppe (für Fahrer oder Lieferanten)
- Cool Dock A: ca. 80 m² Andienungszonen bei +5 °C
- Lastenaufzug (2.800kg Gesamtzuladung)

- Ausbaufläche OG: Büro/Lager/Schulungsräume A3 (ca. 172 m²), Büro/Lager/Schulungsräume A4 (ca. 200 m²), Büro/Lager/Schulungsräume (ca. 79 m²)

UNIT B
- Halle B2: ca. 1.110 m² Nutzfläche, Monobetonboden, Raumhöhe ca. 11 m, Kühltemperatur bis ?18 °C
- Cool Dock C: ca. 264 m² Andienungszonen bei +5 °C

- EG: Empfang, Büro, Sozial- und Technikräume insgesamt ca. 100 m²
- OG: Büro- und Besprechungsräume ca. 50 m²


TECHNIK & INFRASTRUKTUR:
- Regalanlage inklusive (3.600 Palettenstellplätze)
- Photovoltaik-Anlage mit 300 kWh Leistung
- CO?-Überwachung (R744) mit akustischer und optischer Alarmierung
- Fahrzeug-Andienung über mehrere Laderampen und Rampendocks mit aufblasbaren Dockdichtungen ("Cool Docks")
- Bodenabläufe und Rigolrinne DN 200/DN 300, Kanalisation mit Sedimentations-/Sickeranlagen
- Betriebsanlagengenehmigung vorhanden

Grundrisse

Grundrisse
1 / 5

Realisiere Dein Projekt

Bausubstanz und Energie

Der Anbieter hat keine Informationen zum Energieverbrauch bereit gestellt.
  • Baujahr2024
  • Zustand der ImmobilieErstbezug
  • HeizungsartFußbodenheizung
  • EnergieträgerElektro
Immowelt logo

Mietkosten

Monatliche Miete
11 €/m²
Provision für Mieter
3 BMM zzgl. 20% USt.
Kaution
3-6 BMM (bonitätsabhängig)

Lage

address-icon
Korneuburg (2100)
Der Anbieter hat die genaue Adresse nicht freigegeben
LAGE:
Das Kühllager liegt im Gewerbegebiet Korneuburg, umgeben von Logistik- und Produktionsbetrieben.

VERKEHRSANBINDUNG:
- Direkter Anschluss an die B4
- A22 Donauufer-Autobahn
- A5 Nordautobahn

- Güterbahn-Anschluss vor Ort (Korneuburg)

ÖFFENTLICHE ANBINDUNG:
- Bushaltestelle "Gewerbegebiet Nord" ca. 300 m entfernt
- S-Bahn (S40) ab Korneuburg-Mitte (2 km) nach Wien-Heiligenstadt in ca. 20 Min.


INFRASTRUKTUR:
Supermarkt, Tankstelle und diverse Gastronomie im Gewerbepark; Post, Bankfiliale sowie Speditionen und Staplerverleih

Weitere Informationen

Stichworte Lagerfläche: 2.937,00 m², Nutzfläche: 3.538,00 m², Gesamtfläche: 3.538,00 m², Bürofläche: 601,00 m², Hallenhöhe: 11,14 m, Mindestmietdauer: 5 Jahre

Weitere Services

Lust auf eine Besichtigung?
Eine Frage zur Immobilie?
Nachricht hinzufügen
Mit der Nutzung der oben angegebenen Telefonnummer oder durch Klicken auf „Kontaktieren“ akzeptierst Du die Allgemeinen Nutzungsbedingungen, denen Du jederzeit widersprechen kannst. Weitere Informationen zum Datenschutz

Über den Anbieter

OTTO Immobilien
OTTO ImmobilienMaklerbüro
Riemergasse 8, 1010 WIEN
Herr Ralph LeitnerDein Kontakt
Online-ID: 2kajw5n
Referenznummer: IVG-I-12609
OTTO Immobilien
OTTO Immobilien
Bewertung: 4,8 von 5 Sternen
Nachricht hinzufügen
Mit der Nutzung der oben angegebenen Telefonnummer oder durch Klicken auf „Kontaktieren“ akzeptierst Du die Allgemeinen Nutzungsbedingungen, denen Du jederzeit widersprechen kannst. Weitere Informationen zum Datenschutz
Wie zufrieden bist du mit dieser Seite (nicht mit der Immobilie selbst)?