Version: 8.25.1Navigation überspringen
565.000 €
5 Zimmer  •  180 m²  •  228 m² Grundstück
Immowelt logo

Doppelhaushälfte zum Kauf
565000 €
3.139 €/m²
5 Zimmer  •  180 m²  •  228 m² Grundstück

Neuwertige Doppelhaushälfte in Oberndorf - Ihr Traumhaus wartet auf Sie!

Das Wohnhaus ist modern, funktional und lichtdurchflutet geplant. Große Fensterflächen, offene Wohnbereiche und ein vollwertig nutzbares Dachgeschoss sorgen für ein helles und freundliches Raumgefühl. Die Architektur zeigt klar gezeichnete Linien, eine ästhetische Fassadengliederung und hochwertige Fensterformate.

*Energieausweis in Bearbeitung, liegt bei Besichtigung vor.

Merkmale

  • WG-geeignet
  • 228 m² Grundstück
  • Gäste-WC
  • Bodenbelag: Estrich
  • Terrasse
  • Außen-Stellplatz
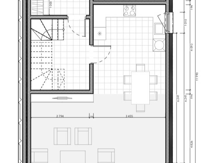
Der großzügige, offen gestaltete Grundriss umfasst:
. Einen sehr großen Wohnbereich mit breiter Fensterfront (Fensterpositionen u. a. W-04t 3000×2250 mm)
. Offenen Koch-/Essbereich
. Funktional angelegte Eingangszone mit Treppenhaus
. Praktische Nebenflächen
. Großzügige Raumwirkung durch klare Linien und helle Fassadenelemente

Der große raumbreite Fensterausschnitt schafft eine direkte Verbindung zum Garten und sorgt für maximale Lichtqualität.

Der großzügige, offen gestaltete Grundriss umfasst:
. Einen sehr großen Wohnbereich mit breiter Fensterfront (Fensterpositionen u. a. W-04t 3000×2250 mm)
. Offenen Koch-/Essbereich
. Funktional angelegte Eingangszone mit Treppenhaus
. Praktische Nebenflächen
. Großzügige Raumwirkung durch klare Linien und helle Fassadenelemente

Der große raumbreite Fensterausschnitt schafft eine direkte Verbindung zum Garten und sorgt für maximale Lichtqualität.

Dachgeschoss - DG

Ein wandelbarer Bereich, perfekt für:
. Büro
. Hobby
. Gästezimmer
. Rückzugsraum

Auffällige Merkmale:
. Vier Dachflächenfenster WR-01 (660×1400 mm), die viel Licht einbringen
. Flexible Raumaufteilung
. Großzügige Nutzfläche trotz Dachschräge

Grundrisse

Grundrisse
1 / 3

Realisiere Dein Projekt

Bausubstanz und Energie

Möchtest du Details zum Energieverbrauch?info_energy_calculation-icon
  • Baujahr2025
  • Zustand der Immobilieneuwertig
Immowelt logo

Preisdetails

Kaufpreis
565000 €
3.138,89 €/m²
Provision für Käufer
3,57 % Käuferprovision inkl. 19 % MwSt. Die Provision errechnet sich aus dem Kaufpreis. Weitere Informationen siehe Provisionshinweis.
Weitere Preisinformationen
1 Stellplatz
Geschätzte Gesamtkosten
616.245 €1
Kaufpreis
565.000 €
Notarkosten (1,5%)
8.475 €
Grunderwerbsteuer (3,5%)
19.775 €
Provision für Käufer (3,57%)
20.170 €
Grundbucheintrag (0,5%)
2.825 €
1Der angezeigte Wert ist eine automatisch berechnete Schätzung von immowelt.
2Bei den Angaben handelt es sich um ortsübliche Werte. Individuelle Kosten können abweichen.

Lage

address-icon
OberndorfOberndorf am Lech (86698)
Der Anbieter hat die genaue Adresse nicht freigegeben
Die Lage in Oberndorf am Lech bietet optimale Anbindung an B2 und B16 sowie kurze Wege zu Kindergarten, Schulen, Einkaufen und Ärzten. Die Bahnhöfe Mertingen und Assbach-Bäumenheim sind in wenigen Minuten erreichbar.

Weitere Informationen

Provisionshinweis 3,57 % Käuferprovision inkl. 19 % MwSt. Die Provision errechnet sich aus dem Kaufpreis. Für ein Exposé und weitere Informationen zum Objekt sowie einen Besichtigungstermin füllen Sie bitte die nachfolgenden Angaben im Kontaktformular aus:- vollständiger Name/Anschrift- E-Mail-Adresse- Telefon/Mobilnummer Sonstiges Bitte beachten Sie, dass nur ein VOLLSTÄNDIG AUSGEFÜLLTES Kontaktformular von uns bearbeitet werden kann.

Frau Melek Voss
Abtstraße 6, 86653 Monheim Rehau
Tel.: +49 151 533 863 93
Email: m.voss@iad-immobilien.de
Aufsichtsbehörde nach § 34 c Gewerbeordnung
Landratsamt Aichach-Friedberg, Münchener Str. 9, 86551 Aichach
Lizenzpartner der IAD Immobilien Agentur Deutschland GmbH Stichworte Stellplatz vorhanden, Anzahl der Schlafzimmer: 4, Anzahl der Badezimmer: 2, Anzahl Terrassen: 1, 3 Etagen

Weitere Services

Lust auf eine Besichtigung?
Eine Frage zur Immobilie?
Nachricht hinzufügen
Mit der Nutzung der oben angegebenen Telefonnummer oder durch Klicken auf „Kontaktieren“ akzeptierst Du die Allgemeinen Nutzungsbedingungen, denen Du jederzeit widersprechen kannst. Weitere Informationen zum Datenschutz

Über den Anbieter

Untere Bühlstraße 5, 91338 Igensdorf
Frau Melek VossDein Kontakt
Online-ID: 26RHHDX9QQNG
Referenznummer: AIC-VV0739/12
IAD Immobilien Agentur Deutschland GmbH
IAD Immobilien Agentur Deutschland GmbH
Nachricht hinzufügen
Mit der Nutzung der oben angegebenen Telefonnummer oder durch Klicken auf „Kontaktieren“ akzeptierst Du die Allgemeinen Nutzungsbedingungen, denen Du jederzeit widersprechen kannst. Weitere Informationen zum Datenschutz
Wie zufrieden bist du mit dieser Seite (nicht mit der Immobilie selbst)?